御成門PREX(物件No:82721296)
御成門PREXは、港区新橋にある地上8階建ての賃貸オフィス/店舗事務所です。最寄駅は都営三田線の御成門駅から徒歩2分、都営大江戸線の大門駅から徒歩7分、ゆりかもめの汐留駅から徒歩8分、JR線の新橋駅から徒歩9分です。2017年1月竣工の基準階面積が127.19坪の鉄骨造です。設備としては、エレベーターが2基あり、駐車場もあり、貸会議室もあります。セキュリティは機械警備です。トイレは室内男女別です。空調は個別空調です。床仕様はフリーアクセスです。天高は2700mmです。耐震設計となっている、複数駅利用可能なアクセスの良い港区新橋の賃貸事務所/店舗事務所です。
-
物件情報
-
設備情報
- トイレ
- 室内男女別
- 床
- フリーアクセス
- 空調
- 個別空調
- セキュリティ
- 有
- 駐車場
- 有
- 会議室
- 有
- エレベーター
- 2基
- 天井高
- 2700mm
-
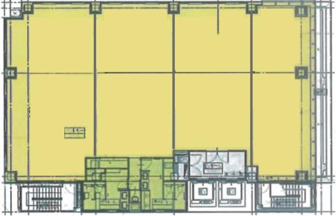
間取り図
-
近隣相場情報
新橋6丁目(100坪以上)の相場
28800 円 (坪)
※ビルサク調べ
周辺施設情報
| コンビニ |
セブンイレブン/御成門駅北/85m(徒歩1分) ローソン/ナチュラル 京王プレッソイン浜松町/350m(徒歩5分) |
|---|---|
| 郵便局/銀行 |
ローソン銀行/NL 新橋六丁目共同出張所/[営業時間]24時間 [取扱]海外発行カード対応、視覚障害者対応 [備考]ご利用可能な金融機関 当店のATM管理はローソン銀行です/160m(徒歩2分) セブン銀行/西新橋3丁目店/[営業時間]24時間営業 [備考]1 台/500m(徒歩6分) |
| 飲食店 |
俺のイタリアン 新橋赤レンガ通/11時30分~14時30分、17時00分~23時30分/500m(徒歩6分) ブルワリーマーケット/16時00分~0時00分/550m(徒歩7分) |
| カフェ |
上島珈琲店/No.11/[営業時間]平日 7:00~20:00 / 土日祝 8:00~18:00 [休業日]不定休 [取扱]コーヒー豆挽き売り モーニングメニュー テイクアウト可 [備考]96席(全席禁煙)/89m(徒歩1分) ピースコーヒー 西新橋店/8時00分~18時00分/450m(徒歩6分) |
| コインパーキング |
ザ・パーク/新橋6丁目 [台数]2 コインパーク/新橋6丁目第2 [料金] 【 月~土 】 ■通常料金 【 オールタイム(24時間) 】 15分/400円 【 日祝 】 ■通常料金 【 オールタイム(24時間) 】 15分/400円 [最大料金] 【 月~土 】 ■最大料金 【 駐車後12時間以内 (1回限り)】 4400円 【 日祝 】■最大料金 【 駐車後12時間以内 (1回限り)】 1000円 [台数][車: 10台] |
周辺地図
御成門PREXは、港区新橋にある地上8階建ての賃貸オフィス/店舗事務所です。最寄駅は都営三田線の御成門駅から徒歩2分、都営大江戸線の大門駅から徒歩7分、ゆりかもめの汐留駅から徒歩8分、JR線の新橋駅から徒歩9分です。2017年1月竣工の基準階面積が127.19坪の鉄骨造です。設備としては、エレベーターが2基あり、駐車場もあり、貸会議室もあります。セキュリティは機械警備です。トイレは室内男女別です。空調は個別空調です。床仕様はフリーアクセスです。天高は2700mmです。耐震設計となっている、複数駅利用可能なアクセスの良い港区新橋の賃貸事務所/店舗事務所です。
全フロア情報
更新日:2025年10月27日
| 階 | 面積 | 賃料 | 共益費 | 敷金 | 入居日 | お問合せ | お気に入り | |
|---|---|---|---|---|---|---|---|---|
| 1F |
18.36 坪 60.69 ㎡ |
※現在空室情報はございません |
※現在空室情報は 確認する |
|||||
| 2F |
127.19 坪 420.46 ㎡ |
※現在空室情報はございません |
※現在空室情報は 確認する |
|||||
| 3F |
127.19 坪 420.46 ㎡ |
※現在空室情報はございません |
※現在空室情報は 確認する |
|||||
|
4F
(1区画) |
62.49 坪 206.58 ㎡ |
※現在空室情報はございません |
※現在空室情報は 確認する |
|||||
| 5F |
127.19 坪 420.46 ㎡ |
※現在空室情報はございません |
※現在空室情報は 確認する |
|||||
| 6F |
127.19 坪 420.46 ㎡ |
※現在空室情報はございません |
※現在空室情報は 確認する |
|||||
| 7F |
127.19 坪 420.46 ㎡ |
※現在空室情報はございません |
※現在空室情報は 確認する |
|||||
| 8F |
121.34 坪 401.12 ㎡ |
※現在空室情報はございません |
※現在空室情報は 確認する |
|||||
お問い合わせ
似た条件の物件はこちら
-
新橋パークプレイス
東京都港区新橋5-27-1
坪数:99.76 坪
坪単価:15,000 円(坪)
-
新虎ノ門実業会館(新館)
東京都港区虎ノ門1-1-21
坪数:96.25 坪
坪単価:20,000 円(坪)
-
BIZCORE西新橋
東京都港区西新橋3-13-3
坪数:110.58 坪
坪単価:28,000 円(坪)
-
メトロシティ神谷町
東京都港区虎ノ門5-1-5
坪数:127.06 坪
坪単価:28,000 円(坪)
-
虎ノ門ピアザビル
東京都港区虎ノ門2-4-1
坪数:125 坪
坪単価:19,000 円(坪)
-
御成門郵船ビル
東京都港区西新橋3-23-5
坪数:149.19 坪
坪単価:28,000 円(坪)
-
第2秋山ビルディング
東京都港区虎ノ門3-6-2
坪数:99.6 坪
坪単価:22,999 円(坪)
-
村松ビル
東京都港区東新橋2-2-10
坪数:92.34 坪
坪単価:13,500 円(坪)
-
エンスイテ御成門
東京都港区新橋6-19-13
坪数:113.74 坪
坪単価:29,005 円(坪)
-
CIRCLES+新橋
東京都港区新橋6-2-1
坪数:99.99 坪
坪単価:35,000 円(坪)