青山浜ビル(物件No:81986155)
青山浜ビルは港区南青山にある地上4階建ての賃貸事務所です。最寄駅は東京メトロ銀座線の青山一丁目駅から徒歩4分、東京メトロ半蔵門線の青山一丁目駅から徒歩4分です。1974年4月竣工の鉄筋コンクリート造です。設備としては、駐車場があります。空調は個別空調です。複数駅利用可能なアクセスの良い港区南青山の賃貸オフィスです。
| 階 | 面積 | 賃料 | 共益費 | 敷金 | 入居日 | お問合せ | お気に入り | |
|---|---|---|---|---|---|---|---|---|
|
2F
(202区画) |
14.97 坪 49.49 ㎡ |
※現在空室情報はございません |
※現在空室情報は 確認する |
|||||
-
物件情報
-
設備情報
- トイレ
- 室内男女共用
- 床
- タイルカーペット
- 空調
- 個別空調
- セキュリティ
- -
- 駐車場
- 有
- 会議室
- -
- エレベーター
- 0基
- 天井高
- 2460mm
-
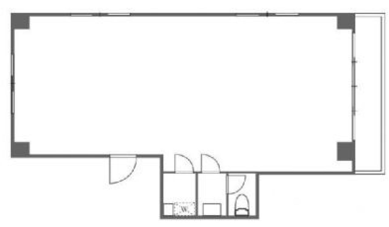
間取り図
-
近隣相場情報
南青山2丁目(20坪以下)の相場
22993 円 (坪)
※ビルサク調べ
周辺施設情報
| コンビニ |
セブンイレブン/港区南青山2丁目/130m(徒歩2分) ポプラ/青山2丁目店/200m(徒歩2分) |
|---|---|
| 郵便局/銀行 |
セブン銀行/港区南青山2丁目店/[営業時間]24時間営業 [ATM台数]1/140m(徒歩2分) イーネット/ポプラ青山2丁目/[営業時間]0:00-24:00/200m(徒歩2分) |
| 飲食店 |
すし秀・きし/11時30分~13時30分、17時30分~22時00分/140m(徒歩2分) ツインズバー/19時00分~2時00分/150m(徒歩2分) |
| カフェ |
エイトコーヒー/8時00分~21時00分/53m(徒歩1分) CafeWin/11時00分~21時00分/200m(徒歩2分) |
| コインパーキング |
パークネット/南青山2丁目第2 [料金] 昼 07:00~ 19:00 20分 / 400円 夜 19:00 ~ 07:00 60分 / 100円 [最大料金] 日祝 24時間 1500円 月~土 4時間 2500円 [台数]5台 トラストパーク/【ネットのみ予約可】TK南青山ビル [料金] 20分300円 [最大料金] [機械式] <月~土> 最大2200円 ※営業時間内 [平置き式] <月~土> 最大3200円 ※営業時間内 [機械式・平置ともに] <日・祝> 最大1500円 ※営業時間内 【宿泊料金】[機械式・平置ともに] 営業時間外 500円 ※営業時間外は入出庫できません [台数]79台 |
周辺地図
青山浜ビルは港区南青山にある地上4階建ての賃貸事務所です。最寄駅は東京メトロ銀座線の青山一丁目駅から徒歩4分、東京メトロ半蔵門線の青山一丁目駅から徒歩4分です。1974年4月竣工の鉄筋コンクリート造です。設備としては、駐車場があります。空調は個別空調です。複数駅利用可能なアクセスの良い港区南青山の賃貸オフィスです。
全フロア情報
更新日:2026年3月6日
| 階 | 面積 | 賃料 | 共益費 | 敷金 | 入居日 | お問合せ | お気に入り | |
|---|---|---|---|---|---|---|---|---|
|
1F
(102区画) |
13 坪 42.98 ㎡ |
※現在空室情報はございません |
※現在空室情報は 確認する |
|||||
|
2F
(201区画) |
15 坪 49.59 ㎡ |
※現在空室情報はございません |
※現在空室情報は 確認する |
|||||
|
2F
(202区画) |
14.97 坪 49.49 ㎡ |
※現在空室情報はございません |
※現在空室情報は 確認する |
|||||
|
3F
(301区画) |
14.97 坪 49.49 ㎡ |
※現在空室情報はございません |
※現在空室情報は 確認する |
|||||
お問い合わせ
似た条件の物件はこちら
-
メゾン青山
東京都港区北青山2-7-26
坪数:18.75 坪
坪単価:20,267 円(坪)
-
たつむら青山マンション(青南吉川興産ビル)
東京都港区南青山5-4-35
坪数:11.4 坪
坪単価:19,298 円(坪)
-
青山アレー
東京都港区南青山6-4-6
坪数:16.2 坪
坪単価:26,543 円(坪)
-
南青山ユニハイツ
東京都港区南青山6-12-3
坪数:18.31 坪
坪単価:18,569 円(坪)
-
ティアック青山
東京都港区北青山3-10-21
坪数:16.52 坪
坪単価:22,397 円(坪)
-
リーラ乃木坂
東京都港区南青山1-15-18
坪数:17.2 坪
坪単価:18,000 円(坪)
-
クレアトゥール南青山
東京都港区南青山3-8-7
坪数:13.59 坪
坪単価:16,924 円(坪)
-
南青山セピアコート
東京都港区南青山6-8-3
坪数:18.09 坪
坪単価:21,006 円(坪)
-
シグマ南青山ビル
東京都港区南青山2-11-14
坪数:14.16 坪
坪単価:40,000 円(坪)
-
美松ビル
東京都港区南青山1-4-17
坪数:18.91 坪
坪単価:20,624 円(坪)