白鹿茅場町ビル(物件No:81986153)
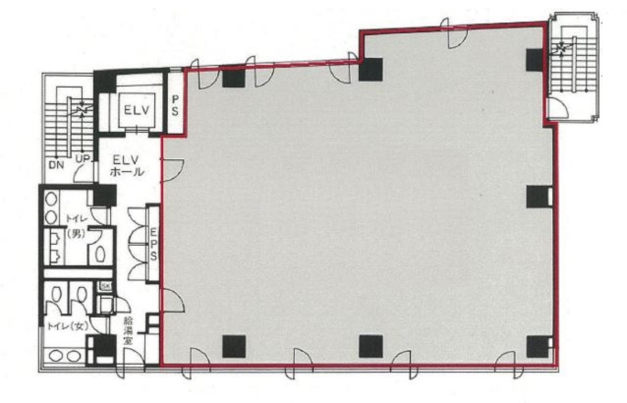
白鹿茅場町ビルは、中央区新川にある貸事務所物件です。最寄り駅は東京メトロ東西線茅場町駅、東京メトロ日比谷線、JR八丁堀駅、東京メトロ半蔵門線水天宮駅、都営浅草線人形町駅となっています。1993年竣工で、基準階が65.01坪の賃貸オフィスビルです。床はOAフロアで、天井の高さは2600mm。トイレは室外男女別で、空調は個別空調です。エレベーターは1基あり、駐車場が利用可能です。複数路線利用可能な中央区新川の貸事務所です。
-
物件情報
-
設備情報
- トイレ
- 室外男女別
- 床
- フリーアクセス
- 空調
- 個別空調
- セキュリティ
- -
- 駐車場
- 有
- 会議室
- -
- エレベーター
- 1基
- 天井高
- 2600mm
-
間取り図
-
近隣相場情報
新川1丁目(50~100坪)の相場
14425 円 (坪)
※ビルサク調べ
周辺施設情報
| コンビニ |
セブンイレブン/中央区新川1永代通/220m(徒歩3分) ローソン/ナチュラル 新川一丁目/220m(徒歩3分) |
|---|---|
| 郵便局/銀行 |
セブン銀行/中央区新川1永代通店/[営業時間]24時間営業/220m(徒歩3分) 郵便局/中央新川/[駐車場]なし [取扱]郵便/貯金/保険/ATM/230m(徒歩3分) |
| 飲食店 |
灯ノ番/11時30分~14時00分 17時30分~23時30分/120m(徒歩1分) とんかつ 天山 新川店/11時00分~14時00分/130m(徒歩2分) |
| カフェ |
ベローチェ/新川店/[営業時間]6:30~22:00 土7:00~22:00日・祝7:00~21:00/250m(徒歩3分) ドトール/新川永代通り店/[営業時間]平日:7:00~20:00 土曜日:7:30~16:30 日 祝:-/200m(徒歩3分) |
| コインパーキング |
コインパーク/新川1丁目 [料金] [料金]【月~土】 ■通常料金 【 0:00~24:00 】 20分400円 ■通常料金 【 0:00~24:00 】 20分400円 [最大料金] [料金] ■最大料金 【 8:00~18:00】 3000円 【 18:00~8:00】 500円 【 日祝 】 ■最大料金 【 8:00~18:00】 1000円 【 18:00~8:00】 500円 [台数][車: 11台] タイムズ駐車場/TNS新川1丁目第2 [料金] [月~土]通常料金 / 8:00~20:00 20分 200円 20:00~8:00 90分 100円 [日・祝]通常料金 / 8:00~20:00 30分 100円 20:00~8:00 90分 100円 [最大料金] [月~土]当日1日最大料金3000円(24時迄) [日・祝]当日1日最大料金1000円(24時迄) [台数]5 |
周辺地図
白鹿茅場町ビルは、中央区新川にある貸事務所物件です。最寄り駅は東京メトロ東西線茅場町駅、東京メトロ日比谷線、JR八丁堀駅、東京メトロ半蔵門線水天宮駅、都営浅草線人形町駅となっています。1993年竣工で、基準階が65.01坪の賃貸オフィスビルです。床はOAフロアで、天井の高さは2600mm。トイレは室外男女別で、空調は個別空調です。エレベーターは1基あり、駐車場が利用可能です。複数路線利用可能な中央区新川の貸事務所です。
全フロア情報
更新日:2026年2月5日
| 階 | 面積 | 賃料 | 共益費 | 敷金 | 入居日 | お問合せ | お気に入り | |
|---|---|---|---|---|---|---|---|---|
| 1F |
25.15 坪 83.14 ㎡ |
※現在空室情報はございません |
※現在空室情報は 確認する |
|||||
| 2F |
65.02 坪 214.94 ㎡ |
※現在空室情報はございません |
※現在空室情報は 確認する |
|||||
| 3F |
65.02 坪 214.94 ㎡ |
※現在空室情報はございません |
※現在空室情報は 確認する |
|||||
| 4F |
65.02 坪 214.94 ㎡ |
相談 |
290,184 円 4,463 円(坪) |
12ヶ月 |
2026/08 |
|
|
|
| 5F |
65.02 坪 214.94 ㎡ |
※現在空室情報はございません |
※現在空室情報は 確認する |
|||||
| 6F |
65.02 坪 214.94 ㎡ |
※現在空室情報はございません |
※現在空室情報は 確認する |
|||||
| 7F |
65.02 坪 214.94 ㎡ |
相談 |
290,184 円 4,463 円(坪) |
12ヶ月 |
2026/08 |
|
|
|
お問い合わせ
似た条件の物件はこちら
-
ONE SHINKAWA
東京都中央区新川1-23-5
坪数:68.46 坪
坪単価:20,000 円(坪)
-
ネオ神谷
東京都中央区八丁堀4-10-11
坪数:53.75 坪
坪単価:8,500 円(坪)
-
茅場町会館
東京都中央区日本橋茅場町1-12-4
坪数:59.4 坪
坪単価:13,000 円(坪)
-
京橋北見ビル東館
東京都中央区八丁堀3-4-10
坪数:65.85 坪
坪単価:12,000 円(坪)
-
八丁堀サード
東京都中央区八丁堀3-14-4
坪数:65.9 坪
坪単価:23,000 円(坪)
-
八丁堀岡谷ビル
東京都中央区八丁堀4-11-5
坪数:63.02 坪
坪単価:16,000 円(坪)
-
SHビル
東京都中央区新川2-9-9
坪数:68.25 坪
坪単価:10,500 円(坪)
-
KYOE PLAZA KAYABACHOⅡ
東京都中央区日本橋茅場町1-11-9
坪数:71.68 坪
坪単価:29,000 円(坪)
-
馬事畜産会館
東京都中央区新川2-6-16
坪数:66.27 坪
坪単価:13,225 円(坪)
-
茅場町偕成ビル
東京都中央区日本橋茅場町2-3-6
坪数:67.97 坪
坪単価:23,000 円(坪)