いろいろ聞いてみる

東上野の賃貸オフィス

日新上野ビル(物件No:81985199)

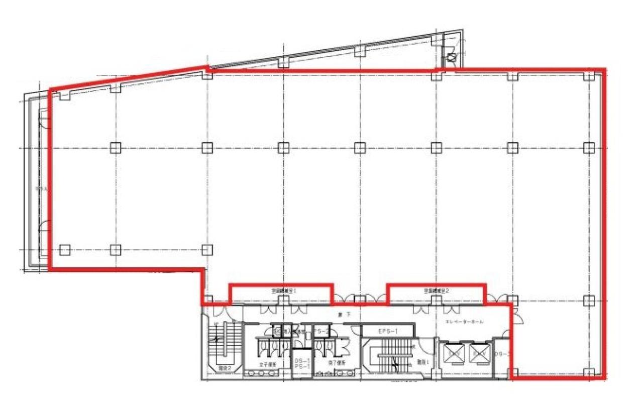
日新上野ビルは台東区東上野にある地下2階、地上8階建ての賃貸事務所です。最寄駅は東京メトロ銀座線の稲荷町駅から徒歩1分、JR線の上野駅から徒歩7分です。1991年8月竣工の基準階面積が235坪の鉄骨鉄筋コンクリート造です。設備としては、エレベーターが2基あり、駐車場もあります。空調は個別空調です。床仕様はフリーアクセスです。天高は2520mmです。最寄駅から近くて便利な台東区東上野の賃貸オフィスです。

  • 日新上野ビル
  • 日新上野ビル
  • 日新上野ビル
  • 日新上野ビル
面積 賃料 共益費 敷金 入居日 お問合せ お気に入り
3F

235.59 坪

778.81 ㎡

※現在空室情報はございません

※現在空室情報は
ございません

最新情報を
確認する

周辺地図

日新上野ビルは台東区東上野にある地下2階、地上8階建ての賃貸事務所です。最寄駅は東京メトロ銀座線の稲荷町駅から徒歩1分、JR線の上野駅から徒歩7分です。1991年8月竣工の基準階面積が235坪の鉄骨鉄筋コンクリート造です。設備としては、エレベーターが2基あり、駐車場もあります。空調は個別空調です。床仕様はフリーアクセスです。天高は2520mmです。最寄駅から近くて便利な台東区東上野の賃貸オフィスです。

全フロア情報

更新日:2024年2月2日

面積 賃料 共益費 敷金 入居日 お問合せ お気に入り
B1F

52.49 坪

173.52 ㎡

※現在空室情報はございません

※現在空室情報は
ございません

最新情報を
確認する
B1F

(1区画)

9.48 坪

31.34 ㎡

※現在空室情報はございません

※現在空室情報は
ございません

最新情報を
確認する
2F

193.60 坪

640.00 ㎡

※現在空室情報はございません

※現在空室情報は
ございません

最新情報を
確認する
3F

235.59 坪

778.81 ㎡

※現在空室情報はございません

※現在空室情報は
ございません

最新情報を
確認する
4F

226.62 坪

749.16 ㎡

※現在空室情報はございません

※現在空室情報は
ございません

最新情報を
確認する
5F

218.14 坪

721.12 ㎡

※現在空室情報はございません

※現在空室情報は
ございません

最新情報を
確認する
7F

215.38 坪

712.00 ㎡

※現在空室情報はございません

※現在空室情報は
ございません

最新情報を
確認する

お問い合わせ

必須
必須
必須
必須
必須

関連エリアから探す

駅から探す

お問い合わせ

物件に関してのお問い合わせ

「失敗しないオフィス移転サポート」物件探しから移転までスムーズで担当者様がとにかく楽になるサービスです。

050-7587-0049平日 9:00~18:00

メールでお問い合わせ

フリーワード検索