第2工業ビル(物件No:81985036)
第2工業ビルは渋谷区神南にある地上9階建ての賃貸事務所です。最寄駅はJR線の渋谷駅から徒歩6分、東急東横線の渋谷駅から徒歩6分です。1970年6月竣工の鉄骨鉄筋コンクリート造です。設備としては、エレベーターが1基あります。セキュリティは機械警備です。トイレは男女別です。空調は個別空調です。複数路線利用可能なアクセスの良い渋谷区神南の賃貸オフィスです。
| 階 | 面積 | 賃料 | 共益費 | 敷金 | 入居日 | お問合せ | お気に入り | |
|---|---|---|---|---|---|---|---|---|
|
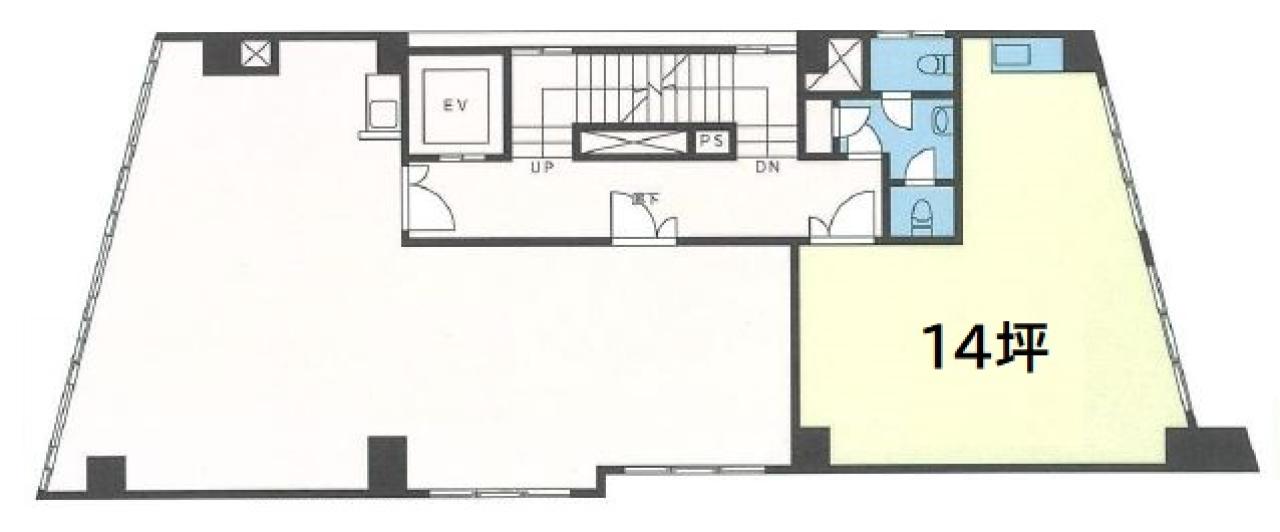
4F
(403区画) |
14 坪 46.28 ㎡ |
※現在空室情報はございません |
※現在空室情報は 確認する |
|||||
| 階 | 面積 | 賃料 | 共益費 | 敷金 | 入居日 | お問合せ | お気に入り | |
|---|---|---|---|---|---|---|---|---|
|
4F
(403区画) |
14 坪 46.28 ㎡ |
※現在空室情報はございません |
※現在空室情報は 確認する |
|||||
-
物件情報
-
設備情報
- トイレ
- 男女別
- 床
- -
- 空調
- 個別空調
- セキュリティ
- 有
- 駐車場
- -
- 会議室
- -
- エレベーター
- 1基
- 天井高
- -
-
間取り図
-
近隣相場情報
神南1丁目(20坪以下)の相場
30806 円 (坪)
※ビルサク調べ
周辺施設情報
| コンビニ |
ファミリーマート/渋谷駅北店/200m(徒歩3分) セブンイレブン/渋谷公園通り/400m(徒歩6分) |
|---|---|
| 郵便局/銀行 |
ゆうちょ/ATM 本店 ファミリーマートパンゲアストア渋谷店内出張所/[営業時間] [ATM]平日 8:00~20:00 土曜日 8:00~20:00 日曜日・休日 8:00~20:00 [駐車場]なし [取扱]ATM/カードATM [備考]海外発行カードによる現金引き出しサービスにおいて、16言語でご利用いただけます/350m(徒歩5分) セブン銀行/渋谷ロフト/[営業時間]10:00~21:00 [備考]1 台/350m(徒歩5分) |
| 飲食店 |
BAR希望/11時00分~23時00分/900m(徒歩11分) 丸木屋商店/17時00分~21時00分/850m(徒歩11分) |
| カフェ |
Rhythm Cafe/18時00分~2時00分/450m(徒歩6分) MUJI/Cafe&Meal_渋谷西武/[営業時間]10:00~21:00/フードメニュー 10:00スタート/350m(徒歩5分) |
| コインパーキング |
タイムズ/渋谷東武ホテル [料金] [全日]通常料金 / 0:00~0:00 10分 330円 [最大料金] [全日]9:00~19:00 最大料金4620円 [全日]19:00~9:00 最大料金1650円 [台数]5 三井のリパーク/宮下公園南駐車場 [料金] 平日 00:00~24:00 30分/310円 土日祝 00:00~24:00 30分/360円 [最大料金] 【月~金】最大料金入庫後12時間以内(繰返し)3000円 [台数]97 |
周辺地図
第2工業ビルは渋谷区神南にある地上9階建ての賃貸事務所です。最寄駅はJR線の渋谷駅から徒歩6分、東急東横線の渋谷駅から徒歩6分です。1970年6月竣工の鉄骨鉄筋コンクリート造です。設備としては、エレベーターが1基あります。セキュリティは機械警備です。トイレは男女別です。空調は個別空調です。複数路線利用可能なアクセスの良い渋谷区神南の賃貸オフィスです。
全フロア情報
更新日:2026年2月13日
| 階 | 面積 | 賃料 | 共益費 | 敷金 | 入居日 | お問合せ | お気に入り | |
|---|---|---|---|---|---|---|---|---|
| 2F |
37.61 坪 124.33 ㎡ |
※現在空室情報はございません |
※現在空室情報は 確認する |
|||||
|
4F
(01-02区画) |
26 坪 85.95 ㎡ |
572,000 円 22,000 円(坪) |
無 |
4,576,000 円 8 ヶ月 |
相談 |
|
|
|
|
4F
(403区画) |
14 坪 46.28 ㎡ |
※現在空室情報はございません |
※現在空室情報は 確認する |
|||||
| 5F |
40 坪 132.23 ㎡ |
880,000 円 22,000 円(坪) |
無 |
7,040,000 円 8 ヶ月 |
相談 |
|
|
|
|
6F
(603区画) |
14 坪 46.28 ㎡ |
308,000 円 22,000 円(坪) |
相談 |
2,464,000 円 8 ヶ月 |
相談 |
|
|
|
お問い合わせ
似た条件の物件はこちら
-
フタミビル
東京都渋谷区神宮前2-16-9
坪数:12.1 坪
坪単価:14,876 円(坪)
-
ビラ・モデルナ
東京都渋谷区渋谷1-3-18
坪数:10.58 坪
坪単価:22,212 円(坪)
-
渋谷3丁目ビル
東京都渋谷区渋谷3-18-4
坪数:17.43 坪
坪単価:26,000 円(坪)
-
三貴ビル
東京都渋谷区渋谷2-12-12
坪数:13.8 坪
坪単価:22,000 円(坪)
-
フォーラム神宮前
東京都渋谷区神宮前4-6-2
坪数:13.16 坪
坪単価:22,796 円(坪)
-
アクシーズ7号館ビル
東京都渋谷区渋谷3-17-4
坪数:18 坪
坪単価:20,000 円(坪)
-
越一ビル
東京都渋谷区神宮前6-19-16
坪数:19 坪
坪単価:22,000 円(坪)
-
秀和外苑レジデンス
東京都渋谷区神宮前2-6-6
坪数:11 坪
坪単価:21,818 円(坪)
-
若葉ビル
東京都渋谷区道玄坂1-22-10
坪数:16.1 坪
坪単価:15,300 円(坪)
-
ナルセビルディング
東京都渋谷区渋谷3-18-7
坪数:18.5 坪
坪単価:27,500 円(坪)