トレリ青葉台(物件No:81962036)
トレリ青葉台は東京都目黒区青葉台にある地上2階建ての賃貸オフィスです。最寄駅は京王井の頭線 神泉駅 徒歩9分です。2023年竣工の鉄筋コンクリート造です。トイレは室内にあります。複数路線利用可能で、アクセスの良い目黒区青葉台の賃貸オフィスです。
| 階 | 面積 | 賃料 | 共益費 | 敷金 | 入居日 | お問合せ | お気に入り | |
|---|---|---|---|---|---|---|---|---|
|
2F
(202区画) |
25.47 坪 84.2 ㎡ |
※現在空室情報はございません |
※現在空室情報は 確認する |
|||||
| 階 | 面積 | 賃料 | 共益費 | 敷金 | 入居日 | お問合せ | お気に入り | |
|---|---|---|---|---|---|---|---|---|
|
2F
(202区画) |
25.47 坪 84.2 ㎡ |
※現在空室情報はございません |
※現在空室情報は 確認する |
|||||
-
物件情報
-
設備情報
- トイレ
- -
- 床
- -
- 空調
- -
- セキュリティ
- -
- 駐車場
- -
- 会議室
- -
- エレベーター
- -
- 天井高
- -
-
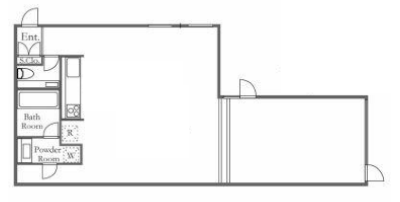
間取り図
-
近隣相場情報
青葉台2丁目(20~30坪)の相場
21252 円 (坪)
※ビルサク調べ
周辺地図
トレリ青葉台は東京都目黒区青葉台にある地上2階建ての賃貸オフィスです。最寄駅は京王井の頭線 神泉駅 徒歩9分です。2023年竣工の鉄筋コンクリート造です。トイレは室内にあります。複数路線利用可能で、アクセスの良い目黒区青葉台の賃貸オフィスです。
全フロア情報
更新日:2026年2月10日
| 階 | 面積 | 賃料 | 共益費 | 敷金 | 入居日 | お問合せ | お気に入り | |
|---|---|---|---|---|---|---|---|---|
|
2F
(201区画) |
19.27 坪 63.7 ㎡ |
540,000 円 28,023 円(坪) |
無 |
1,080,000 円 2 ヶ月 |
即日 |
|
|
|
|
2F
(202区画) |
25.47 坪 84.2 ㎡ |
※現在空室情報はございません |
※現在空室情報は 確認する |
|||||
お問い合わせ
似た条件の物件はこちら
-
KSビル
東京都目黒区大橋1-2-5
坪数:18.7 坪
坪単価:13,000 円(坪)
-
ヴィラ青葉台
東京都目黒区青葉台1-11-19
坪数:21.48 坪
坪単価:27,933 円(坪)
-
東山S邸
東京都目黒区東山3-22-19
坪数:28.95 坪
坪単価:14,759 円(坪)
-
中目黒TD
東京都目黒区中目黒2-8-22
坪数:31.03 坪
坪単価:10,000 円(坪)
-
そうめい堂ビル
東京都目黒区青葉台4-5-2
坪数:17.56 坪
坪単価:14,237 円(坪)
-
aobadai .hillz
東京都目黒区青葉台3-13-14
坪数:16.2 坪
坪単価:18,855 円(坪)
-
中目黒FSビル
東京都目黒区中目黒3-6-2
坪数:19.98 坪
坪単価:30,030 円(坪)
-
ブルックスビルディング
東京都目黒区青葉台1-28-11
坪数:20.51 坪
坪単価:14,627 円(坪)
-
池尻大橋グリーンランドビル
東京都目黒区大橋2-4-21
坪数:27.24 坪
坪単価:11,599 円(坪)
-
I.W.Place Aobadai
東京都目黒区青葉台4-7-4
坪数:23.85 坪
坪単価:27,000 円(坪)