富士(物件No:81889135)
富士は港区新橋にある地上7階建ての賃貸事務所です。最寄駅は都営三田線の御成門駅から徒歩5分、都営大江戸線の汐留駅から徒歩8分、JR山手線の新橋駅から徒歩7分です。1980年竣工の基準階面積が24.1坪の鉄筋コンクリート造です。設備としては、エレベーターが1基あります。セキュリティは機械警備です。空調は個別空調です。複数路線利用可能なアクセスの良い港区新橋の賃貸オフィスです。
-
物件情報
-
設備情報
- トイレ
- -
- 床
- -
- 空調
- 個別空調
- セキュリティ
- 有
- 駐車場
- -
- 会議室
- -
- エレベーター
- 1基
- 天井高
- -
-
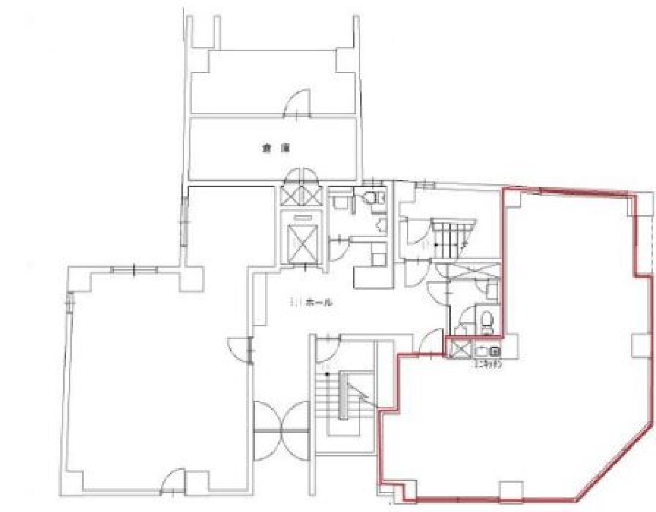
間取り図
-
近隣相場情報
新橋5丁目(20~30坪)の相場
15896 円 (坪)
※ビルサク調べ
周辺施設情報
| コンビニ |
まいばすけっと/新橋5丁目店/100m(徒歩1分) ファミリーマート/ファミマ汐留シティセンター店/850m(徒歩12分) |
|---|---|
| 郵便局/銀行 |
イーネット/ファミリーマート汐留メディアタワー/[営業時間]0:00~24:00/650m(徒歩9分) 郵便局/ATM ファミリーマート日生薬局御成門店内出張所/[ATM]平日0:05~23:55、土曜0:05~23:55、日曜0:05~23:55/400m(徒歩5分) |
| 飲食店 |
布袋家/[月~金・土・祝前]ランチ:11:00〜15:00 [月~金・祝前]ディナー:17:00〜20:00/95m(徒歩1分) 新ばし星野/18:00~23:00/72m(徒歩1分) |
| カフェ |
ドトール/西新橋3丁目店/[営業時間]平日:7:00~19:30 土曜日:- 日 祝:- [休業日]日曜、祝日、土曜 [備考]総席数:17 禁煙席:2 喫煙席:15/500m(徒歩6分) スターバックス/ペディ汐留店/[営業時間]月~金:7:00~22:00/土日祝:8:00~20:00 [休業日]不定休 [備考]無線LAN:STARBUCKS/docomo/Softbank/au/Wi2 300/750m(徒歩10分) |
| コインパーキング |
三井のリパーク/NBFコモディオ汐留 [料金] 全日 08:00~22:00 20分/300円 全日 22:00~08:00 60分/100円 [最大料金] 【全日】最大料金入庫後24時間以内3800円 [台数]10 コインパーク/コンシェリア芝公園 [料金] 【月~金】 ■通常料金 【オ-ルタイム[24時間]】 15分/400円 【日祝】 ■通常料金 【オ-ルタイム[24時間]】 15分/400円 【土】 ■通常料金 【オ-ルタイム[24時間]】 15分/400円 [最大料金] 【月~金】 ■最大料金 【18:00~8:00】 800円 【日祝】 ■最大料金 【8:00~18:00】 1000円 【18:00~8:00】 800円 【土】 ■最大料金 【8:00~18:00】 4000円 【18:00~8:00】 800円 [台数][車: 2台] |
周辺地図
富士は港区新橋にある地上7階建ての賃貸事務所です。最寄駅は都営三田線の御成門駅から徒歩5分、都営大江戸線の汐留駅から徒歩8分、JR山手線の新橋駅から徒歩7分です。1980年竣工の基準階面積が24.1坪の鉄筋コンクリート造です。設備としては、エレベーターが1基あります。セキュリティは機械警備です。空調は個別空調です。複数路線利用可能なアクセスの良い港区新橋の賃貸オフィスです。
全フロア情報
更新日:2025年10月27日
| 階 | 面積 | 賃料 | 共益費 | 敷金 | 入居日 | お問合せ | お気に入り | |
|---|---|---|---|---|---|---|---|---|
| 1F |
21.7 坪 71.74 ㎡ |
※現在空室情報はございません |
※現在空室情報は 確認する |
|||||
| 5F |
31.86 坪 105.32 ㎡ |
※現在空室情報はございません |
※現在空室情報は 確認する |
|||||
お問い合わせ
似た条件の物件はこちら
-
日比谷パークビル
東京都港区西新橋2-23-2
坪数:21.98 坪
坪単価:18,004 円(坪)
-
桔梗備前ビル
東京都港区西新橋1-19-6
坪数:20.63 坪
坪単価:16,966 円(坪)
-
丸万1号館
東京都港区西新橋1-11-1
坪数:24.44 坪
坪単価:15,000 円(坪)
-
S.A.グレイス
東京都港区西新橋1-23-3
坪数:16.65 坪
坪単価:23,000 円(坪)
-
アヴァンセ虎ノ門ビル
東京都港区西新橋2-13-15
坪数:20.28 坪
坪単価:23,669 円(坪)
-
つゆきビル
東京都港区新橋6-7-5
坪数:17.15 坪
坪単価:13,411 円(坪)
-
YAHATA汐留ビル
東京都港区東新橋2-9-7
坪数:18.79 坪
坪単価:20,490 円(坪)
-
汐留AZビル
東京都港区東新橋2-6-6
坪数:19.56 坪
坪単価:15,000 円(坪)
-
虎ノ門法曹ビル
東京都港区西新橋1-20-3
坪数:17.82 坪
坪単価:17,000 円(坪)
-
土井ビル
東京都港区虎ノ門5-2-7
坪数:16.52 坪
坪単価:16,000 円(坪)