パレスサイド千代田(物件No:81888170)
パレスサイド千代田は、千代田区隼町にある貸事務所物件です。最寄駅は、東京メトロ半蔵門線半蔵門駅、東京メトロ有楽町線麹町駅、東京メトロ南北線永田町駅です。1987年竣工で、基準階が25.96坪の賃貸オフィスビルです。床はOAフロアで、天井の高さは2280mm。トイレは室内男女別で、空調は個別空調です。エレベーターは1基あります。最寄駅から徒歩1分。複数路線利用可能で交通アクセスの良い、千代田区隼町の貸事務所です。
-
物件情報
-
設備情報
- トイレ
- 室内男女別
- 床
- -
- 空調
- 個別空調
- セキュリティ
- -
- 駐車場
- -
- 会議室
- -
- エレベーター
- 1基
- 天井高
- 2280mm
-
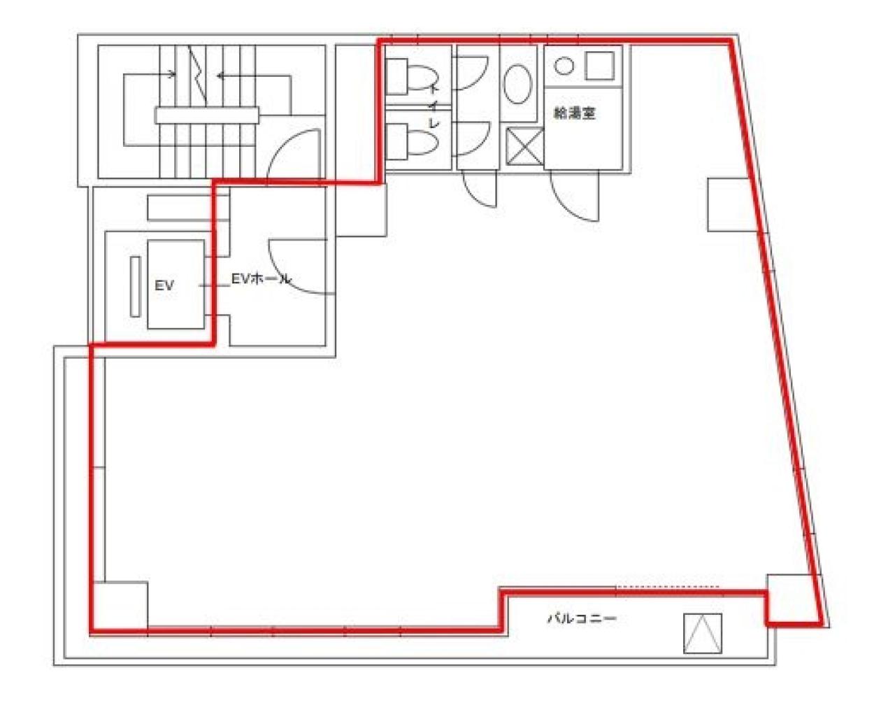
間取り図
-
近隣相場情報
隼町2丁目(20~30坪)の相場
23722 円 (坪)
※ビルサク調べ
周辺施設情報
| コンビニ |
セブンイレブン/千代田区麹町3丁目/350m(徒歩5分) ローソン/ナチュラル 平河町森タワー/600m(徒歩7分) |
|---|---|
| 郵便局/銀行 |
ゆうちょ/最高裁判所内郵便局/[営業時間] [窓口]平日 9:00~16:00 土曜日 - 日曜日・休日 - [ATM]平日 9:00~17:00 土曜日 - 日曜日・休日 - [駐車場]なし [取扱]郵便/貯金/保険/ATM [備考]※新型コロナウイルスに感染した社員が発生した場合、窓口業務、ATMを一時休止することがあります/450m(徒歩5分) JAバンク/JA東京信連 JA共済ビルATMコーナー/[営業時間] [ATM]平日 9:00~18:00 土曜日 - 日曜日 - 祝日 -/600m(徒歩8分) |
| 飲食店 |
栄翔 麹町店/11時00分~22時00分/93m(徒歩1分) 和食処「門」/11時30分~14時00分/250m(徒歩3分) |
| カフェ |
タリーズ/麹町店/[営業時間]平日:7:30~21:00 土:8:00~19:00 日祝:8:00~19:00 [備考]Tully's Wi-Fi、禁煙/400m(徒歩5分) no4/11時00分~17時00分/100m(徒歩1分) |
| コインパーキング |
PARKS PARK/千代田区麹町1丁目 [料金] 【昼間】 8:00~20:00 300円 / 15分 【夜間】 20:00~8:00 100円 / 60分 [最大料金] 【24時間最大料金】 月曜~土曜日(祝日除く) 3000円 (繰り返し可) 【24時間最大料金】 日曜日・祝日 2000円 (繰り返し可) 【夜間最大料金】 全日 20:00~8:00 500円 (繰り返し可) 24時間営業 三井のリパーク/麹町2丁目 [料金] 全日 08:00~00:00 15分/500円 全日 00:00~08:00 60分/100円 [最大料金] 【全日】最大料金入庫後4時間以内2800円(4番のみ) [台数]3 |
周辺地図
パレスサイド千代田は、千代田区隼町にある貸事務所物件です。最寄駅は、東京メトロ半蔵門線半蔵門駅、東京メトロ有楽町線麹町駅、東京メトロ南北線永田町駅です。1987年竣工で、基準階が25.96坪の賃貸オフィスビルです。床はOAフロアで、天井の高さは2280mm。トイレは室内男女別で、空調は個別空調です。エレベーターは1基あります。最寄駅から徒歩1分。複数路線利用可能で交通アクセスの良い、千代田区隼町の貸事務所です。
全フロア情報
更新日:2022年1月27日
| 階 | 面積 | 賃料 | 共益費 | 敷金 | 入居日 | お問合せ | お気に入り | |
|---|---|---|---|---|---|---|---|---|
|
4F
(401区画) |
27.20 坪 89.92 ㎡ |
※現在空室情報はございません |
※現在空室情報は 確認する |
|||||
|
6F
(601区画) |
27.20 坪 89.92 ㎡ |
※現在空室情報はございません |
※現在空室情報は 確認する |
|||||
| 7F |
27.33 坪 90.35 ㎡ |
※現在空室情報はございません |
※現在空室情報は 確認する |
|||||
| 8F |
24.33 坪 80.43 ㎡ |
※現在空室情報はございません |
※現在空室情報は 確認する |
|||||
お問い合わせ
似た条件の物件はこちら
-
第2DMJビル
東京都千代田区九段南3-5-9
坪数:24.41 坪
坪単価:20,000 円(坪)
-
全国旅館会館
東京都千代田区平河町2-5-5
坪数:25.55 坪
坪単価:15,400 円(坪)
-
センダビル
東京都千代田区麹町3-7-9
坪数:19 坪
坪単価:9,000 円(坪)
-
A・I二番町ビル
東京都千代田区二番町10-24
坪数:26 坪
坪単価:15,210 円(坪)
-
隼東幸ビル
東京都千代田区隼町3-19
坪数:21.15 坪
坪単価:14,000 円(坪)
-
Shirasuna bldg.NAGATACHO
東京都千代田区平河町2-10-4
坪数:28.45 坪
坪単価:22,048 円(坪)
-
DIK麹町ビル
東京都千代田区麹町1-6-9
坪数:19.27 坪
坪単価:12,500 円(坪)
-
エクサス六番町
東京都千代田区六番町11-3
坪数:26.66 坪
坪単価:13,128 円(坪)
-
グランドメゾン六番町
東京都千代田区六番町6-20
坪数:26.63 坪
坪単価:13,143 円(坪)
-
I・S四番町ビル
東京都千代田区四番町4-13
坪数:19 坪
坪単価:13,500 円(坪)