西京ビル(物件No:81884188)
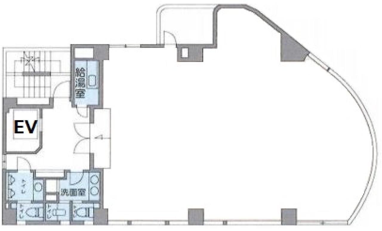
西京ビルは、豊島区西池袋にある貸事務所物件です。最寄り駅は、JR線、東京メトロ丸ノ内線、東京メトロ有楽町線、東武東上線、東京メトロ副都心線、西武池袋線の池袋駅です。1990年竣工で、基準階が46.46坪の賃貸オフィスビルです。床はOAフロアとなっております。空調は個別空調で、トイレは室外にあり、男女別です。エレベーターは1基あります。複数路線利用可能な、アクセスの良い豊島区西池袋の貸事務所です。
-
物件情報
-
設備情報
- トイレ
- 室外男女別
- 床
- フリーアクセス
- 空調
- 個別空調
- セキュリティ
- 有
- 駐車場
- 無
- 会議室
- -
- エレベーター
- 1基
- 天井高
- -
-
間取り図
-
近隣相場情報
西池袋1丁目(40~50坪)の相場
18830 円 (坪)
※ビルサク調べ
周辺施設情報
| コンビニ |
ファミリーマート/池袋北口駅前店/200m(徒歩3分) ローソン/池袋二丁目文化通/250m(徒歩3分) |
|---|---|
| 郵便局/銀行 |
大光銀行/東京支店/[営業時間] [窓口]平日/9:00~12:00、13:00~15:00 昼休業時間 平日/12:00~13:00 [ATM]-/400m(徒歩5分) イーネット/ファミリーマート西池袋一番街2号機/[営業時間]0:00~24:00/250m(徒歩3分) |
| 飲食店 |
炭火焼肉 貴仙本店/18時00分~5時00分/73m(徒歩1分) アリヤ 清真美食 池袋店/11時00分~23時00分/36m(徒歩1分) |
| カフェ |
カフェ・ド・巴里池袋西口店/7時00分~23時00分/250m(徒歩3分) 伯爵 池袋北口店/7時00分~23時00分/150m(徒歩2分) |
| コインパーキング |
タイムズ/池袋北口駅前第2 [料金] [全日]8:00~21:00 15分 440円 [全日]21:00~8:00 60分 220円 [最大料金] [全日]最大料金(繰り返し適用)駐車後4時間 最大料金2000円 [台数]20台 パークネット/西池袋1丁目第1 [料金] 昼8:00~21:00 15分 / 440円 夜21:00~8:00 60分 / 220円 [最大料金] 最大料金 4時間 2000円 最大料金は、くり返し適用されます。 [台数]12台 |
周辺地図
西京ビルは、豊島区西池袋にある貸事務所物件です。最寄り駅は、JR線、東京メトロ丸ノ内線、東京メトロ有楽町線、東武東上線、東京メトロ副都心線、西武池袋線の池袋駅です。1990年竣工で、基準階が46.46坪の賃貸オフィスビルです。床はOAフロアとなっております。空調は個別空調で、トイレは室外にあり、男女別です。エレベーターは1基あります。複数路線利用可能な、アクセスの良い豊島区西池袋の貸事務所です。
全フロア情報
更新日:2025年11月4日
| 階 | 面積 | 賃料 | 共益費 | 敷金 | 入居日 | お問合せ | お気に入り | |
|---|---|---|---|---|---|---|---|---|
| 4F |
46.46 坪 153.59 ㎡ |
※現在空室情報はございません |
※現在空室情報は 確認する |
|||||
| 6F |
46.46 坪 153.59 ㎡ |
※現在空室情報はございません |
※現在空室情報は 確認する |
|||||
| 7F |
46.46 坪 153.59 ㎡ |
※現在空室情報はございません |
※現在空室情報は 確認する |
|||||
お問い合わせ
似た条件の物件はこちら
-
池袋MIBビル
東京都豊島区池袋2-68-9
坪数:43.12 坪
坪単価:10,436 円(坪)
-
サンポウ池袋ビル
東京都豊島区池袋4-32-8
坪数:41.87 坪
坪単価:13,000 円(坪)
-
エキニア池袋
東京都豊島区西池袋1-17-10
坪数:55.34 坪
坪単価:27,000 円(坪)
-
いちご南池袋ビル
東京都豊島区南池袋2-27-17
坪数:41.32 坪
坪単価:21,500 円(坪)
-
日興池袋ビル(旧 トウセン池袋ビル)
東京都豊島区池袋4-29-11
坪数:37.5 坪
坪単価:10,600 円(坪)
-
山の手ビル東館
東京都豊島区南池袋1-19-12
坪数:48.89 坪
坪単価:18,000 円(坪)
-
東都自動車ビルディング
東京都豊島区西池袋5-13-13
坪数:37.51 坪
坪単価:12,022 円(坪)
-
新東第一ビル
東京都豊島区西池袋1-16-1
坪数:36.48 坪
坪単価:24,323 円(坪)
-
第5アムスビル
東京都豊島区東池袋1-15-10
坪数:37.17 坪
坪単価:33,629 円(坪)
-
メトロシティ南池袋
東京都豊島区南池袋2-29-12
坪数:44.2 坪
坪単価:21,000 円(坪)