ワカサビル(物件No:81882135)
ワカサビルは港区西新橋にある地上5階建ての賃貸事務所です。最寄駅はJR線の新橋駅から徒歩5分です。1994年竣工の鉄筋コンクリート造です。設備としては、エレベーターが1基あります。セキュリティは機械警備です。空調は個別空調です。耐震設計となっている、ビジネス街として人気のある港区西新橋の賃貸オフィスです。
-
物件情報
- 住所
- 東京都港区西新橋2-8-1
- 最寄り駅
-
JR線
新橋駅
徒歩5分
- 竣工
- 1994年
- 耐震
- 新耐震基準
- 規模・構造
- 1F - 5F 鉄筋コンクリート造
-
設備情報
- トイレ
- 室内男女別
- 床
- -
- 空調
- 個別空調
- セキュリティ
- 有
- 駐車場
- -
- 会議室
- -
- エレベーター
- 1基
- 天井高
- -
-
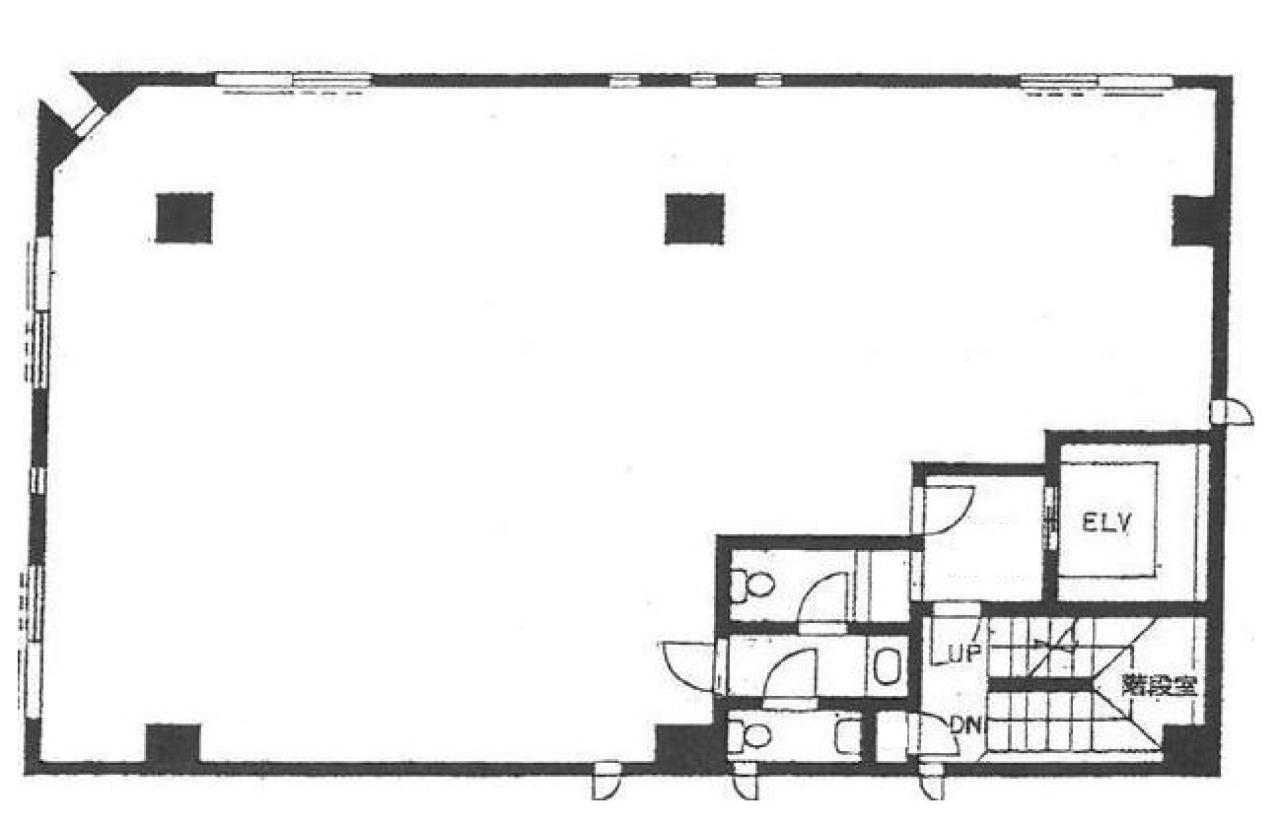
間取り図
-
近隣相場情報
西新橋2丁目(30~40坪)の相場
19298 円 (坪)
※ビルサク調べ
周辺施設情報
| コンビニ |
セブンイレブン/西新橋3丁目/350m(徒歩5分) ファミリーマート/ファミマ虎ノ門ヒルズ店/500m(徒歩6分) |
|---|---|
| 郵便局/銀行 |
香川銀行/東京支店/[営業時間](平日)09:00~15:00/550m(徒歩7分) 城南信用金庫/新橋支店/[営業時間] [窓口]平日9:00~15:00 [ATM]<平日>8:00~21:00<土曜日>8:45~19:00/400m(徒歩5分) |
| 飲食店 |
ピアノバー CAT'S/18時30分~23時00分/27m(徒歩1分) 炭火居酒屋 山崎 新橋店/11時30分~14時00分、17時30分~23時00分/300m(徒歩4分) |
| カフェ |
グッドモーニングカフェ/&グリル 虎ノ門/[営業時間][Mon-Fri] LUNCH / 11:00~15:00(l.o.) DINNER / 17:00~22:30(l.o.) CAFE&BAR / 11:00~23:00(l.o.) [Sat,Sun&Holiday] MORNING / 8:00~10:45(l.o.) LUNCH / 11:00~15:00(l.o.) DINNER / 17:00~21:30(l.o.)22:30/350m(徒歩4分) スターバックス/TSUTAYA 新橋店/[営業時間]7:00~23:00 [休業日]不定休 [備考]無線LAN:Softbank/500m(徒歩7分) |
| コインパーキング |
三井のリパーク/西新橋2丁目第5 [料金] 平日 08:00~00:00 15分/400円、平日 00:00~08:00 60分/100円 日祝 08:00~00:00 15分/400円、日祝 00:00~08:00 60分/100円 [最大料金] 【月~土】最大料金入庫当日24時まで4500円 【日祝】最大料金入庫当日24時まで1200円 [台数]17 コインパーク/西新橋2丁目第3 [料金] 【月~金】 ■通常料金 【オールタイム(24時間)】15分400円 【土】 ■通常料金 【オールタイム(24時間)】15分400円 【日祝】 ■通常料金 【オールタイム(24時間)】15分400円 [最大料金] 【月~金】 ■最大料金 【駐車後3時間以内(1回限り)】2500円 【土】 ■最大料金 【駐車後12時間以内(1回限り)】4000円 【日祝】 ■最大料金 【駐車後12時間以内(1回限り)】1000円 [台数][車: 8台] |
周辺地図
ワカサビルは港区西新橋にある地上5階建ての賃貸事務所です。最寄駅はJR線の新橋駅から徒歩5分です。1994年竣工の鉄筋コンクリート造です。設備としては、エレベーターが1基あります。セキュリティは機械警備です。空調は個別空調です。耐震設計となっている、ビジネス街として人気のある港区西新橋の賃貸オフィスです。
全フロア情報
更新日:2025年11月12日
| 階 | 面積 | 賃料 | 共益費 | 敷金 | 入居日 | お問合せ | お気に入り | |
|---|---|---|---|---|---|---|---|---|
|
1F
(A区画) |
15.45 坪 51.07 ㎡ |
278,100 円 18,000 円(坪) |
相談 |
1,668,600 円 6 ヶ月 |
2026/01 |
|
|
|
|
2F
(201区画) |
34.85 坪 115.21 ㎡ |
※現在空室情報はございません |
※現在空室情報は 確認する |
|||||
| 3F |
34.85 坪 115.21 ㎡ |
※現在空室情報はございません |
※現在空室情報は 確認する |
|||||
|
4F
(A区画) |
18 坪 59.5 ㎡ |
※現在空室情報はございません |
※現在空室情報は 確認する |
|||||
お問い合わせ
似た条件の物件はこちら
-
代市ビル
東京都港区新橋5-8-3
坪数:38.61 坪
坪単価:15,000 円(坪)
-
麻布台ヒルズ ガーデンプラザB
東京都港区虎ノ門5-9-1
坪数:27.2 坪
坪単価:50,000 円(坪)
-
丸万1号館
東京都港区西新橋1-11-1
坪数:24.44 坪
坪単価:15,000 円(坪)
-
新橋安達ビル
東京都港区新橋5-28-7
坪数:29.34 坪
坪単価:14,500 円(坪)
-
石井ビル
東京都港区新橋3-1-10
坪数:33.46 坪
坪単価:16,000 円(坪)
-
近鉄銀座中央通りビルⅢ
東京都港区新橋1-7-10
坪数:35.1 坪
坪単価:26,001 円(坪)
-
アヴァンセ虎ノ門ビル
東京都港区西新橋2-13-15
坪数:33.22 坪
坪単価:34,618 円(坪)
-
ル・グラシエルBLDG.5
東京都港区新橋5-20-1
坪数:27 坪
坪単価:10,500 円(坪)
-
汐留AZビル
東京都港区東新橋2-6-6
坪数:26.54 坪
坪単価:15,000 円(坪)
-
新橋五光ビル
東京都港区新橋5-27-3
坪数:30.86 坪
坪単価:13,000 円(坪)