芝公園向陽ビル(物件No:81688113)
芝公園向陽ビルは、港区芝公園にある貸事務所物件です。最寄り駅は都営三田線御成門駅、大江戸線、浅草線大門駅、JR浜松町駅です。1988年竣工で基準階が95.53坪の賃貸オフィスビルです。床は2WAYで、天井の高さは2450mm。トイレは男女別で、空調は個別空調です。エレベーターは4基あり、セキュリティは機械警備となっています。駐車場、貸し会議室が利用可能です。複数路線利用可能で交通アクセスの良い、港区芝公園の貸事務所です。
| 階 | 面積 | 賃料 | 共益費 | 敷金 | 入居日 | お問合せ | お気に入り |
|---|---|---|---|---|---|---|---|
| 5F |
95.53 坪 315.8 ㎡ |
1,241,890 円 13,000 円(坪) |
382,118 円 4,000 円(坪) |
9,935,120 円 8 ヶ月 |
2026/07 |
|
|
| 階 | 面積 | 賃料 | 共益費 | 敷金 | 入居日 | お問合せ | お気に入り |
|---|---|---|---|---|---|---|---|
| 5F |
95.53 坪 315.8 ㎡ |
1,241,890 円 13,000 円(坪) |
382,118 円 4,000 円(坪) |
9,935,120 円 8 ヶ月 |
2026/07 |
|
|
-
物件情報
-
設備情報
- トイレ
- 男女別
- 床
- -
- 空調
- 個別空調
- セキュリティ
- 有
- 駐車場
- 有
- 会議室
- 有
- エレベーター
- 4基
- 天井高
- 2450mm
-
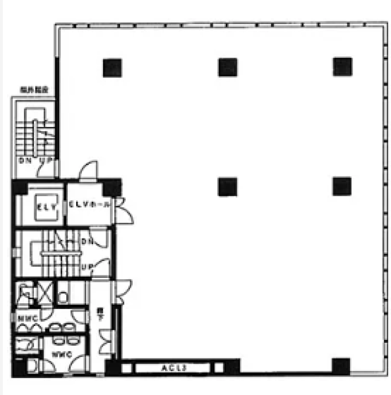
間取り図
-
近隣相場情報
芝公園2丁目(50~100坪)の相場
21277 円 (坪)
※ビルサク調べ
周辺施設情報
| コンビニ |
セブンイレブン/芝大門2丁目/280m(徒歩4分) デイリーヤマザキ/浜松町クレアタワー店/550m(徒歩7分) |
|---|---|
| 郵便局/銀行 |
郵便局/ATM ファミリーマート浜松町駅前店内出張所/[ATM]平日0:05~23:55、土曜0:05~23:55、日曜0:05~23:55/280m(徒歩4分) バンクタイム/ATM ファミリーマート 大門駅前店/[営業時間]全日/24H営業 ※毎週日曜日23:00~翌日7:00 および 毎月第二土曜日23:00~翌日8:00はご利用になれません。※店舗の営業時間により、ATM営業時間が変更となる場合があります/450m(徒歩6分) |
| 飲食店 |
パスタ屋プリモピアット/11時30分~14時45分、18時00分~21時00分/240m(徒歩3分) インドビストロ オールドデリー 芝公園店/11時00分~14時30分、17時30分~22時00分/29m(徒歩1分) |
| カフェ |
タリーズ/芝公園店/[営業時間]平日:7:30~20:00 土 :9:00~18:00 日祝:休業日 [備考]Tully's Wi-Fi、喫煙ルーム/190m(徒歩2分) 乙女珈琲店/8時00分~18時00分/700m(徒歩10分) |
| コインパーキング |
タイムズ駐車場/芝公園2丁目 [料金] [月~土]通常料金 / 0:00~0:00 12分 300円 [日・祝]通常料金 / 0:00~0:00 12分 300円 [最大料金] [月~土]8:00~18:00 最大料金3900円 18:00~8:00 最大料金1500円 [日・祝]8:00~18:00 最大料金1800円 18:00~8:00 最大料金1500円 [台数]17 パークジャパン/芝大門第5 [料金] 8:00~22:00 400円/30分 22:00~8:00 100円/60分 [台数]6台 |
周辺地図
芝公園向陽ビルは、港区芝公園にある貸事務所物件です。最寄り駅は都営三田線御成門駅、大江戸線、浅草線大門駅、JR浜松町駅です。1988年竣工で基準階が95.53坪の賃貸オフィスビルです。床は2WAYで、天井の高さは2450mm。トイレは男女別で、空調は個別空調です。エレベーターは4基あり、セキュリティは機械警備となっています。駐車場、貸し会議室が利用可能です。複数路線利用可能で交通アクセスの良い、港区芝公園の貸事務所です。
全フロア情報
更新日:2026年2月17日
| 階 | 面積 | 賃料 | 共益費 | 敷金 | 入居日 | お問合せ | お気に入り | |
|---|---|---|---|---|---|---|---|---|
| 1F |
45.7 坪 151.08 ㎡ |
※現在空室情報はございません |
※現在空室情報は 確認する |
|||||
| 2F |
95.53 坪 315.8 ㎡ |
※現在空室情報はございません |
※現在空室情報は 確認する |
|||||
| 3F |
95.53 坪 315.8 ㎡ |
※現在空室情報はございません |
※現在空室情報は 確認する |
|||||
| 4F |
95.53 坪 315.8 ㎡ |
※現在空室情報はございません |
※現在空室情報は 確認する |
|||||
| 5F |
95.53 坪 315.8 ㎡ |
1,241,890 円 13,000 円(坪) |
382,118 円 4,000 円(坪) |
9,935,120 円 8 ヶ月 |
2026/07 |
|
|
|
お問い合わせ
似た条件の物件はこちら
-
+SHIFT SHIBADAIMON
東京都港区芝大門2-1-16
坪数:77.89 坪
坪単価:30,000 円(坪)
-
第一ビル
東京都港区浜松町1-7-3
坪数:80.13 坪
坪単価:12,000 円(坪)
-
THE PORTAL MITA
東京都港区三田3-2-8
坪数:104.69 坪
坪単価:30,000 円(坪)
-
グランファースト芝大門
東京都港区芝大門1-3-4
坪数:110.55 坪
坪単価:30,000 円(坪)
-
富士ビル
東京都港区芝大門2-11-1
坪数:92.5 坪
坪単価:11,750 円(坪)
-
機械振興会館
東京都港区芝公園3-5-8
坪数:112.03 坪
坪単価:15,000 円(坪)
-
大東芝浦ビル
東京都港区海岸3-7-19
坪数:113 坪
坪単価:9,500 円(坪)
-
+SHIFT MITA
東京都港区芝5-3-2
坪数:99.97 坪
坪単価:29,000 円(坪)
-
三田三好ビル
東京都港区三田3-9-7
坪数:87.31 坪
坪単価:17,000 円(坪)