橋本ビル(物件No:81680155)
橋本ビルは港区南青山にある地上8階建ての賃貸事務所です。最寄駅は都営大江戸線の青山一丁目駅から徒歩3分、東京メトロ銀座線の青山一丁目駅から徒歩3分、東京メトロ千代田線の乃木坂駅から徒歩6分、東京メトロ銀座線の外苑前駅から徒歩9分です。1984年9月竣工の鉄骨鉄筋コンクリート造です。設備としては、エレベーターが1基あります。セキュリティは機械警備です。トイレは男女別です。空調は個別空調です。耐震設計となっている、複数路線利用可能なアクセスの良い港区南青山の賃貸オフィスです。
-
物件情報
-
設備情報
- トイレ
- 室外男女別
- 床
- -
- 空調
- 個別空調
- セキュリティ
- 有
- 駐車場
- -
- 会議室
- -
- エレベーター
- 1基
- 天井高
- -
-
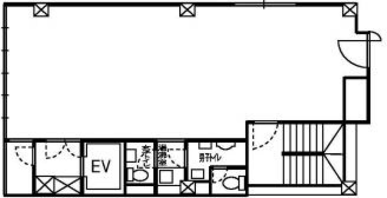
間取り図
-
近隣相場情報
南青山1丁目(20坪以下)の相場
20422 円 (坪)
※ビルサク調べ
周辺施設情報
| コンビニ |
まいばすけっと/青山一丁目店/210m(徒歩3分) セブンイレブン/青山1丁目駅前/350m(徒歩5分) |
|---|---|
| 郵便局/銀行 |
郵便局/ATM ファミマ青山ビル店内出張所/[駐車場]なし [取扱]ATM/カードATM/500m(徒歩7分) イーネット/ポプラ青山2丁目/[営業時間]0:00~24:00/400m(徒歩6分) |
| 飲食店 |
ラパウザ 青山一丁目店/11時00分~23時00分/350m(徒歩5分) 鮨の四文屋青山/11時30分~14時00分、17時00分~21時30分/230m(徒歩3分) |
| カフェ |
スターバックス/青山ビルヂング店/[営業時間]月~土:7:00~21:00/日祝:8:00~20:00 [休業日]不定休 [備考]無線LAN:STARBUCKS/docomo/Softbank/au/Wi2 300/500m(徒歩7分) エクセルシオール/カフェ 赤坂パークビル店/[営業時間]平日:6:45~19:30 土曜日:- 日 祝:- [休業日]日曜、祝日、土曜 [備考]総席数:70 禁煙席:38 喫煙席:32/800m(徒歩11分) |
| コインパーキング |
三井のリパーク/南青山1丁目 [料金] 全日 08:00~22:00 12分/500円 全日 22:00~08:00 60分/100円 [台数]3 リファレンス/青山パーク [料金] 20分200円 [最大料金] (月~土) 7:00~19:00(最大2400円) 19:00~7:00(最大500円) (日・祝) 7:00~19:00(最大2000円) 19:00~7:00(最大500円) [台数]13台 |
周辺地図
橋本ビルは港区南青山にある地上8階建ての賃貸事務所です。最寄駅は都営大江戸線の青山一丁目駅から徒歩3分、東京メトロ銀座線の青山一丁目駅から徒歩3分、東京メトロ千代田線の乃木坂駅から徒歩6分、東京メトロ銀座線の外苑前駅から徒歩9分です。1984年9月竣工の鉄骨鉄筋コンクリート造です。設備としては、エレベーターが1基あります。セキュリティは機械警備です。トイレは男女別です。空調は個別空調です。耐震設計となっている、複数路線利用可能なアクセスの良い港区南青山の賃貸オフィスです。
全フロア情報
更新日:2026年3月6日
| 階 | 面積 | 賃料 | 共益費 | 敷金 | 入居日 | お問合せ | お気に入り | |
|---|---|---|---|---|---|---|---|---|
| 2F |
32.22 坪 106.51 ㎡ |
※現在空室情報はございません |
※現在空室情報は 確認する |
|||||
| 5F |
19.06 坪 63.01 ㎡ |
※現在空室情報はございません |
※現在空室情報は 確認する |
|||||
お問い合わせ
似た条件の物件はこちら
-
メゾン青山
東京都港区北青山2-7-26
坪数:18.75 坪
坪単価:20,267 円(坪)
-
たつむら青山マンション(青南吉川興産ビル)
東京都港区南青山5-4-35
坪数:21.29 坪
坪単価:21,982 円(坪)
-
KSビル
東京都港区南青山6-2-9
坪数:20.61 坪
坪単価:23,011 円(坪)
-
青山アレー
東京都港区南青山6-4-6
坪数:16.2 坪
坪単価:26,543 円(坪)
-
セントラル第二青山
東京都港区南青山4-1-1
坪数:20.09 坪
坪単価:15,630 円(坪)
-
南青山ユニハイツ
東京都港区南青山6-12-3
坪数:18.31 坪
坪単価:18,569 円(坪)
-
ティアック青山
東京都港区北青山3-10-21
坪数:16.52 坪
坪単価:22,397 円(坪)
-
リーラ乃木坂
東京都港区南青山1-15-18
坪数:17.2 坪
坪単価:18,000 円(坪)
-
南青山セピアコート
東京都港区南青山6-8-3
坪数:18.09 坪
坪単価:21,006 円(坪)
-
シグマ南青山ビル
東京都港区南青山2-11-14
坪数:14.16 坪
坪単価:40,000 円(坪)