オリックス芝2丁目ビル(物件No:81589173)
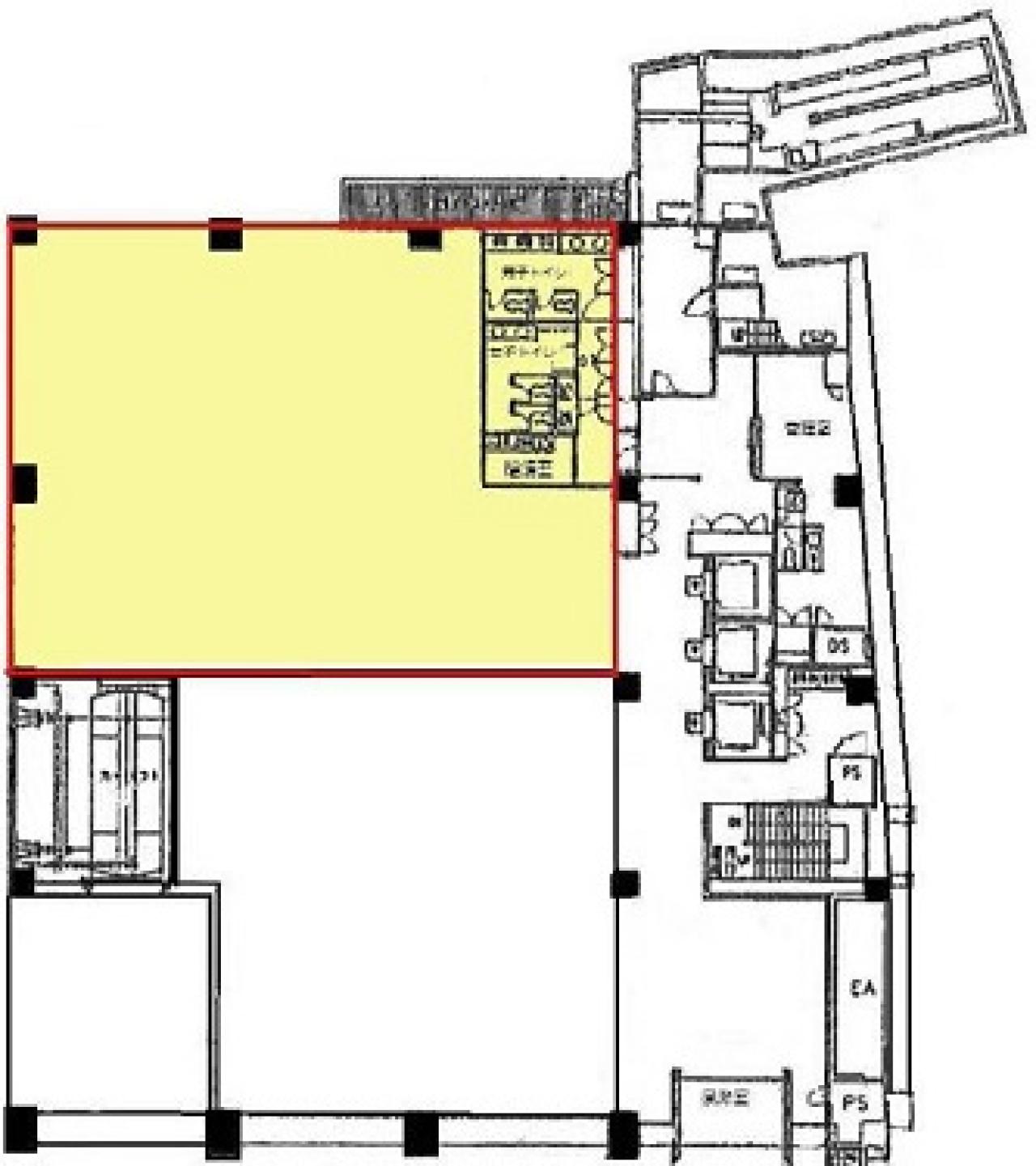
オリックス芝2丁目ビルは港区芝にある地下1階、地上8階建ての賃貸事務所です。最寄駅は都営浅草線の三田駅から徒歩7分、都営三田線の芝公園駅から徒歩6分です。2002年竣工の基準階面積が260坪の鉄骨鉄筋コンクリート造です。設備としては、エレベーターが3基、駐車場もあります。トイレは男女別です。床仕様はフリーアクセスです。耐震設計となっている、複数駅利用可能なアクセスの良い港区芝の賃貸オフィスです。
-
物件情報
-
設備情報
- トイレ
- 室外男女別
- 床
- フリーアクセス
- 空調
- -
- セキュリティ
- 有
- 駐車場
- 有
- 会議室
- -
- エレベーター
- 3基
- 天井高
- -
-
間取り図
-
近隣相場情報
芝2丁目(100坪以上)の相場
19333 円 (坪)
※ビルサク調べ
周辺施設情報
| コンビニ |
ファミリーマート/第一京浜芝二丁目店/130m(徒歩2分) まいばすけっと/三田駅東店/270m(徒歩3分) |
|---|---|
| 郵便局/銀行 |
イーネット/ファミリーマート第一京浜芝二丁目/[営業時間]0:00-24:00/140m(徒歩2分) 郵便局/芝一/平日 9:00-17:00 土曜 - 日曜・祝日 - [ATM]平日 9:00-18:00 土曜 9:00-12:30 日曜・祝日 -/270m(徒歩3分) |
| 飲食店 |
龍祥軒/11時00分~15時00分、17時00分~23時00分/150m(徒歩2分) ピザーラ 芝公園店/11時00分~23時00分/350m(徒歩4分) |
| カフェ |
ドトール/シーバンス ア・モール店/[営業時間]平 日:07:00 - 19:00 土曜日:- 日 祝:- [休業日]日曜、祝日、土曜 [備考]総席数:53 禁煙席:34 喫煙席:19/500m(徒歩6分) CABOT CAF?/11時30分~23時00分/110m(徒歩1分) |
| コインパーキング |
コインパーク/芝2丁目第4 [料金] 【月~土】 ■通常料金 【00:00~24:00】20分400円 【日祝】 ■通常料金 【00:00~24:00】20分400円 [最大料金] 【月~土】 ■最大料金 【20:00~8:00】500円 【日祝】 ■最大料金 【8:00~20:00】2800円 【20:00~8:00】500円 [台数][車: 1台][バイク: 0台][自転車: 0台] 三井のリパーク/芝2丁目第3 [料金] 平日 08:00~20:00 20分/400円、平日 20:00~08:00 60分/100円 日祝 08:00~20:00 20分/400円、日祝 20:00~08:00 60分/100円 [最大料金] 【月~土】最大料金入庫当日24時まで3500円 【日祝】最大料金入庫当日24時まで2000円 [台数]10 |
周辺地図
オリックス芝2丁目ビルは港区芝にある地下1階、地上8階建ての賃貸事務所です。最寄駅は都営浅草線の三田駅から徒歩7分、都営三田線の芝公園駅から徒歩6分です。2002年竣工の基準階面積が260坪の鉄骨鉄筋コンクリート造です。設備としては、エレベーターが3基、駐車場もあります。トイレは男女別です。床仕様はフリーアクセスです。耐震設計となっている、複数駅利用可能なアクセスの良い港区芝の賃貸オフィスです。
全フロア情報
更新日:2018年5月18日
| 階 | 面積 | 賃料 | 共益費 | 敷金 | 入居日 | お問合せ | お気に入り | |
|---|---|---|---|---|---|---|---|---|
| 1F |
111.25 坪 367.77 ㎡ |
※現在空室情報はございません |
※現在空室情報は 確認する |
|||||
| 2F |
262.04 坪 866.25 ㎡ |
※現在空室情報はございません |
※現在空室情報は 確認する |
|||||
| 3F |
262.02 坪 866.18 ㎡ |
※現在空室情報はございません |
※現在空室情報は 確認する |
|||||
| 4F |
263.91 坪 872.43 ㎡ |
※現在空室情報はございません |
※現在空室情報は 確認する |
|||||
| 5F |
263.91 坪 872.43 ㎡ |
※現在空室情報はございません |
※現在空室情報は 確認する |
|||||
| 6F |
263.91 坪 872.43 ㎡ |
※現在空室情報はございません |
※現在空室情報は 確認する |
|||||
| 7F |
263.91 坪 872.43 ㎡ |
※現在空室情報はございません |
※現在空室情報は 確認する |
|||||
| 8F |
263.91 坪 872.43 ㎡ |
※現在空室情報はございません |
※現在空室情報は 確認する |
|||||
お問い合わせ
似た条件の物件はこちら
-
芝浦スクエア
東京都港区芝浦4-9-25
坪数:138.31 坪
坪単価:15,000 円(坪)
-
THE PORTAL MITA
東京都港区三田3-2-8
坪数:104.69 坪
坪単価:30,000 円(坪)
-
グランファースト芝大門
東京都港区芝大門1-3-4
坪数:110.55 坪
坪単価:30,000 円(坪)
-
建築会館
東京都港区芝5-26-20
坪数:83.83 坪
坪単価:17,500 円(坪)
-
機械振興会館
東京都港区芝公園3-5-8
坪数:112.03 坪
坪単価:15,000 円(坪)
-
大東芝浦ビル
東京都港区海岸3-7-19
坪数:113 坪
坪単価:9,500 円(坪)
-
+SHIFT MITA
東京都港区芝5-3-2
坪数:99.97 坪
坪単価:29,000 円(坪)
-
三田三好ビル
東京都港区三田3-9-7
坪数:87.31 坪
坪単価:17,000 円(坪)
-
五色橋ビル
東京都港区海岸3-5-13
坪数:98.68 坪
坪単価:12,000 円(坪)