シンプル青山(物件No:81587155)
シンプル青山は港区南青山にある地下1階、地上3階建ての賃貸事務所です。最寄駅は東京メトロ銀座線の外苑前駅から徒歩5分、東京メトロ銀座線の表参道駅から徒歩8分、東京メトロ半蔵門線の表参道駅から徒歩8分、東京メトロ千代田線の表参道駅から徒歩8分です。1987年3月竣工の基準階面積が109.08坪の鉄筋コンクリート造です。設備としては、エレベーターが1基、駐車場もあります。耐震設計となっている、複数路線利用可能なアクセスの良い港区南青山の賃貸オフィスです。
-
物件情報
-
設備情報
- トイレ
- -
- 床
- -
- 空調
- -
- セキュリティ
- -
- 駐車場
- 有
- 会議室
- -
- エレベーター
- 1基
- 天井高
- -
-
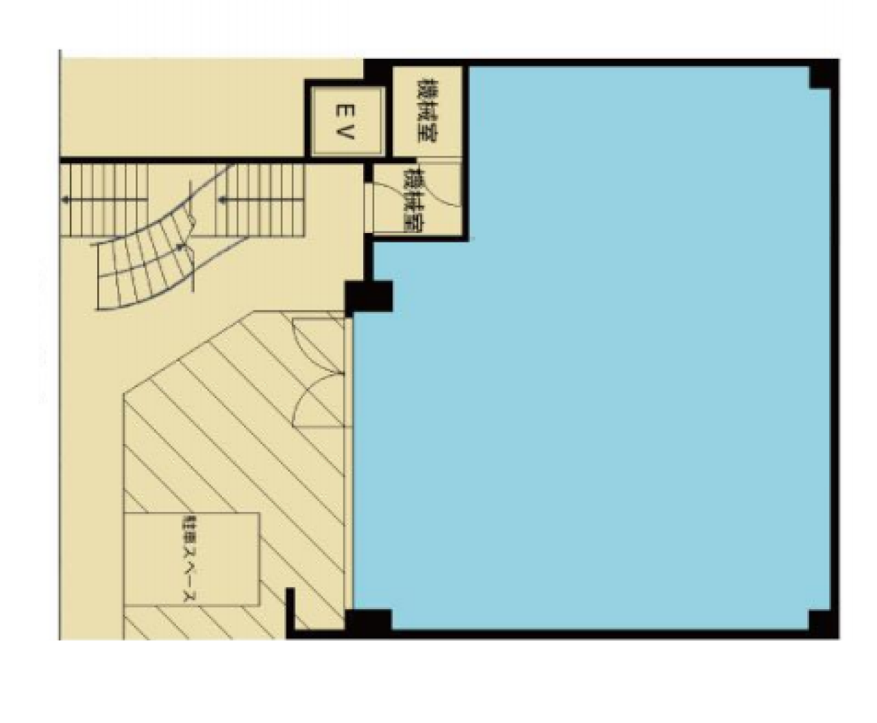
間取り図
-
近隣相場情報
南青山4丁目(30~40坪)の相場
調査中
周辺施設情報
| コンビニ |
ローソン/北青山三丁目/900m(徒歩12分) セブンイレブン/南青山5丁目/900m(徒歩12分) |
|---|---|
| 郵便局/銀行 |
みずほ銀行/ATM ヴィルマルシェ青山店出張所/[営業時間] [ATM]平日 7:00~23:00 土曜日 7:00~22:00 日曜日 8:00~23:00 祝日・振替休日 曜日に準ずる 備考 通帳繰越機 設置なし/400m(徒歩6分) きらぼし銀行/東京みらい営業部/[営業時間]店舗 平日 9:00~15:00 土曜日 - 日・祝日 - ATM 平日 8:00~21:00 土曜日 8:00~21:00 日・祝日 8:00~21:00/500m(徒歩7分) |
| 飲食店 |
ランタンポレル/12時00分~15時00分、18時00分~23時00分/12m(徒歩1分) 青山杏亭/18時00分~23時00分/120m(徒歩1分) |
| カフェ |
丸山珈琲/表参道 Single Origin Store/[営業時間]10:00~21:00 [休業日]水曜 ※定休日が祝日の場合は営業、翌日休業 [駐車場]なし/500m(徒歩7分) スターバックス/表参道 神宮前4丁目店/[営業時間]月~金:7:00~22:30/土日祝:8:00~22:00 [休業日]不定休 [備考]無線LAN:STARBUCKS/docomo/Softbank/au/Wi2 300/900m(徒歩12分) |
| コインパーキング |
タイムズ駐車場/南青山ブライトスクエア [料金] [全日]00:00-00:00 15分 300円 [最大料金] [全日]08:00-19:00 最大料金3200円 [全日]19:00-08:00 最大料金800円 [台数]21 コインパーク/南青山4丁目第6 [料金] 【全日】■通常料金【0:00~24:00】15分300円 [最大料金] 【全日】■最大料金【19:00~8:00】1200円 [台数] [車: 1台] |
周辺地図
シンプル青山は港区南青山にある地下1階、地上3階建ての賃貸事務所です。最寄駅は東京メトロ銀座線の外苑前駅から徒歩5分、東京メトロ銀座線の表参道駅から徒歩8分、東京メトロ半蔵門線の表参道駅から徒歩8分、東京メトロ千代田線の表参道駅から徒歩8分です。1987年3月竣工の基準階面積が109.08坪の鉄筋コンクリート造です。設備としては、エレベーターが1基、駐車場もあります。耐震設計となっている、複数路線利用可能なアクセスの良い港区南青山の賃貸オフィスです。
全フロア情報
更新日:2022年9月6日
| 階 | 面積 | 賃料 | 共益費 | 敷金 | 入居日 | お問合せ | お気に入り | |
|---|---|---|---|---|---|---|---|---|
| 1F |
32.24 坪 106.58 ㎡ |
※現在空室情報はございません |
※現在空室情報は 確認する |
|||||
| 2F |
31.46 坪 104.00 ㎡ |
※現在空室情報はございません |
※現在空室情報は 確認する |
|||||
お問い合わせ
似た条件の物件はこちら
-
南青山KFKビル
東京都南青山2-14-14
坪数:28.4 坪
坪単価:11,396 円(坪)
-
アトリウム青山
東京都港区南青山7-4-2
坪数:39.69 坪
坪単価:19,495 円(坪)
-
バルビゾン104
東京都港区南青山5-4-27
坪数:29.51 坪
坪単価:20,332 円(坪)
-
プレシャスビル
東京都港区南青山1-20-8
坪数:27.26 坪
坪単価:14,674 円(坪)
-
アヌシー青山
東京都港区南青山2-6-12
坪数:26.2 坪
坪単価:24,000 円(坪)
-
G-FRONT AOYAMA
東京都港区北青山2-12-15
坪数:26 坪
坪単価:29,002 円(坪)
-
神宮外苑ビル
東京都港区北青山2-7-25
坪数:32.78 坪
坪単価:23,707 円(坪)
-
ARISTO南青山Ⅱ
東京都港区南青山2-5-9
坪数:32.07 坪
坪単価:30,000 円(坪)
-
NCN南青山
東京都港区南青山7-4-18
坪数:27.47 坪
坪単価:18,202 円(坪)
-
南青山第2韮澤ビル
東京都港区南青山3-5-2
坪数:24.65 坪
坪単価:22,000 円(坪)