ニュー芝浦ビル(物件No:81583173)
ニュー芝浦ビルは、港区芝浦にある貸事務所物件です。最寄駅はJR浜松町駅、都営三田線、浅草線三田駅、ゆりかもめ日の出駅となっています。1989年竣工で、基準階が100.72坪の賃貸オフィスビルです。床はOAフロアで、天井の高さは2500mm。トイレは室外男女別で、空調は個別空調です。エレベーターは1基あり、セキュリティは機械警備となっています。駐車場が利用可能です。複数路線利用可能な港区芝浦の貸事務所です。
-
物件情報
-
設備情報
- トイレ
- 室外男女別
- 床
- フリーアクセス
- 空調
- 個別空調
- セキュリティ
- 有
- 駐車場
- 有
- 会議室
- -
- エレベーター
- 1基
- 天井高
- 2500mm
-
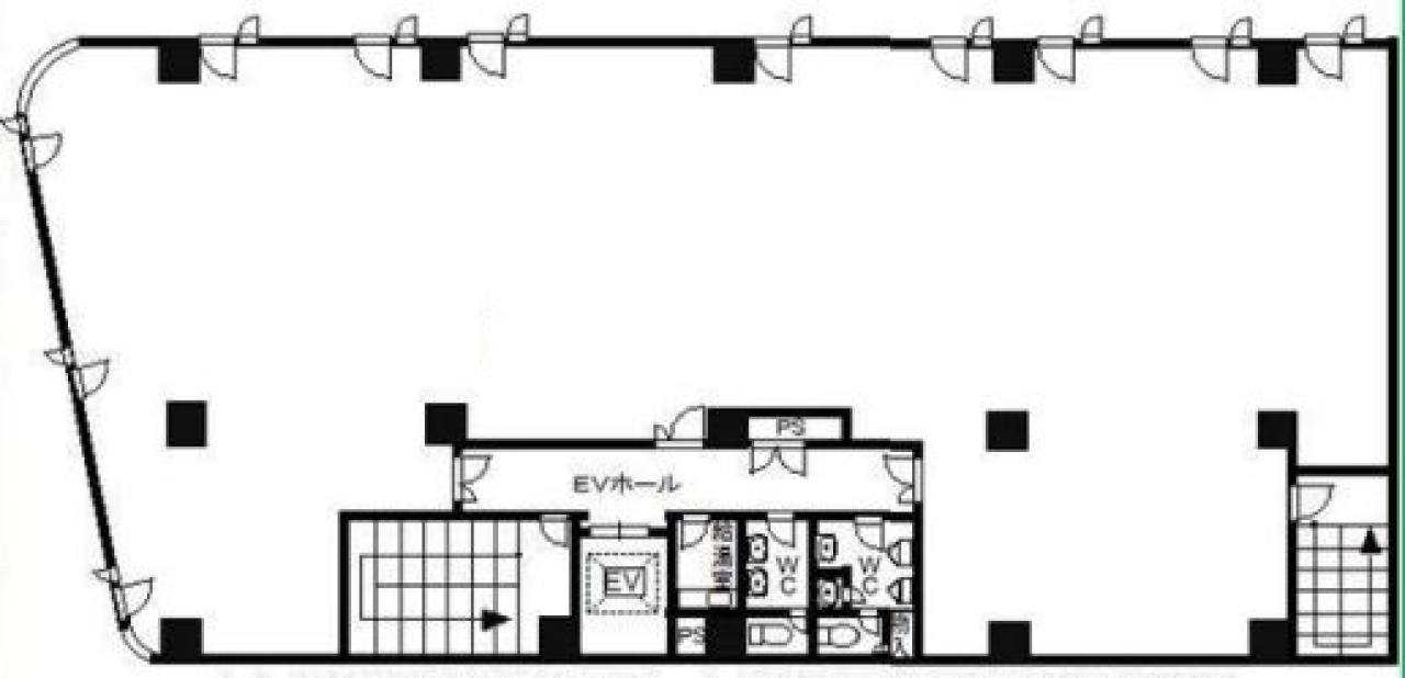
間取り図
-
近隣相場情報
芝浦1丁目(100坪以上)の相場
16187 円 (坪)
※ビルサク調べ
周辺施設情報
| コンビニ |
ファミリーマート/グローバルフロントタワー店/260m(徒歩4分) ローソン/芝浦シーバンス前/180m(徒歩2分) |
|---|---|
| 郵便局/銀行 |
ローソン銀行/芝浦シーバンス前共同出張所/[営業時間]24時間 [備考]ご利用可能な金融機関 当店のATM管理はローソン銀行です/180m(徒歩2分) みずほ銀行/ATM シーバンス出張所/[営業時間] [ATM]平日 7:00~22:00 土曜日 8:00~21:00 日曜日 8:00~21:00 祝日・振替休日 8:00~21:00 備考 *設置施設の休業日・休業時間帯は、一般のお客さまはご利用いただけません。通帳繰越機 設置なし/260m(徒歩3分) |
| 飲食店 |
ラヴェンナ/11時30分~14時00分/110m(徒歩1分) 石志水産 浜松町店/【ランチ】 11:30~13:30【ディナー】16:00~23:00(土曜日15:00~)/350m(徒歩4分) |
| カフェ |
さんぼる/9時00分~17時00分/100m(徒歩1分) たんぽぽ 本店/10:00~15:00[食事11:30~14:00]/350m(徒歩4分) |
| コインパーキング |
三井のリパーク/芝1丁目第2 [料金] [料金]平日 08:00~00:00 15分/400円、平日 00:00~08:00 60分/100円、日祝 08:00~00:00 15分/400円、日祝 00:00~08:00 60分/100円 [料金]日祝 08:00~00:00 15分/400円、日祝 00:00~08:00 60分/100円 [最大料金] [料金]最大料金 【月~土】8:00~0:00以内 最大料金4000円 [料金]【日祝】8:00~0:00以内 最大料金2500円 [台数]5 タイムズ駐車場/芝浦第6 [料金] [月~土]00:00-00:00 20分 500円 [日・祝]00:00-00:00 20分 100円 [最大料金] [月~土]08:00-19:00 最大料金4000円 19:00-08:00 最大料金500円 [日・祝]08:00-19:00 最大料金1000円 19:00-08:00 最大料金500円 [台数]9 |
周辺地図
ニュー芝浦ビルは、港区芝浦にある貸事務所物件です。最寄駅はJR浜松町駅、都営三田線、浅草線三田駅、ゆりかもめ日の出駅となっています。1989年竣工で、基準階が100.72坪の賃貸オフィスビルです。床はOAフロアで、天井の高さは2500mm。トイレは室外男女別で、空調は個別空調です。エレベーターは1基あり、セキュリティは機械警備となっています。駐車場が利用可能です。複数路線利用可能な港区芝浦の貸事務所です。
全フロア情報
更新日:2026年3月13日
| 階 | 面積 | 賃料 | 共益費 | 敷金 | 入居日 | お問合せ | お気に入り | |
|---|---|---|---|---|---|---|---|---|
| 1F |
60 坪 198.35 ㎡ |
1,080,000 円 18,000 円(坪) |
込 |
6,480,000 円 6 ヶ月 |
2026/08/01 |
|
|
|
| 3F |
100.72 坪 332.96 ㎡ |
※現在空室情報はございません |
※現在空室情報は 確認する |
|||||
お問い合わせ
似た条件の物件はこちら
-
専売ビル
東京都港区芝5-26-30
坪数:70.83 坪
坪単価:21,000 円(坪)
-
プレクスビルディング
東京都港区三田3-12-17
坪数:74.56 坪
坪単価:11,500 円(坪)
-
+SHIFT SHIBADAIMON
東京都港区芝大門2-1-16
坪数:77.89 坪
坪単価:30,000 円(坪)
-
第一ビル
東京都港区浜松町1-7-3
坪数:80.13 坪
坪単価:12,000 円(坪)
-
苔香園ビル
東京都港区芝公園1-3-8
坪数:73.88 坪
坪単価:19,750 円(坪)
-
八大浜松町ビル
東京都港区浜松町1-27-13
坪数:71.44 坪
坪単価:24,000 円(坪)
-
THE TOWERS DAIBA
東京都港区台場2-2-1
坪数:70.41 坪
坪単価:16,000 円(坪)
-
富士ビル
東京都港区芝大門2-11-1
坪数:92.5 坪
坪単価:11,750 円(坪)
-
オーキッドプレイス田町ビル
東京都港区芝4-10-5
坪数:71.4 坪
坪単価:18,000 円(坪)
-
機械振興会館
東京都港区芝公園3-5-8
坪数:112.03 坪
坪単価:15,000 円(坪)