神田錦町ミハマビル(物件No:81582097)
神田錦町ミハマビルは、千代田区神田錦町にある地上9階建ての賃貸事務所です。最寄駅は都営三田線の神保町駅から徒歩4分、東京メトロ丸ノ内線の淡路町駅から徒歩6分、東京メトロ東西線の竹橋駅から徒歩7分です。1992年1月竣工の鉄骨造です。設備としては、エレベーターが1基あり、セキュリティは機械警備です。耐震設計となっている、コンビニや飲食店などの周辺施設が充実した千代田区神田錦町の賃貸オフィスです。
-
物件情報
-
設備情報
- トイレ
- 室外男女別
- 床
- タイルカーペット
- 空調
- 個別空調
- セキュリティ
- 有
- 駐車場
- -
- 会議室
- -
- エレベーター
- 1基
- 天井高
- 2500mm
-
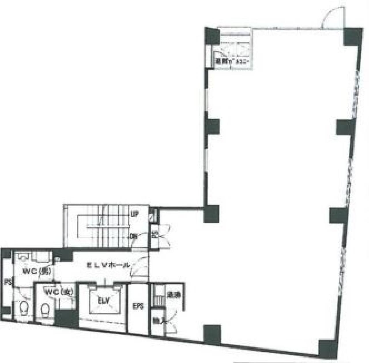
間取り図
-
近隣相場情報
神田錦町3丁目(30~40坪)の相場
14800 円 (坪)
※ビルサク調べ
周辺施設情報
| コンビニ |
ローソン/千代田神田錦町三丁目/140m(徒歩2分) ポプラ/生活彩家 神田錦町店/350m(徒歩5分) |
|---|---|
| 郵便局/銀行 |
イオン銀行/ATM ミニストップ神田錦町3丁目店出張所/[営業時間]24時間/350m(徒歩5分) みずほ銀行/ATM ミニストップ神田美土代町店出張所/[営業時間] [ATM]平日 0:00~24:00 土曜日 0:00~22:00 日曜日 8:00~24:00 祝日・振替休日 曜日に準ずる 備考 通帳繰越機 設置なし/300m(徒歩4分) |
| 飲食店 |
グランマ/20時00分~4時00分/35m(徒歩1分) 神田錦町 更科/11時00分~14時30分、17時00分~19時30分/37m(徒歩1分) |
| カフェ |
カフェメリア/10時00分~19時00分/83m(徒歩1分) Glitch Coffee and Roasters/8時00分~19時00分/84m(徒歩1分) |
| コインパーキング |
タイムズ/神田錦町第8 [料金] [全日]7:00~23:00 20分 550円 [全日]23:00~7:00 60分 110円 [最大料金] [全日]駐車後3時間 最大料金2640円 [台数]2 PEN/千代田区内神田1丁目第2 [料金] 【全日】 7:00~22:00 300円 / 12分 【全日】 22:00~7:00 100円 / 60分 [最大料金] 【24時間最大料金】 日曜日・祝日 1800円 (繰り返し可) 【当日最大料金】 月曜~土曜日(祝日除く) 3時間最大 3000円 (繰り返し可) [営業時間]24時間営業 |
周辺地図
神田錦町ミハマビルは、千代田区神田錦町にある地上9階建ての賃貸事務所です。最寄駅は都営三田線の神保町駅から徒歩4分、東京メトロ丸ノ内線の淡路町駅から徒歩6分、東京メトロ東西線の竹橋駅から徒歩7分です。1992年1月竣工の鉄骨造です。設備としては、エレベーターが1基あり、セキュリティは機械警備です。耐震設計となっている、コンビニや飲食店などの周辺施設が充実した千代田区神田錦町の賃貸オフィスです。
全フロア情報
更新日:2026年3月12日
| 階 | 面積 | 賃料 | 共益費 | 敷金 | 入居日 | お問合せ | お気に入り | |
|---|---|---|---|---|---|---|---|---|
| 2F |
39.06 坪 129.12 ㎡ |
※現在空室情報はございません |
※現在空室情報は 確認する |
|||||
| 6F |
39.06 坪 129.12 ㎡ |
※現在空室情報はございません |
※現在空室情報は 確認する |
|||||
| 7F |
39.06 坪 129.12 ㎡ |
※現在空室情報はございません |
※現在空室情報は 確認する |
|||||
| 8F |
36.11 坪 119.37 ㎡ |
※現在空室情報はございません |
※現在空室情報は 確認する |
|||||
お問い合わせ
似た条件の物件はこちら
-
大手町ゲートビルディング
東京都千代田区内神田1-31-11
坪数:34.8 坪
坪単価:70,402 円(坪)
-
日光ビル
東京都千代田区神田小川町1-1-4
坪数:34.94 坪
坪単価:15,000 円(坪)
-
M&Cビル
東京都千代田区神田小川町2-3-13
坪数:34.42 坪
坪単価:15,500 円(坪)
-
新八光ビル
東京都千代田区内神田3-22-9
坪数:44.17 坪
坪単価:20,000 円(坪)
-
神田中沢ビル
東京都千代田区外神田6-14-12
坪数:28.5 坪
坪単価:10,526 円(坪)
-
KSKビル
東京都千代田区外神田5-1-15
坪数:39.4 坪
坪単価:16,000 円(坪)
-
いちご大手町ノースビル
東京都千代田区内神田1-15-7
坪数:31.89 坪
坪単価:29,000 円(坪)
-
ism神田
東京都千代田区神田東松下町48
坪数:31.72 坪
坪単価:16,000 円(坪)
-
大栄堂ビル
東京都千代田区神田小川町3-6
坪数:30 坪
坪単価:20,000 円(坪)
-
楠本第3ビル
東京都千代田区神田錦町3-19
坪数:35 坪
坪単価:14,500 円(坪)
関連エリアから探す
- 内神田
- 神田淡路町
- 神田小川町
- 神田鍛冶町
- 神田須田町
- 神田駿河台
- 神田多町
- 神田司町
- 神田錦町
- 神田美土代町
- 岩本町
- 鍛冶町
- 神田岩本町
- 神田北乗物町
- 神田紺屋町
- 神田富山町
- 神田西福田町
- 神田東松下町
- 神田東紺屋町
- 神田美倉町
- 東神田
- 神田相生町
- 神田和泉町
- 神田佐久間町
- 神田佐久間河岸
- 神田練塀町
- 神田花岡町
- 神田松永町
- 外神田
- 神田平河町