スプリュー新橋ビル(物件No:81484134)
スプリュー新橋ビルは、港区新橋にある貸事務所物件です。最寄り駅は都営大江戸線汐留駅、各線新橋駅です。1999年竣工で基準階が31.73坪の賃貸オフィスビルです。床はOAフロアとなっています。トイレは室内男女別で、空調は個別空調です。エレベーターは1基あり、セキュリティは機械警備となっています。新橋駅周辺はたくさんの店舗が立ち並んでいます。また複数路線利用可能で交通アクセスが良く利便性の高い、港区新橋の貸事務所です。
-
物件情報
-
設備情報
- トイレ
- 室内男女別
- 床
- フリーアクセス
- 空調
- 個別空調
- セキュリティ
- 有
- 駐車場
- -
- 会議室
- -
- エレベーター
- 1基
- 天井高
- 2750mm
-
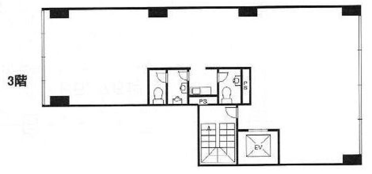
間取り図
-
近隣相場情報
新橋5丁目(30~40坪)の相場
17281 円 (坪)
※ビルサク調べ
周辺施設情報
| コンビニ |
ローソン/新橋五丁目/120m(徒歩1分) ファミリーマート/汐留シオサイト店/750m(徒歩11分) |
|---|---|
| 郵便局/銀行 |
信用組合/大東京信用組合 本店営業部/170m(徒歩3分) 郵便局/新橋四/平日 9:00-17:00 土曜 - 日曜・祝日 - [ATM]平日 9:00-18:00 土曜 9:00-12:30 日曜・祝日 -/450m(徒歩6分) |
| 飲食店 |
一㐂/11:30~14:00 17:00~22:00 / 焼きそばは飲み物 ニュー新橋ビル店/11時00分~16時00分、17時30分~21時30分/550m(徒歩7分) |
| カフェ |
スターバックス/慈恵大学病院店/[営業時間]月~土:7:00~19:00 [休業日]日・祝/500m(徒歩7分) カトレア/10時30分~21時00分/600m(徒歩8分) |
| コインパーキング |
パークジャパン/新橋第4 [料金] オールタイム 300円/15分 [最大料金] 20:00~8:00 最大料金500円 最大料金4時間3,200円 [台数]7台 三井のリパーク/新橋5丁目第6 [料金] 平日 08:00~00:00 12分/300円、平日 00:00~08:00 60分/100円 日祝 08:00~00:00 30分/300円、日祝 00:00~08:00 60分/100円 [最大料金] 0:00~8:00以内最大500円 4,5,8番車室限定 8:00~24:00以内最大3400円 [台数]8 |
周辺地図
スプリュー新橋ビルは、港区新橋にある貸事務所物件です。最寄り駅は都営大江戸線汐留駅、各線新橋駅です。1999年竣工で基準階が31.73坪の賃貸オフィスビルです。床はOAフロアとなっています。トイレは室内男女別で、空調は個別空調です。エレベーターは1基あり、セキュリティは機械警備となっています。新橋駅周辺はたくさんの店舗が立ち並んでいます。また複数路線利用可能で交通アクセスが良く利便性の高い、港区新橋の貸事務所です。
全フロア情報
更新日:2019年10月11日
| 階 | 面積 | 賃料 | 共益費 | 敷金 | 入居日 | お問合せ | お気に入り | |
|---|---|---|---|---|---|---|---|---|
| 3F |
31.73 坪 104.89 ㎡ |
※現在空室情報はございません |
※現在空室情報は 確認する |
|||||
お問い合わせ
似た条件の物件はこちら
-
代市ビル
東京都港区新橋5-8-3
坪数:38.61 坪
坪単価:15,000 円(坪)
-
日比谷パークビル
東京都港区西新橋2-23-2
坪数:21.98 坪
坪単価:18,004 円(坪)
-
麻布台ヒルズ ガーデンプラザB
東京都港区虎ノ門5-9-1
坪数:27.2 坪
坪単価:50,000 円(坪)
-
丸万1号館
東京都港区西新橋1-11-1
坪数:24.44 坪
坪単価:15,000 円(坪)
-
新橋安達ビル
東京都港区新橋5-28-7
坪数:29.34 坪
坪単価:14,500 円(坪)
-
石井ビル
東京都港区新橋3-1-10
坪数:33.46 坪
坪単価:16,000 円(坪)
-
近鉄銀座中央通りビルⅢ
東京都港区新橋1-7-10
坪数:35.1 坪
坪単価:26,001 円(坪)
-
アヴァンセ虎ノ門ビル
東京都港区西新橋2-13-15
坪数:33.22 坪
坪単価:34,618 円(坪)
-
ル・グラシエルBLDG.5
東京都港区新橋5-20-1
坪数:27 坪
坪単価:10,500 円(坪)
-
汐留AZビル
東京都港区東新橋2-6-6
坪数:26.54 坪
坪単価:15,000 円(坪)