上野THビル(物件No:81481146)
上野THビルは文京区湯島にある地上8階建ての賃貸事務所です。最寄駅はJR線の御徒町駅から徒歩4分、東京メトロ千代田線の湯島駅から徒歩2分、東京メトロ銀座線の上野広小路駅から徒歩2分、都営大江戸線の本郷三丁目駅から徒歩3分、東京メトロ日比谷線の仲御徒町駅から徒歩5分です。1986年竣工の基準階面積が171.25坪の鉄骨鉄筋コンクリート造です。設備としては、エレベーターが2基あり、駐車場もあります。トイレは男女別です。空調は個別空調です。床仕様はフリーアクセスです。天高は2450mmです。耐震設計となっている、最寄駅から近くて便利な文京区湯島の賃貸オフィスです。
| 階 | 面積 | 賃料 | 共益費 | 敷金 | 入居日 | お問合せ | お気に入り |
|---|---|---|---|---|---|---|---|
|
3F
(2区画) |
64.44 坪 213.02 ㎡ |
相談 |
相談 |
12ヶ月 |
2026/02 |
|
|
| 階 | 面積 | 賃料 | 共益費 | 敷金 | 入居日 | お問合せ | お気に入り |
|---|---|---|---|---|---|---|---|
|
3F
(2区画) |
64.44 坪 213.02 ㎡ |
相談 |
相談 |
12ヶ月 |
2026/02 |
|
|
-
物件情報
-
設備情報
- トイレ
- 男女別
- 床
- フリーアクセス
- 空調
- 個別空調
- セキュリティ
- -
- 駐車場
- 有
- 会議室
- -
- エレベーター
- 2基
- 天井高
- 2450mm
-
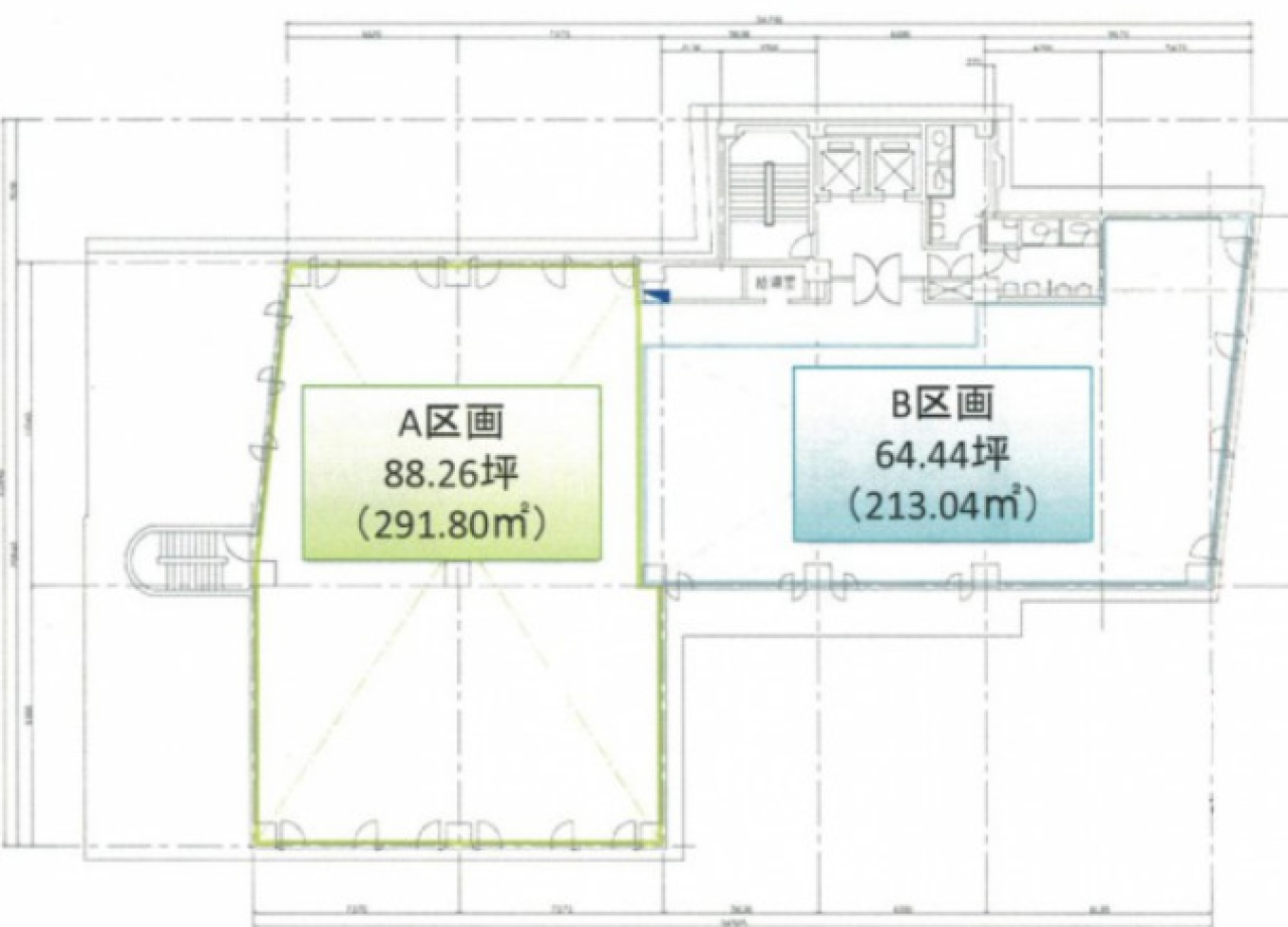
間取り図
-
近隣相場情報
湯島3丁目(50~100坪)の相場
12973 円 (坪)
※ビルサク調べ
周辺地図
上野THビルは文京区湯島にある地上8階建ての賃貸事務所です。最寄駅はJR線の御徒町駅から徒歩4分、東京メトロ千代田線の湯島駅から徒歩2分、東京メトロ銀座線の上野広小路駅から徒歩2分、都営大江戸線の本郷三丁目駅から徒歩3分、東京メトロ日比谷線の仲御徒町駅から徒歩5分です。1986年竣工の基準階面積が171.25坪の鉄骨鉄筋コンクリート造です。設備としては、エレベーターが2基あり、駐車場もあります。トイレは男女別です。空調は個別空調です。床仕様はフリーアクセスです。天高は2450mmです。耐震設計となっている、最寄駅から近くて便利な文京区湯島の賃貸オフィスです。
全フロア情報
更新日:2025年12月1日
| 階 | 面積 | 賃料 | 共益費 | 敷金 | 入居日 | お問合せ | お気に入り | |
|---|---|---|---|---|---|---|---|---|
| 2F |
171.25 坪 566.11 ㎡ |
※現在空室情報はございません |
※現在空室情報は 確認する |
|||||
| 3F |
88.26 坪 291.77 ㎡ |
※現在空室情報はございません |
※現在空室情報は 確認する |
|||||
|
3F
(2区画) |
64.44 坪 213.02 ㎡ |
相談 |
相談 |
12ヶ月 |
2026/02 |
|
|
|
| 4F |
171.25 坪 566.11 ㎡ |
※現在空室情報はございません |
※現在空室情報は 確認する |
|||||
| 5F |
171.25 坪 566.11 ㎡ |
※現在空室情報はございません |
※現在空室情報は 確認する |
|||||
| 6F |
171.25 坪 566.11 ㎡ |
※現在空室情報はございません |
※現在空室情報は 確認する |
|||||
お問い合わせ
似た条件の物件はこちら
-
三共小石川THビル
東京都文京区小石川5-36-5
坪数:59.49 坪
坪単価:12,000 円(坪)
-
御茶ノ水天神ビル
東京都文京区湯島3-2-12
坪数:49.41 坪
坪単価:12,500 円(坪)
-
ITP本郷オフィス
東京都文京区湯島2-25-7
坪数:53.51 坪
坪単価:14,000 円(坪)
-
本郷弓町ビル
東京都文京区本郷2-38-4
坪数:53.73 坪
坪単価:11,500 円(坪)
-
IS弓町ビル
東京都文京区本郷1-28-24
坪数:57.24 坪
坪単価:11,500 円(坪)
-
ソフィアお茶の水
東京都文京区湯島2-4-3
坪数:77.23 坪
坪単価:14,089 円(坪)
-
本郷天理ビル
東京都文京区本郷3-16-4
坪数:53.03 坪
坪単価:10,500 円(坪)
-
本郷BNビル
東京都文京区本郷2-27-18
坪数:73.48 坪
坪単価:24,000 円(坪)
-
全水道会館
東京都文京区本郷1-4-1
坪数:65 坪
坪単価:14,091 円(坪)
-
茗渓ビルディング
東京都文京区大塚1-5-21
坪数:50.84 坪
坪単価:20,000 円(坪)