共同新小伝馬町(物件No:81386151)
共同新小伝馬町は中央区日本橋小伝馬町にある地上8階建ての店舗貸事務所です。最寄駅は東京メトロ日比谷線の小伝馬町駅から徒歩1分、東京メトロ日比谷線の人形町駅から徒歩7分、JR総武線快速の新日本橋駅から徒歩4分、都営浅草線の人形町駅から徒歩7分、都営新宿線の馬喰横山駅から徒歩6分、東京メトロ銀座線の三越前駅から徒歩5分です。1972年8月竣工の基準階面積が46.6坪の鉄骨鉄筋コンクリート造です。設備としてはエレベーターが1基あり、機械警備もあります。トイレは室外男女別です。空調は個別空調です。天高は2380mmです。複数路線利用可能な、アクセスの良い中央区日本橋小伝馬町の店舗貸事務所です。
-
物件情報
-
設備情報
- トイレ
- 室外男女別
- 床
- -
- 空調
- 個別空調
- セキュリティ
- 有
- 駐車場
- 無
- 会議室
- -
- エレベーター
- 1基
- 天井高
- -
-
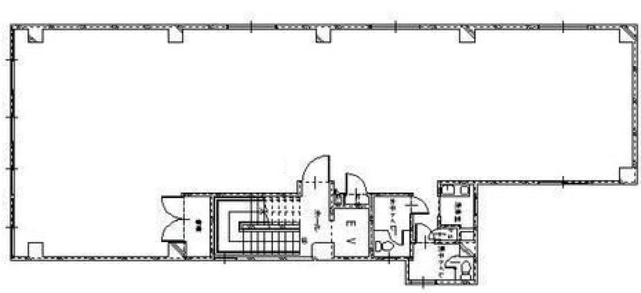
間取り図
-
近隣相場情報
日本橋小伝馬町1丁目(40~50坪)の相場
19851 円 (坪)
※ビルサク調べ
周辺施設情報
| コンビニ |
まいばすけっと/日本橋本町4丁目店/120m(徒歩2分) セブンイレブン/日本橋本町3丁目/180m(徒歩2分) |
|---|---|
| 郵便局/銀行 |
愛知銀行/東京支店/[窓口]平日 9:00~15:00/190m(徒歩2分) 筑邦銀行/東京支店/[ATM]窓口 平日 9:00~15:00 土日祝 - ATM 平日 9:00~15:00/62m(徒歩1分) |
| 飲食店 |
鮨処膳/18時00分~22時00分/12m(徒歩1分) 居酒場 肉寅 日本橋小伝馬町店(にくとら)/11時00分~15時30分 17時30分~23時00分/16m(徒歩1分) |
| カフェ |
ドトール/日本橋小舟町店/[営業時間]平日:7:30~17:30 土曜日:- 日 祝:-/300m(徒歩4分) サンマルクカフェ/小伝馬町駅前店/[営業時間]7:00~22:00/200m(徒歩3分) |
| コインパーキング |
タイムズ駐車場/日本橋堀留町1丁目 [料金] [月~土]通常料金 / 0:00~0:00 15分 330円 [日・祝]通常料金 / 0:00~0:00 15分 330円 [最大料金] [月~土]8:00~19:00 最大料金3520円 19:00~8:00 最大料金550円 [日・祝]8:00~19:00 最大料金1210円 19:00~8:00 最大料金550円 [台数]2 タイムズ駐車場/日本橋小伝馬町第2 [料金] [月~土]通常料金 / 0:00~0:00 12分 330円 [日・祝]通常料金 / 0:00~0:00 12分 330円 [最大料金] [月~土]8:00~19:00 最大料金3740円 19:00~8:00 最大料金330円 [日・祝]8:00~19:00 最大料金1100円 19:00~8:00 最大料金330円 [台数]1 |
周辺地図
共同新小伝馬町は中央区日本橋小伝馬町にある地上8階建ての店舗貸事務所です。最寄駅は東京メトロ日比谷線の小伝馬町駅から徒歩1分、東京メトロ日比谷線の人形町駅から徒歩7分、JR総武線快速の新日本橋駅から徒歩4分、都営浅草線の人形町駅から徒歩7分、都営新宿線の馬喰横山駅から徒歩6分、東京メトロ銀座線の三越前駅から徒歩5分です。1972年8月竣工の基準階面積が46.6坪の鉄骨鉄筋コンクリート造です。設備としてはエレベーターが1基あり、機械警備もあります。トイレは室外男女別です。空調は個別空調です。天高は2380mmです。複数路線利用可能な、アクセスの良い中央区日本橋小伝馬町の店舗貸事務所です。
全フロア情報
更新日:2025年11月15日
| 階 | 面積 | 賃料 | 共益費 | 敷金 | 入居日 | お問合せ | お気に入り | |
|---|---|---|---|---|---|---|---|---|
|
2F
(201区画) |
27.79 坪 91.87 ㎡ |
※現在空室情報はございません |
※現在空室情報は 確認する |
|||||
| 3F |
46.47 坪 153.62 ㎡ |
※現在空室情報はございません |
※現在空室情報は 確認する |
|||||
| 5F |
46.47 坪 153.61 ㎡ |
※現在空室情報はございません |
※現在空室情報は 確認する |
|||||
お問い合わせ
似た条件の物件はこちら
-
7山京ビル
東京都中央区日本橋箱崎町17-8
坪数:37.5 坪
坪単価:11,000 円(坪)
-
オーキッドプレイス蛎殻町ビル
東京都中央区日本橋蛎殻町1-4-1
坪数:51.15 坪
坪単価:15,000 円(坪)
-
Ikigai Bashi ビル
東京都中央区日本橋大伝馬町1-7
坪数:38.27 坪
坪単価:16,000 円(坪)
-
第1松井ビル
東京都中央区日本橋馬喰町1-8-4
坪数:36.67 坪
坪単価:8,603 円(坪)
-
Grandir 日本橋小伝馬町
東京都中央区日本橋小伝馬町18-1
坪数:44.34 坪
坪単価:24,000 円(坪)
-
R.core日本橋人形町ビル
東京都中央区日本橋富沢町7-13
坪数:55.82 坪
坪単価:23,000 円(坪)
-
アライズ第2ビル
東京都中央区日本橋箱崎町5-4
坪数:52.8 坪
坪単価:11,000 円(坪)
-
日本橋浜町ビル
東京都中央区日本橋浜町2-28-1
坪数:46 坪
坪単価:12,000 円(坪)
-
ラ・ベール日本橋
東京都中央区日本橋小網町12-5
坪数:50.43 坪
坪単価:17,000 円(坪)
-
(仮称)びいんず馬喰町駅前ビル
東京都中央区日本橋馬喰町1-11-2
坪数:42.19 坪
坪単価:18,962 円(坪)
関連エリアから探す
- 日本橋大伝馬町
- 日本橋蛎殻町
- 日本橋小網町
- 日本橋小伝馬町
- 日本橋小舟町
- 日本橋富沢町
- 日本橋人形町
- 日本橋箱崎町
- 日本橋堀留町
- 日本橋中洲
- 日本橋馬喰町
- 日本橋浜町
- 日本橋久松町
- 日本橋横山町
- 東日本橋