小野商ビル(物件No:81381122)
小野商ビルは、中央区銀座にある貸事務所物件で、最寄り駅は新橋駅です。1972年竣工の物件で、地上8階建ての賃貸オフィスビルです。空調は個別空調です。新耐震基準をクリアしているので安心な中央区銀座の貸事務所です。
| 階 | 面積 | 賃料 | 共益費 | 敷金 | 入居日 | お問合せ | お気に入り |
|---|---|---|---|---|---|---|---|
|
6F
(602区画) |
12 坪 39.66 ㎡ |
100,000 円 8,333 円(坪) |
20,000 円 1,667 円(坪) |
600,000 円 6 ヶ月 |
2026/04 |
|
|
| 階 | 面積 | 賃料 | 共益費 | 敷金 | 入居日 | お問合せ | お気に入り |
|---|---|---|---|---|---|---|---|
|
6F
(602区画) |
12 坪 39.66 ㎡ |
100,000 円 8,333 円(坪) |
20,000 円 1,667 円(坪) |
600,000 円 6 ヶ月 |
2026/04 |
|
|
-
物件情報
-
設備情報
- トイレ
- 室外男女共用
- 床
- タイルカーペット
- 空調
- -
- セキュリティ
- 有
- 駐車場
- 無
- 会議室
- -
- エレベーター
- 1基
- 天井高
- -
-
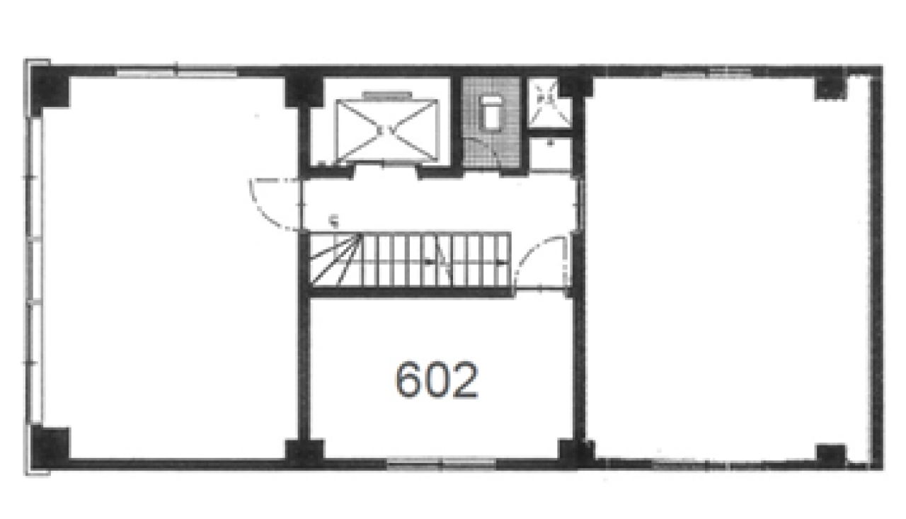
間取り図
-
近隣相場情報
銀座8丁目(20坪以下)の相場
23030 円 (坪)
※ビルサク調べ
周辺地図
小野商ビルは、中央区銀座にある貸事務所物件で、最寄り駅は新橋駅です。1972年竣工の物件で、地上8階建ての賃貸オフィスビルです。空調は個別空調です。新耐震基準をクリアしているので安心な中央区銀座の貸事務所です。
全フロア情報
更新日:2026年3月13日
| 階 | 面積 | 賃料 | 共益費 | 敷金 | 入居日 | お問合せ | お気に入り | |
|---|---|---|---|---|---|---|---|---|
|
2F
(201区画) |
12 坪 39.67 ㎡ |
※現在空室情報はございません |
※現在空室情報は 確認する |
|||||
|
2F
(203区画) |
9 坪 29.75 ㎡ |
※現在空室情報はございません |
※現在空室情報は 確認する |
|||||
|
3F
(303区画) |
9 坪 29.75 ㎡ |
※現在空室情報はございません |
※現在空室情報は 確認する |
|||||
|
4F
(401区画) |
8 坪 26.45 ㎡ |
※現在空室情報はございません |
※現在空室情報は 確認する |
|||||
|
4F
(402区画) |
9 坪 29.75 ㎡ |
※現在空室情報はございません |
※現在空室情報は 確認する |
|||||
|
4F
(403区画) |
9 坪 29.75 ㎡ |
※現在空室情報はございません |
※現在空室情報は 確認する |
|||||
|
6F
(602区画) |
12 坪 39.66 ㎡ |
100,000 円 8,333 円(坪) |
20,000 円 1,667 円(坪) |
600,000 円 6 ヶ月 |
2026/04 |
|
|
|
|
6F
(603区画) |
9 坪 29.75 ㎡ |
※現在空室情報はございません |
※現在空室情報は 確認する |
|||||
|
7F
(703区画) |
9 坪 29.75 ㎡ |
150,000 円 16,667 円(坪) |
30,000 円 3,333 円(坪) |
900,000 円 6 ヶ月 |
即日 |
|
|
|
|
8F
(801区画) |
2 坪 6.61 ㎡ |
※現在空室情報はございません |
※現在空室情報は 確認する |
|||||
お問い合わせ
似た条件の物件はこちら
-
片桐ビルⅤ
東京都中央区銀座3-14-8
坪数:13.63 坪
坪単価:1,834 円(坪)
-
楠本第17ビル
東京都中央区銀座1-14-12
坪数:14.45 坪
坪単価:25,000 円(坪)
-
日本聖書協会ビル(聖書館ビル)
東京都中央区銀座4-5-1
坪数:13.00 坪
坪単価:25,500 円(坪)
-
銀座藤ビル
東京都中央区銀座2-12-10
坪数:15.8 坪
坪単価:21,000 円(坪)
-
玉上ビル
東京都中央区銀座2-13-17
坪数:13.97 坪
坪単価:11,500 円(坪)
-
銀座ミノリビル
東京都中央区銀座8-9-15
坪数:13 坪
坪単価:26,000 円(坪)
-
7DBldg
東京都中央区銀座1-28-14
坪数:16 坪
坪単価:20,000 円(坪)
-
南海東京ビル
東京都中央区銀座5-15-1
坪数:15.91 坪
坪単価:25,000 円(坪)
-
第7セントラルビル
東京都中央区銀座8-8-1
坪数:12.95 坪
坪単価:27,000 円(坪)
-
青柳ビル
東京都中央区銀座8-8-15
坪数:11.98 坪
坪単価:17,696 円(坪)