MT道玄坂(物件No:81381037)
MT道玄坂は渋谷区道玄坂にある地下1階、地上9階建ての賃貸事務所です。最寄駅は京王井の頭線の神泉駅から徒歩3分、東京メトロ半蔵門線の渋谷駅から徒歩6分、東京メトロ銀座線の渋谷駅から徒歩6分、JR線の渋谷駅から徒歩6分です。1986年10月竣工の基準階面積が29.06坪の鉄骨鉄筋コンクリート造です。設備としては、エレベーターが1基あります。空調は個別空調です。床仕様はタイルカーペットです。耐震設計となっている、複数駅利用可能なアクセスの良い渋谷区道玄坂の賃貸オフィスです。
-
物件情報
-
設備情報
- トイレ
- 室内男女共用
- 床
- タイルカーペット
- 空調
- 個別空調
- セキュリティ
- -
- 駐車場
- 無
- 会議室
- -
- エレベーター
- 1基
- 天井高
- -
-
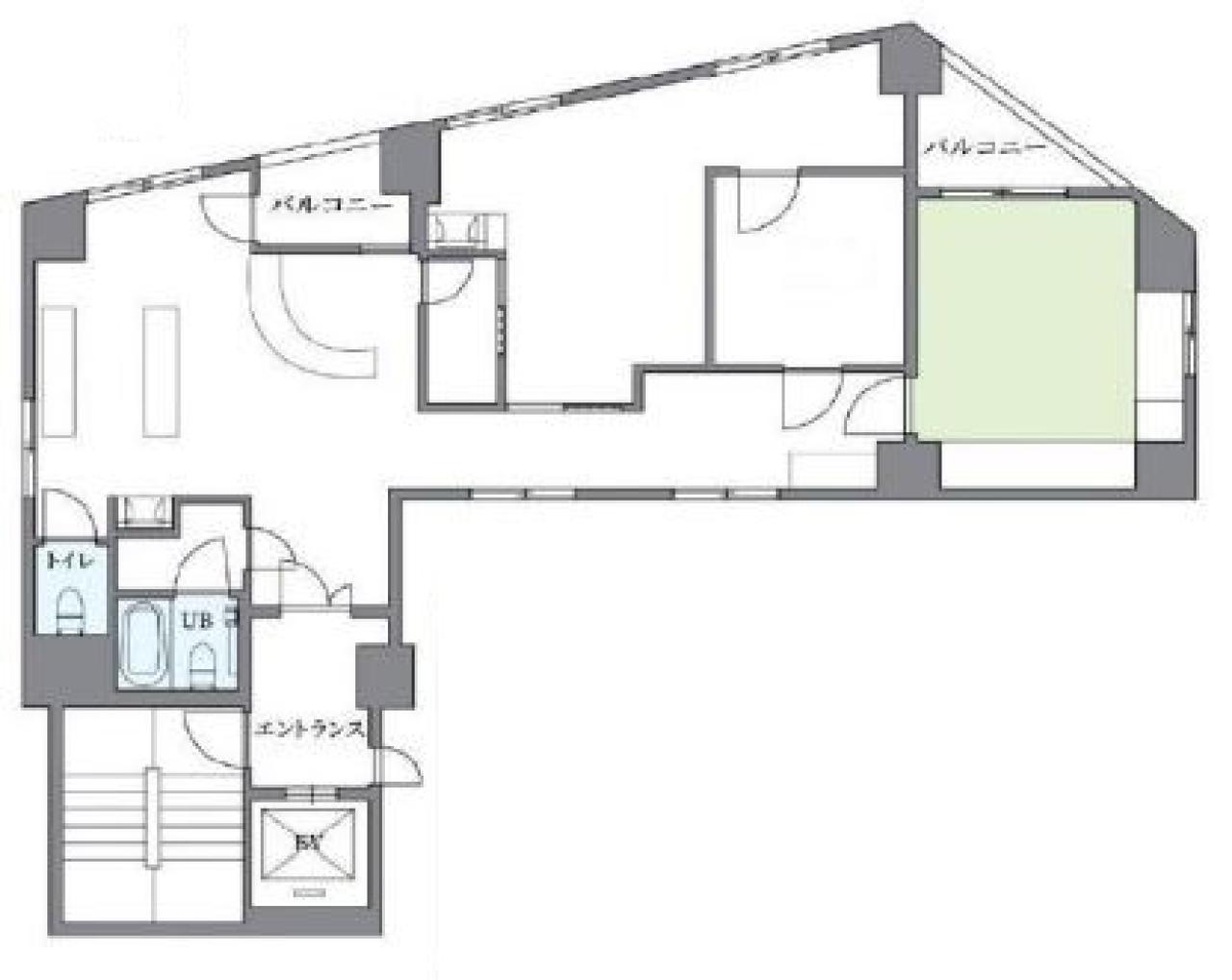
間取り図
-
近隣相場情報
道玄坂1丁目(20~30坪)の相場
36911 円 (坪)
※ビルサク調べ
周辺施設情報
| コンビニ |
セブンイレブン/渋谷道玄坂1丁目/300m(徒歩4分) ファミリーマート/渋谷円山町店/250m(徒歩3分) |
|---|---|
| 郵便局/銀行 |
みずほ銀行/ATM ミニストップ道玄坂2丁目店出張所/[営業時間]平日 0:00~24:00 土曜日 0:00~22:00 日曜日 8:00~24:00 祝日・振替休日 曜日に準ずる/400m(徒歩5分) セブン銀行/渋谷駅西店/[営業時間]24時間営業 [備考]2 台/400m(徒歩5分) |
| 飲食店 |
ジャズも楽しめる洋食レストラン コントレイル渋谷/11時30分~15時00分、18時00分~23時00分/140m(徒歩2分) トルコ料理レストラン アンカラ 道玄坂店/17時00分~0時00分/190m(徒歩2分) |
| カフェ |
珈琲店トップ 渋谷駅前店/9時00分~20時00分/600m(徒歩7分) コーヒー専門店 カフェ ?キャリオカ/9時00分~17時00分/150m(徒歩2分) |
| コインパーキング |
三井のリパーク/道玄坂1丁目第3 [料金] 平日 00:00~24:00 12分/400円 日祝 00:00~24:00 12分/200円 [台数]5 エコロパーク/新大宗ビル道玄坂駐車場3F [料金] 全日 終日 15分300円 [最大料金] 全日 12時間 最大2800円 [台数]15 |
周辺地図
MT道玄坂は渋谷区道玄坂にある地下1階、地上9階建ての賃貸事務所です。最寄駅は京王井の頭線の神泉駅から徒歩3分、東京メトロ半蔵門線の渋谷駅から徒歩6分、東京メトロ銀座線の渋谷駅から徒歩6分、JR線の渋谷駅から徒歩6分です。1986年10月竣工の基準階面積が29.06坪の鉄骨鉄筋コンクリート造です。設備としては、エレベーターが1基あります。空調は個別空調です。床仕様はタイルカーペットです。耐震設計となっている、複数駅利用可能なアクセスの良い渋谷区道玄坂の賃貸オフィスです。
全フロア情報
更新日:2025年12月9日
| 階 | 面積 | 賃料 | 共益費 | 敷金 | 入居日 | お問合せ | お気に入り | |
|---|---|---|---|---|---|---|---|---|
| 4F |
28.45 坪 94.05 ㎡ |
※現在空室情報はございません |
※現在空室情報は 確認する |
|||||
| 6F |
26.37 坪 87.17 ㎡ |
※現在空室情報はございません |
※現在空室情報は 確認する |
|||||
| 8F |
26.37 坪 87.17 ㎡ |
※現在空室情報はございません |
※現在空室情報は 確認する |
|||||
お問い合わせ
似た条件の物件はこちら
-
ビラ・ビアンカ
東京都渋谷区神宮前2-33-12
坪数:24.36 坪
坪単価:15,805 円(坪)
-
第一暁ビルディング
東京都渋谷区道玄坂1-19-9
坪数:24.14 坪
坪単価:20,713 円(坪)
-
三貴ビル
東京都渋谷区渋谷2-12-12
坪数:18.7 坪
坪単価:22,000 円(坪)
-
ベリータ
東京都渋谷区東3-12-13
坪数:31.67 坪
坪単価:20,500 円(坪)
-
倉島渋谷ビル
東京都渋谷区渋谷2-3-8
坪数:20.53 坪
坪単価:18,000 円(坪)
-
若草ビルB館
東京都渋谷区渋谷1-1-16
坪数:20.35 坪
坪単価:18,000 円(坪)
-
アクシーズ7号館ビル
東京都渋谷区渋谷3-17-4
坪数:18 坪
坪単価:20,000 円(坪)
-
越一ビル
東京都渋谷区神宮前6-19-16
坪数:19 坪
坪単価:22,000 円(坪)
-
ナルセビルディング
東京都渋谷区渋谷3-18-7
坪数:18.5 坪
坪単価:27,500 円(坪)
-
宮益坂ビルディング
東京都渋谷区渋谷2-19-15
坪数:18.11 坪
坪単価:31,309 円(坪)