いろいろ聞いてみる

日本橋茅場町の賃貸オフィス

日本ビルディング本館(物件No:81284182)

日本ビルディング本館は、中央区日本橋茅場町にある貸事務所物件です。最寄駅は、東京メトロ東西線、日比谷線茅場町駅、東京メトロ東西線、銀座線、都営浅草線日本橋駅、東京メトロ半蔵門線水天宮前駅です。1958年竣工の賃貸オフィスビルです。床はOAフロアで、天井の高さは2550mm。トイレは室外男女別で、空調は個別空調です。エレベーターは1基あり、セキュリティは機械警備となっています。最寄駅から徒歩2分。複数路線利用可能で交通アクセスの良い、中央区日本橋茅場町の貸事務所です。

面積 賃料 共益費 敷金 入居日 お問合せ お気に入り
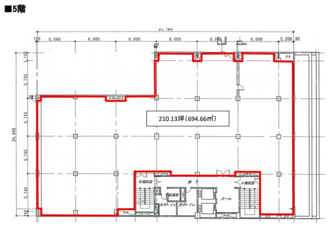
5F

210.13 坪

694.64 ㎡

※現在空室情報はございません

※現在空室情報は
ございません

最新情報を
確認する
  • 日本ビルディング本館
  • 日本ビルディング本館
  • 日本ビルディング本館
  • 日本ビルディング本館
面積 賃料 共益費 敷金 入居日 お問合せ お気に入り
5F

210.13 坪

694.64 ㎡

※現在空室情報はございません

※現在空室情報は
ございません

最新情報を
確認する

周辺施設情報

コンビニ

セブンイレブン/茅場町駅前/270m(徒歩4分)

ファミリーマート/京王プレッソイン茅場町店/85m(徒歩1分)

郵便局/銀行

イーネット/ファミリーマート京王プレッソイン茅場町/[営業時間]0:00~24:00/85m(徒歩1分)

りそな銀行/ATM 茅場町駅前出張所/[営業時間]全日/7:00~24:00 ※毎月第二土曜日23:00~翌日8:00はご利用になれません/170m(徒歩2分)

飲食店

刀削麺酒家 茅場町店/11時00分~14時00分 17時30分~23時00分/100m(徒歩1分)

ドラム缶 茅場町店/17時00分~23時00分/160m(徒歩2分)

カフェ

プロント/フレッサイン日本橋店/[営業時間]平日:カフェ 6:30~17:30 バー 17:30~22:00 土曜:カフェ 6:30~10:00 日曜:カフェ 6:30~10:00 祝日:カフェ 6:30~10:00 /120m(徒歩1分)

シアトルズベスト/ヴァション日本橋兜町店/[営業時間]月~金 7:30~22:00(L.O. 21:30)土・日・祝 貸切のみ営業 /140m(徒歩2分)

コインパーキング

タイムズ駐車場/TNS日本橋茅場町

[料金]

[月~土]通常料金 / 8:00~20:00 20分 400円 20:00~8:00 60分 100円

[日・祝]通常料金 / 8:00~20:00 30分 300円 20:00~8:00 60分 100円

[最大料金]

[月~土]当日1日最大料金3800円(24時迄)

[日・祝]当日1日最大料金1500円(24時迄)

[台数]48

ユアー・パーキング/日本橋茅場町第2

[料金]

[料金]【全日】 08時~20時 20分/400円 20時~08時 60分/100円

[最大料金]

【最大料金】 平 日:入庫後6時間最大3,000円(1回限り)

土日祝:入庫後6時間最大1,300円(1回限り)

[台数]2

周辺地図

日本ビルディング本館は、中央区日本橋茅場町にある貸事務所物件です。最寄駅は、東京メトロ東西線、日比谷線茅場町駅、東京メトロ東西線、銀座線、都営浅草線日本橋駅、東京メトロ半蔵門線水天宮前駅です。1958年竣工の賃貸オフィスビルです。床はOAフロアで、天井の高さは2550mm。トイレは室外男女別で、空調は個別空調です。エレベーターは1基あり、セキュリティは機械警備となっています。最寄駅から徒歩2分。複数路線利用可能で交通アクセスの良い、中央区日本橋茅場町の貸事務所です。

全フロア情報

更新日:2026年3月10日

面積 賃料 共益費 敷金 入居日 お問合せ お気に入り
1F

70.51 坪

233.09 ㎡

相談

相談

相談

即日 お問い合わせ お気に入り
5F

210.13 坪

694.64 ㎡

※現在空室情報はございません

※現在空室情報は
ございません

最新情報を
確認する

お問い合わせ

必須
必須
必須
必須
必須

似た条件の物件はこちら

関連エリアから探す

駅から探す

お問い合わせ

物件に関してのお問い合わせ

「失敗しないオフィス移転サポート」物件探しから移転までスムーズで担当者様がとにかく楽になるサービスです。

050-7587-0049平日 9:00~18:00

メールでお問い合わせ

フリーワード検索