箱崎升喜ビル(物件No:81283173)
箱崎升喜ビルは中央区日本橋箱崎町にある地上6階建ての賃貸事務所です。最寄駅は東京メトロ半蔵門線の水天宮前駅から徒歩3分、東京メトロ東西線の茅場町駅から徒歩5分、東京メトロ日比谷線の茅場町駅から徒歩5分です。1992年11月竣工の基準階面積が88.07坪の鉄骨鉄筋コンクリート造です。設備としてはエレベーターが1基あり、駐車場もあります。機械警備もあります。トイレは男女別です。空調は個別空調です。床仕様はフリーアクセスです。天高は2600mmです。耐震性は新耐震となっている、複数駅利用可能な、アクセスの良い中央区日本橋箱崎町の賃貸オフィスです。
-
物件情報
-
設備情報
- トイレ
- 室外男女別
- 床
- フリーアクセス
- 空調
- 個別空調
- セキュリティ
- 有
- 駐車場
- 有
- 会議室
- -
- エレベーター
- 1基
- 天井高
- 2600mm
-
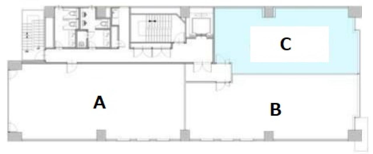
間取り図
-
近隣相場情報
日本橋箱崎町17丁目(30~40坪)の相場
11267 円 (坪)
※ビルサク調べ
周辺施設情報
| コンビニ |
ファミリーマート/日本橋かきがら町店/270m(徒歩3分) セブンイレブン/日本橋T?CAT/180m(徒歩2分) |
|---|---|
| 郵便局/銀行 |
郵便局/東京シティターミナル内/[駐車場]なし/190m(徒歩2分) セブン銀行/東京メトロ 半蔵門線 水天宮前駅/[営業時間]5:00~24:00 /300m(徒歩5分) |
| 飲食店 |
会津喜多方ラーメン蔵日本橋箱崎町店/11時00分~0時30分/56m(徒歩1分) 牡蠣入レ時/12時00分~20時00分/64m(徒歩1分) |
| カフェ |
カフェドクリエ/箱崎町/[営業時間][平 日] 7:30-18:00 [土日祝] (土)休業 (日/祝)休業/94m(徒歩1分) ぽえむ/日本橋店/[営業時間]9:00~18:00/220m(徒歩3分) |
| コインパーキング |
タイムズ駐車場/日本橋箱崎町第4 [料金] [月~土]通常料金 / 0:00~0:00 20分 330円 [日・祝]通常料金 / 0:00~0:00 20分 330円 [最大料金] [月~土]8:00~18:00 最大料金3520円 18:00~8:00 最大料金660円 [日・祝]8:00~18:00 最大料金1320円 18:00~8:00 最大料金660円 [台数]3 KF-Park/箱崎 [料金] [料金]200円/15分(8~22時)、100円/60分(22~8時)200円/15分(8~22時)、100円/60分(22~8時) [最大料金] 最大料金:月~金昼間最大2,600円(8~22時) 土日祝昼間最大 1,500円(8~22時)、夜間最大500円(22~8時) [台数]14台 |
周辺地図
箱崎升喜ビルは中央区日本橋箱崎町にある地上6階建ての賃貸事務所です。最寄駅は東京メトロ半蔵門線の水天宮前駅から徒歩3分、東京メトロ東西線の茅場町駅から徒歩5分、東京メトロ日比谷線の茅場町駅から徒歩5分です。1992年11月竣工の基準階面積が88.07坪の鉄骨鉄筋コンクリート造です。設備としてはエレベーターが1基あり、駐車場もあります。機械警備もあります。トイレは男女別です。空調は個別空調です。床仕様はフリーアクセスです。天高は2600mmです。耐震性は新耐震となっている、複数駅利用可能な、アクセスの良い中央区日本橋箱崎町の賃貸オフィスです。
全フロア情報
更新日:2025年12月4日
| 階 | 面積 | 賃料 | 共益費 | 敷金 | 入居日 | お問合せ | お気に入り | |
|---|---|---|---|---|---|---|---|---|
|
3F
(A区画) |
37.6 坪 124.3 ㎡ |
※現在空室情報はございません |
※現在空室情報は 確認する |
|||||
|
3F
(B区画) |
32.57 坪 107.67 ㎡ |
※現在空室情報はございません |
※現在空室情報は 確認する |
|||||
|
3F
(C区画) |
26.46 坪 87.47 ㎡ |
※現在空室情報はございません |
※現在空室情報は 確認する |
|||||
|
4F
(C区画) |
26.46 坪 87.47 ㎡ |
317,520 円 12,000 円(坪) |
79,380 円 3,000 円(坪) |
3,175,200 円 10 ヶ月 |
2026/04/25 |
|
|
|
お問い合わせ
似た条件の物件はこちら
-
伊勢兼ビル
東京都中央区日本橋人形町1-7-9
坪数:27.05 坪
坪単価:17,000 円(坪)
-
林ビル
東京都中央区日本橋馬喰町1-5-10
坪数:29.43 坪
坪単価:10,000 円(坪)
-
7山京ビル
東京都中央区日本橋箱崎町17-8
坪数:37.5 坪
坪単価:11,000 円(坪)
-
金物会館ビル
東京都中央区日本橋浜町2-37-8
坪数:34.76 坪
坪単価:4,315 円(坪)
-
Ikigai Bashi ビル
東京都中央区日本橋大伝馬町1-7
坪数:38.27 坪
坪単価:16,000 円(坪)
-
箱崎YMビル
東京都中央区日本橋箱崎町44-7
坪数:27.51 坪
坪単価:10,178 円(坪)
-
第1松井ビル
東京都中央区日本橋馬喰町1-8-4
坪数:36.67 坪
坪単価:8,603 円(坪)
-
Grandir 日本橋小伝馬町
東京都中央区日本橋小伝馬町18-1
坪数:44.34 坪
坪単価:24,000 円(坪)
-
人形町藤和ビル
東京都中央区日本橋人形町2-15-3
坪数:32.41 坪
坪単価:10,000 円(坪)
-
馬喰町有楽ビル
東京都中央区日本橋馬喰町1-5-1
坪数:27.34 坪
坪単価:12,000 円(坪)
関連エリアから探す
- 日本橋大伝馬町
- 日本橋蛎殻町
- 日本橋小網町
- 日本橋小伝馬町
- 日本橋小舟町
- 日本橋富沢町
- 日本橋人形町
- 日本橋箱崎町
- 日本橋堀留町
- 日本橋中洲
- 日本橋馬喰町
- 日本橋浜町
- 日本橋久松町
- 日本橋横山町
- 東日本橋