新一ビル(物件No:81182152)
新一ビルは、中央区新川にある貸事務所物件です。最寄駅は、東京メトロ東西線、日比谷線茅場町駅、東京メトロ半蔵門線水天宮前駅、JR八丁堀駅です。1974年竣工で、基準階が坪の賃貸オフィスビルです。床はOAフロアで、天井の高さは20mm。トイレは室外男女別で、空調は個別空調です。エレベーターは1基あり、セキュリティは機械警備となっています。駐車場が利用可能です。最寄駅から徒歩分。複数路線利用可能な中央区新川の貸事務所です。
-
物件情報
-
設備情報
- トイレ
- 室内男女別
- 床
- タイルカーペット
- 空調
- 個別空調
- セキュリティ
- 有
- 駐車場
- 無
- 会議室
- -
- エレベーター
- 1基
- 天井高
- -
-
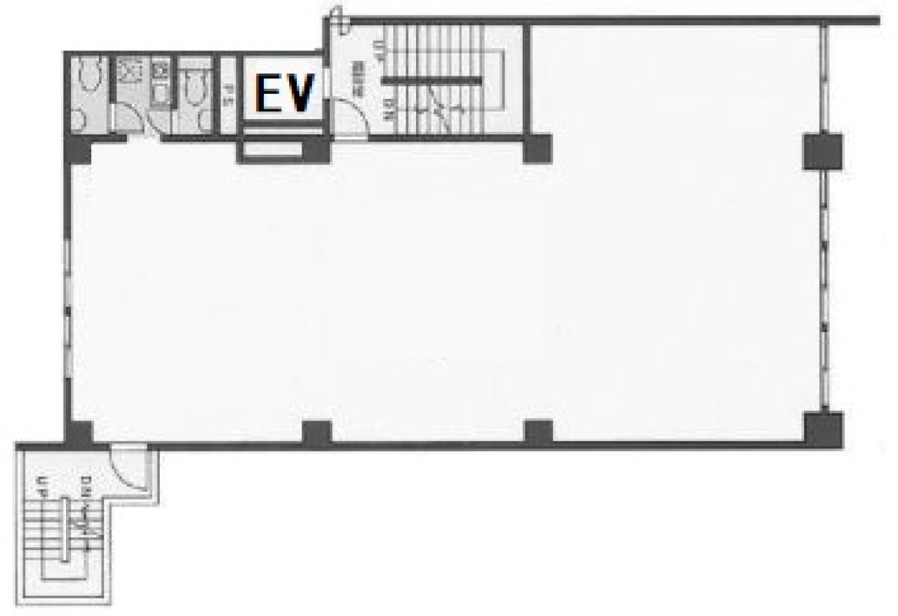
間取り図
-
近隣相場情報
新川1丁目(40~50坪)の相場
11500 円 (坪)
※ビルサク調べ
周辺施設情報
| コンビニ |
コミュニティ・ストア/コミストキッチン 新川一丁目店/110m(徒歩2分) ファミリーマート/新川二丁目店/200m(徒歩2分) |
|---|---|
| 郵便局/銀行 |
イーネット/ファミリーマート新川二丁目/[営業時間]0:00~24:00/200m(徒歩2分) 郵便局/中央新川/[駐車場]なし [取扱]郵便/貯金/保険/ATM/80m(徒歩1分) |
| 飲食店 |
牛幸 本店/11時30分~14時30分 17時00分~22時30分/83m(徒歩1分) ターブルドット/18時00分~22時00分/110m(徒歩1分) |
| カフェ |
プロント/新川店/[営業時間]平日:カフェ 7:30~17:30/200m(徒歩3分) ドトール/新川1丁目店/[営業時間]平日:7:00~19:00 土曜日:7:00~14:00 日 祝:-/290m(徒歩4分) |
| コインパーキング |
パークジャパン/中央新川第2 [料金] 月-土 オールタイム 300円/15分 [最大料金] 20:00~8:00 最大料金300 円 最大料金4時間2,700 円 [台数]13台 タイムズ駐車場/TNS新川1丁目第2 [料金] [月~土]通常料金 / 8:00~20:00 20分 200円 20:00~8:00 90分 100円 [日・祝]通常料金 / 8:00~20:00 30分 100円 20:00~8:00 90分 100円 [最大料金] [月~土]当日1日最大料金3000円(24時迄) [日・祝]当日1日最大料金1000円(24時迄) [台数]5 |
周辺地図
新一ビルは、中央区新川にある貸事務所物件です。最寄駅は、東京メトロ東西線、日比谷線茅場町駅、東京メトロ半蔵門線水天宮前駅、JR八丁堀駅です。1974年竣工で、基準階が坪の賃貸オフィスビルです。床はOAフロアで、天井の高さは20mm。トイレは室外男女別で、空調は個別空調です。エレベーターは1基あり、セキュリティは機械警備となっています。駐車場が利用可能です。最寄駅から徒歩分。複数路線利用可能な中央区新川の貸事務所です。
全フロア情報
更新日:2025年11月13日
| 階 | 面積 | 賃料 | 共益費 | 敷金 | 入居日 | お問合せ | お気に入り | |
|---|---|---|---|---|---|---|---|---|
| 1F |
39.36 坪 130.12 ㎡ |
※現在空室情報はございません |
※現在空室情報は 確認する |
|||||
| 2F |
44.92 坪 148.5 ㎡ |
※現在空室情報はございません |
※現在空室情報は 確認する |
|||||
| 3F |
44.92 坪 148.5 ㎡ |
※現在空室情報はございません |
※現在空室情報は 確認する |
|||||
| 4F |
44.92 坪 148.5 ㎡ |
※現在空室情報はございません |
※現在空室情報は 確認する |
|||||
お問い合わせ
似た条件の物件はこちら
-
合人社東京八丁堀ビル
東京都中央区八丁堀3-22-8
坪数:36.54 坪
坪単価:28,000 円(坪)
-
大湯ビル
東京都中央区日本橋茅場町2-6-8
坪数:43 坪
坪単価:20,000 円(坪)
-
ONE SHINKAWA
東京都中央区新川1-23-5
坪数:38.3 坪
坪単価:22,000 円(坪)
-
シーラックグループ 日本橋兜町ビル
東京都中央区日本橋兜町18-5
坪数:41.9 坪
坪単価:26,000 円(坪)
-
ネオ神谷
東京都中央区八丁堀4-10-11
坪数:53.75 坪
坪単価:8,500 円(坪)
-
坂田ビル
東京都中央区新川2-15-7
坪数:34 坪
坪単価:12,000 円(坪)
-
茅場町SKKビル
東京都中央区日本橋茅場町3-10-2
坪数:39.31 坪
坪単価:13,198 円(坪)
-
Floor and Walls Hacchobori
東京都中央区八丁堀3-11-12
坪数:35.95 坪
坪単価:19,800 円(坪)
-
田畑ビル
東京都中央区八丁堀2-30-15
坪数:37.62 坪
坪単価:9,000 円(坪)
-
BM兜町ビル
東京都中央区日本橋兜町11-7
坪数:36.38 坪
坪単価:13,000 円(坪)