スカッツビル(物件No:81087110)
スカッツビルは、千代田区神田松永町にある貸事務所物件です。最寄り駅は東京メトロ日比谷線、JR秋葉原駅、都営新宿線岩本町駅です。1980年竣工の賃貸オフィスビルです。空調は個別空調で、エレベーターは1基あります。秋葉原駅周辺には様々な店舗が立ち並んでおり、交通アクセスも良く、利便性の高い千代田区神田松永町の貸事務所です。
| 階 | 面積 | 賃料 | 共益費 | 敷金 | 入居日 | お問合せ | お気に入り |
|---|---|---|---|---|---|---|---|
| 3F |
13 坪 42.98 ㎡ |
162,500 円 12,500 円(坪) |
無 |
1,300,000 円 8 ヶ月 |
即日 |
|
|
| 階 | 面積 | 賃料 | 共益費 | 敷金 | 入居日 | お問合せ | お気に入り |
|---|---|---|---|---|---|---|---|
| 3F |
13 坪 42.98 ㎡ |
162,500 円 12,500 円(坪) |
無 |
1,300,000 円 8 ヶ月 |
即日 |
|
|
-
物件情報
-
設備情報
- トイレ
- 男女共用
- 床
- -
- 空調
- 個別空調
- セキュリティ
- -
- 駐車場
- -
- 会議室
- -
- エレベーター
- 1基
- 天井高
- -
-
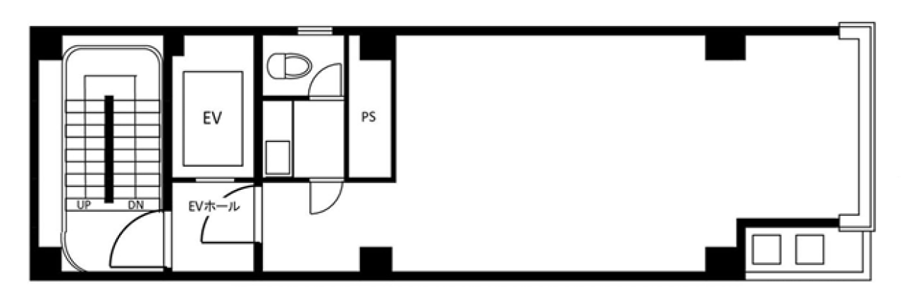
間取り図
-
近隣相場情報
神田松永町15丁目(20坪以下)の相場
14250 円 (坪)
※ビルサク調べ
周辺地図
スカッツビルは、千代田区神田松永町にある貸事務所物件です。最寄り駅は東京メトロ日比谷線、JR秋葉原駅、都営新宿線岩本町駅です。1980年竣工の賃貸オフィスビルです。空調は個別空調で、エレベーターは1基あります。秋葉原駅周辺には様々な店舗が立ち並んでおり、交通アクセスも良く、利便性の高い千代田区神田松永町の貸事務所です。
全フロア情報
更新日:2026年3月17日
| 階 | 面積 | 賃料 | 共益費 | 敷金 | 入居日 | お問合せ | お気に入り | |
|---|---|---|---|---|---|---|---|---|
| 2F |
10.5 坪 34.71 ㎡ |
※現在空室情報はございません |
※現在空室情報は 確認する |
|||||
| 3F |
13 坪 42.98 ㎡ |
162,500 円 12,500 円(坪) |
無 |
1,300,000 円 8 ヶ月 |
即日 |
|
|
|
| 4F |
13 坪 42.98 ㎡ |
※現在空室情報はございません |
※現在空室情報は 確認する |
|||||
お問い合わせ
似た条件の物件はこちら
-
大手町ゲートビルディング
東京都千代田区内神田1-31-11
坪数:11.65 坪
坪単価:77,253 円(坪)
-
早川ビル
東京都千代田区岩本町3-7-13
坪数:16.46 坪
坪単価:10,000 円(坪)
-
神田乗物町ビル
東京都千代田区神田北乗物町2
坪数:16.5 坪
坪単価:12,000 円(坪)
-
パレヤソジマ
東京都千代田区神田司町2-15-1
坪数:12.03 坪
坪単価:12,053 円(坪)
-
神田美倉町ビル
東京都千代田区神田美倉町9
坪数:12.6 坪
坪単価:16,667 円(坪)
-
神田NSOビル
東京都千代田区外神田2-5-10
坪数:15.17 坪
坪単価:13,000 円(坪)
-
プロミエ秋葉原
東京都千代田区神田練塀町73
坪数:13.65 坪
坪単価:19,121 円(坪)
-
都築ビル
東京都千代田区神田岩本町4-4-4
坪数:16.72 坪
坪単価:11,962 円(坪)
-
秋葉原Y'sビル
東京都千代田区神田佐久間町3-20-5
坪数:11.17 坪
坪単価:16,000 円(坪)
-
昭和ビル
東京都千代田区神田和泉町1-2-5
坪数:16.5 坪
坪単価:11,000 円(坪)
関連エリアから探す
- 内神田
- 神田淡路町
- 神田小川町
- 神田鍛冶町
- 神田須田町
- 神田駿河台
- 神田多町
- 神田司町
- 神田錦町
- 神田美土代町
- 岩本町
- 鍛冶町
- 神田岩本町
- 神田北乗物町
- 神田紺屋町
- 神田富山町
- 神田西福田町
- 神田東松下町
- 神田東紺屋町
- 神田美倉町
- 東神田
- 神田相生町
- 神田和泉町
- 神田佐久間町
- 神田佐久間河岸
- 神田練塀町
- 神田花岡町
- 神田松永町
- 外神田
- 神田平河町