安和司町ビル(物件No:81086007)
安和司町ビルは、千代田区神田司町にある貸事務所物件で最寄り駅は地下鉄丸ノ内線淡路町駅、都営新宿線小川町駅、JR神田駅です。1990年竣工で基準階が56坪の賃貸オフィスビルです。床は2WAYで天井の高さは2400mm。トイレは室内男女別で、空調は個別空調です。エレベーターは1基あり、セキュリティは機械警備となっています。複数路線利用可能で交通アクセスの良い千代田区神田司町の貸事務所です。
-
物件情報
-
設備情報
- トイレ
- 室内男女別
- 床
- タイルカーペット
- 空調
- 個別空調
- セキュリティ
- 有
- 駐車場
- 無
- 会議室
- -
- エレベーター
- 1基
- 天井高
- 2400mm
-
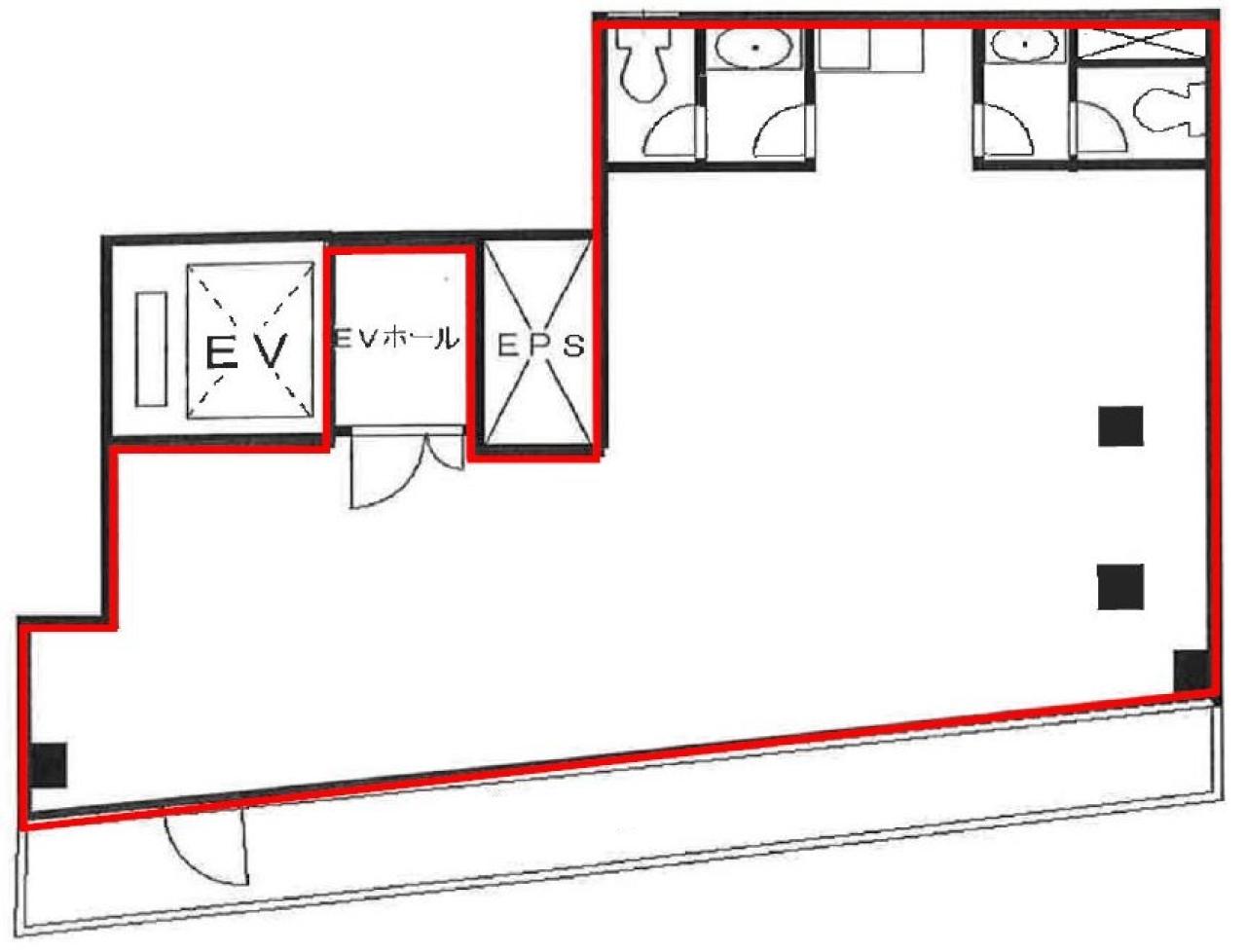
間取り図
-
近隣相場情報
神田司町2丁目(20~30坪)の相場
17117 円 (坪)
※ビルサク調べ
周辺施設情報
| コンビニ |
ファミリーマート/神田須田町一丁目店/250m(徒歩3分) セブンイレブン/神田須田町中央通り/400m(徒歩6分) |
|---|---|
| 郵便局/銀行 |
セブン銀行/神田須田町1丁目店/[営業時間]24時間営業 [備考]1 台/160m(徒歩2分) みずほ銀行/神田支店/[営業時間] [窓口]平日9:00~15:00 [ATM]平日 6:00~26:00 土曜日 8:00~22:00 日曜日 8:00~21:00 祝日・振替休日 8:00~21:00 備考 *月曜日の6:00~7:00はご利用いただけません [駐車場]日幸神田ビル駐車場/160m(徒歩2分) |
| 飲食店 |
川味坊/11時00分~15時00分,17時00分~23時45分/180m(徒歩2分) カレーノトリコ/11時00分~14時00分、18時00分~21時00分/240m(徒歩3分) |
| カフェ |
やなか珈琲店/神田店/[営業時間]平日AM8:00~PM8:00 土日AM11:00~PM8:00 ※豆の御注文は営業終了時間の15分前に終了させて頂きます。 [休業日]定休日なしで営業いたします。 [備考]イートイン:ドリンクのみ/260m(徒歩4分) スターバックス/淡路町駅前店/[営業時間]月~金:7:00~22:00 土:8:00~22:00 日祝:8:00~21:00 [休業日]不定休 [備考]無線LAN:STARBUCKS/docomo/au/Wi2 300/230m(徒歩3分) |
| コインパーキング |
タイムズ/神田多町第2 [料金] [月~土]通常料金 / 8:00~22:00 20分 400円 [日・祝]通常料金 / 08:00~22:00 20分 400円 [最大料金] [月~土] 22:00~08:00 60分 100円 [日・祝]通常料金 / 22:00~08:00 60分 100円 24時間最大1,500円 [台数]2 ユアー・パーキング/神田司町第2 [料金] 【全日】 08時~22時 30分400円 【全日】22時~08時 60分100円 [最大料金] 月~土:入庫後5時間最大3,000円(1回限り) 日 祝:昼間最大(08時~22時の間)1,500円 全 日:夜間最大(22時~08時の間)500円 [台数]3台 |
周辺地図
安和司町ビルは、千代田区神田司町にある貸事務所物件で最寄り駅は地下鉄丸ノ内線淡路町駅、都営新宿線小川町駅、JR神田駅です。1990年竣工で基準階が56坪の賃貸オフィスビルです。床は2WAYで天井の高さは2400mm。トイレは室内男女別で、空調は個別空調です。エレベーターは1基あり、セキュリティは機械警備となっています。複数路線利用可能で交通アクセスの良い千代田区神田司町の貸事務所です。
全フロア情報
更新日:2026年3月4日
| 階 | 面積 | 賃料 | 共益費 | 敷金 | 入居日 | お問合せ | お気に入り | |
|---|---|---|---|---|---|---|---|---|
| 3F |
56.5 坪 186.78 ㎡ |
1,469,000 円 26,000 円(坪) |
込 |
4,407,000 円 3 ヶ月 |
2026/04/01 |
|
|
|
| 4F |
56.5 坪 186.78 ㎡ |
※現在空室情報はございません |
※現在空室情報は 確認する |
|||||
| 8F |
26 坪 85.95 ㎡ |
※現在空室情報はございません |
※現在空室情報は 確認する |
|||||
| 9F |
16 坪 52.89 ㎡ |
※現在空室情報はございません |
※現在空室情報は 確認する |
|||||
お問い合わせ
似た条件の物件はこちら
-
大手町ゲートビルディング
東京都千代田区内神田1-31-11
坪数:34.8 坪
坪単価:70,402 円(坪)
-
日光ビル
東京都千代田区神田小川町1-1-4
坪数:34.94 坪
坪単価:15,000 円(坪)
-
M&Cビル
東京都千代田区神田小川町2-3-13
坪数:34.42 坪
坪単価:15,500 円(坪)
-
新八光ビル
東京都千代田区内神田3-22-9
坪数:31.7 坪
坪単価:20,000 円(坪)
-
早川ビル
東京都千代田区岩本町3-7-13
坪数:16.46 坪
坪単価:10,000 円(坪)
-
第八東誠ビル
東京都千代田区岩本町2-11-3
坪数:25.82 坪
坪単価:12,000 円(坪)
-
神田中沢ビル
東京都千代田区外神田6-14-12
坪数:28.5 坪
坪単価:10,526 円(坪)
-
新東ビル
東京都千代田区内神田2-8-3
坪数:21.5 坪
坪単価:12,000 円(坪)
-
神田乗物町ビル
東京都千代田区神田北乗物町2
坪数:16.5 坪
坪単価:12,000 円(坪)
-
いちご大手町ノースビル
東京都千代田区内神田1-15-7
坪数:31.89 坪
坪単価:29,000 円(坪)
関連エリアから探す
- 内神田
- 神田淡路町
- 神田小川町
- 神田鍛冶町
- 神田須田町
- 神田駿河台
- 神田多町
- 神田司町
- 神田錦町
- 神田美土代町
- 岩本町
- 鍛冶町
- 神田岩本町
- 神田北乗物町
- 神田紺屋町
- 神田富山町
- 神田西福田町
- 神田東松下町
- 神田東紺屋町
- 神田美倉町
- 東神田
- 神田相生町
- 神田和泉町
- 神田佐久間町
- 神田佐久間河岸
- 神田練塀町
- 神田花岡町
- 神田松永町
- 外神田
- 神田平河町