ヒューリック蛎殻町ビル(物件No:81085141)
ヒューリック蛎殻町ビルは中央区日本橋蛎殻町にある地下1階、地上9階建ての賃貸事務所です。最寄駅は東京メトロ日比谷線の茅場町駅から徒歩6分、東京メトロ東西線の茅場町駅から徒歩6分、東京メトロ半蔵門線の水天宮前駅から徒歩3分、東京メトロ日比谷線の人形町駅から徒歩5分、都営浅草線の人形町駅から徒歩5分です。1993年3月竣工の基準階面積が109.96坪の鉄骨鉄筋コンクリート造です。設備としては、エレベーターが2基あり、駐車場もあります。トイレは男女別です。空調は個別空調です。床仕様はフリーアクセスです。天高は2600mmです。耐震設計となっている、複数駅利用可能なアクセスの良い中央区日本橋蛎殻町の賃貸オフィスです。
| 階 | 面積 | 賃料 | 共益費 | 敷金 | 入居日 | お問合せ | お気に入り |
|---|---|---|---|---|---|---|---|
|
2F
(西区画) |
56.64 坪 187.24 ㎡ |
相談 |
込 |
相談 |
2026/06 |
|
|
| 階 | 面積 | 賃料 | 共益費 | 敷金 | 入居日 | お問合せ | お気に入り |
|---|---|---|---|---|---|---|---|
|
2F
(西区画) |
56.64 坪 187.24 ㎡ |
相談 |
込 |
相談 |
2026/06 |
|
|
-
物件情報
-
設備情報
- トイレ
- 男女別
- 床
- フリーアクセス
- 空調
- 個別空調
- セキュリティ
- -
- 駐車場
- 有
- 会議室
- -
- エレベーター
- 2基
- 天井高
- 2600mm
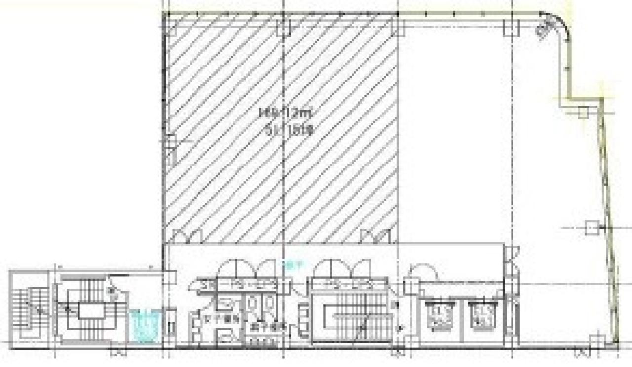
-
間取り図
-
近隣相場情報
日本橋蛎殻町1丁目(50~100坪)の相場
18000 円 (坪)
※ビルサク調べ
周辺施設情報
| コンビニ |
ミニストップ/日本橋蛎殻町店/48m(徒歩1分) セブンイレブン/日本橋蛎殻町/71m(徒歩1分) |
|---|---|
| 郵便局/銀行 |
みずほ銀行/ATM ミニストップ日本橋蛎殻町店出張所/[ATM]平日 0:00~24:00 土曜日 0:00~22:00 日曜日 8:00~24:00 祝日・振替休日 曜日に準ずる/48m(徒歩1分) 郵便局/日本橋小網町/[駐車場]なし [取扱]郵便/貯金/保険/ATM/240m(徒歩3分) |
| 飲食店 |
カレーラジャ/11時00分~22時00分/74m(徒歩1分) Okonomiyaki KYOYA/18時30分~21時30分/16m(徒歩1分) |
| カフェ |
シアトルズベスト/ヴァション日本橋兜町店/[営業時間]月~金 7:30~22:00(L.O. 21:30)土・日・祝 貸切のみ営業 /450m(徒歩6分) ドトール/人形町1丁目店/[営業時間]平日:7:00~20:00 土曜日:8:00~18:00 日 祝:8:00~18:00/400m(徒歩5分) |
| コインパーキング |
パークジャパン/日本橋蛎殻町第1 [料金] [料金]8:00~22:00 200円/20分 22:00~8:00 100円/60分 22:00~8:00 [最大料金] 最大料金300円 最大料金24時間2,400円 [台数]1 ナビパーク/日本橋蛎殻町第1 [料金] [料金]全曜日 8:00~20:00 20分/200円 全曜日 20:00~8:00 60分/100円 [最大料金] (月~土)3,000円 24時間最大 (日・祝)1,200円 繰返し有? [台数]3台 その他区画 0台 |
周辺地図
ヒューリック蛎殻町ビルは中央区日本橋蛎殻町にある地下1階、地上9階建ての賃貸事務所です。最寄駅は東京メトロ日比谷線の茅場町駅から徒歩6分、東京メトロ東西線の茅場町駅から徒歩6分、東京メトロ半蔵門線の水天宮前駅から徒歩3分、東京メトロ日比谷線の人形町駅から徒歩5分、都営浅草線の人形町駅から徒歩5分です。1993年3月竣工の基準階面積が109.96坪の鉄骨鉄筋コンクリート造です。設備としては、エレベーターが2基あり、駐車場もあります。トイレは男女別です。空調は個別空調です。床仕様はフリーアクセスです。天高は2600mmです。耐震設計となっている、複数駅利用可能なアクセスの良い中央区日本橋蛎殻町の賃貸オフィスです。
全フロア情報
更新日:2026年3月3日
| 階 | 面積 | 賃料 | 共益費 | 敷金 | 入居日 | お問合せ | お気に入り | |
|---|---|---|---|---|---|---|---|---|
|
2F
(東区画) |
56.19 坪 185.75 ㎡ |
相談 |
込 |
相談 |
2026/06 |
|
|
|
|
2F
(西区画) |
56.64 坪 187.24 ㎡ |
相談 |
込 |
相談 |
2026/06 |
|
|
|
| 3F |
52.3 坪 172.89 ㎡ |
※現在空室情報はございません |
※現在空室情報は 確認する |
|||||
|
3F
(1区画) |
51.15 坪 169.09 ㎡ |
※現在空室情報はございません |
※現在空室情報は 確認する |
|||||
お問い合わせ
似た条件の物件はこちら
-
THE GATE日本橋人形町
東京都中央区日本橋富沢町7-16
坪数:62.65 坪
坪単価:24,000 円(坪)
-
人形町アムフラット
東京都中央区日本橋人形町2-35-12
坪数:63.83 坪
坪単価:17,233 円(坪)
-
福本ビル
東京都中央区日本橋蛎殻町1-20-3
坪数:60.4 坪
坪単価:13,000 円(坪)
-
日本橋人形町スクエア
東京都中央区日本橋堀留町1-8-11
坪数:61.34 坪
坪単価:22,000 円(坪)
-
オーキッドプレイス蛎殻町ビル
東京都中央区日本橋蛎殻町1-4-1
坪数:51.15 坪
坪単価:15,000 円(坪)
-
Grandir 日本橋小伝馬町
東京都中央区日本橋小伝馬町18-1
坪数:44.34 坪
坪単価:24,000 円(坪)
-
日本橋ウッドフィールド
東京都中央区日本橋箱崎町34-4
坪数:67.9 坪
坪単価:9,000 円(坪)
-
アライズ第2ビル
東京都中央区日本橋箱崎町5-4
坪数:52.8 坪
坪単価:11,000 円(坪)
-
(仮称)びいんず馬喰町駅前ビル
東京都中央区日本橋馬喰町1-11-2
坪数:42.19 坪
坪単価:18,962 円(坪)
-
近仁ビル
東京都中央区日本橋小網町3-17
坪数:48.05 坪
坪単価:14,152 円(坪)
関連エリアから探す
- 日本橋大伝馬町
- 日本橋蛎殻町
- 日本橋小網町
- 日本橋小伝馬町
- 日本橋小舟町
- 日本橋富沢町
- 日本橋人形町
- 日本橋箱崎町
- 日本橋堀留町
- 日本橋中洲
- 日本橋馬喰町
- 日本橋浜町
- 日本橋久松町
- 日本橋横山町
- 東日本橋