安和宝町ビル(物件No:81080163)
安和宝町ビルは、東京都中央区八丁堀にある地上6階建ての賃貸事務所です。最寄駅は都営浅草線の宝町駅から徒歩2分、東京メトロ銀座線の京橋駅から徒歩4分、東京メトロ日比谷線の八丁堀駅から徒歩5分、JR京葉線の八丁堀駅から徒歩5分、東京メトロ有楽町線の新富町駅から徒歩6分です。1970年3月竣工の鉄骨鉄筋コンクリート造です。設備としては、エレベーターが1基あり、セキュリティは機械警備です。トイレは室外男女別です。空調は個別空調です。複数路線利用可能なアクセスの良い東京都中央区八丁堀の賃貸オフィスです。
| 階 | 面積 | 賃料 | 共益費 | 敷金 | 入居日 | お問合せ | お気に入り | |
|---|---|---|---|---|---|---|---|---|
|
3F
(305区画) |
8.86 坪 29.29 ㎡ |
※現在空室情報はございません |
※現在空室情報は 確認する |
|||||
| 階 | 面積 | 賃料 | 共益費 | 敷金 | 入居日 | お問合せ | お気に入り | |
|---|---|---|---|---|---|---|---|---|
|
3F
(305区画) |
8.86 坪 29.29 ㎡ |
※現在空室情報はございません |
※現在空室情報は 確認する |
|||||
-
物件情報
-
設備情報
- トイレ
- 男女別
- 床
- -
- 空調
- 個別空調
- セキュリティ
- 有
- 駐車場
- -
- 会議室
- -
- エレベーター
- 1基
- 天井高
- -
-
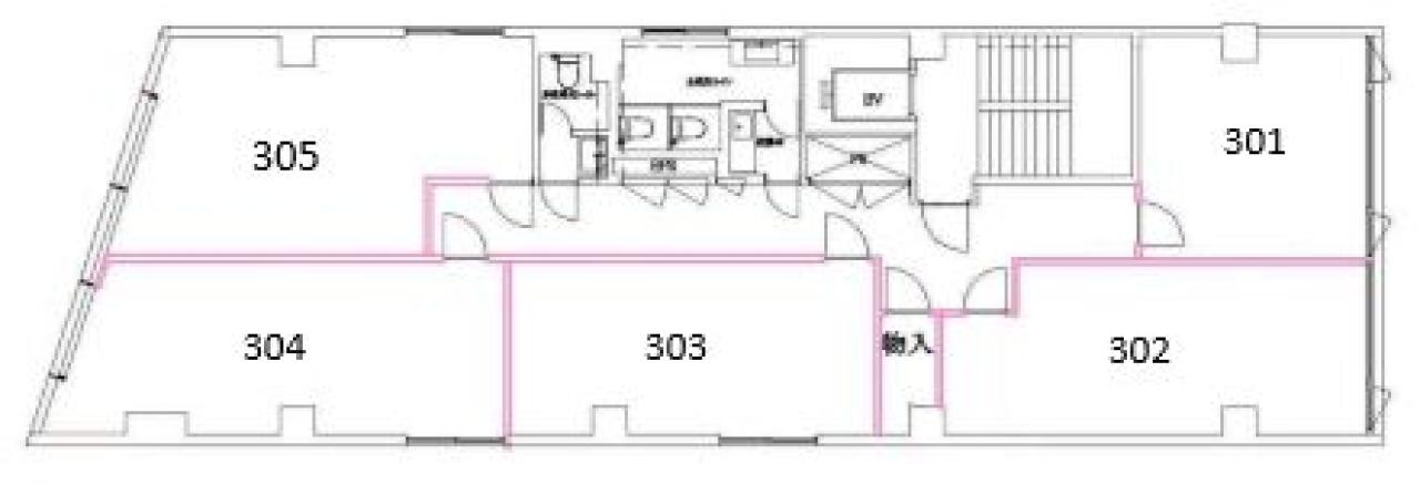
間取り図
-
近隣相場情報
八丁堀4丁目(20坪以下)の相場
15703 円 (坪)
※ビルサク調べ
周辺施設情報
| コンビニ |
ローソン/H八丁堀弾正橋/65m(徒歩1分) ファミリーマート/宝町駅前店/180m(徒歩2分) |
|---|---|
| 郵便局/銀行 |
秋田銀行/東京支店/[営業時間](平日)9:00~15:00 (定休日)土・日・祝 [ATM](平日)9:00~17:00 (土曜)‐ (日祝)‐/120m(徒歩1分) 城南信用金庫/銀座支店/[営業時間]平日9:00~15:00/290m(徒歩3分) |
| 飲食店 |
かさねや銀座店/11:00~22:00/100m(徒歩1分) 備長炭や いこる銀座店/11時30分~14時30分、17時30分~23時00分/280m(徒歩3分) |
| カフェ |
Cafe de 武/[営業時間]11時30分~20時00分/200m(徒歩2分) バロン/[営業時間]10時00分~17時00分/450m(徒歩6分) |
| コインパーキング |
ナビパーク/新富第1 [料金] 全日 8:00 ~ 20:00 12分 / 400円 全日 20:00 ~ 8:00 60分 / 100円 [最大料金] (日・祝) 1,600円 夜間最大 (全日) 20:00 ~ 8:00 400円 (月~土) 3,800円 [台数]3台 タイムズ駐車場/銀座1丁目第6 [料金] [月~土]00:00-00:00 12分 300円 [日・祝]00:00-00:00 12分 300円 [最大料金] [月~土]09:00-19:00 最大料金3000円 19:00-09:00 最大料金900円 [日・祝]09:00-19:00 最大料金1400円 19:00-09:00 最大料金900円 [台数]5 |
周辺地図
安和宝町ビルは、東京都中央区八丁堀にある地上6階建ての賃貸事務所です。最寄駅は都営浅草線の宝町駅から徒歩2分、東京メトロ銀座線の京橋駅から徒歩4分、東京メトロ日比谷線の八丁堀駅から徒歩5分、JR京葉線の八丁堀駅から徒歩5分、東京メトロ有楽町線の新富町駅から徒歩6分です。1970年3月竣工の鉄骨鉄筋コンクリート造です。設備としては、エレベーターが1基あり、セキュリティは機械警備です。トイレは室外男女別です。空調は個別空調です。複数路線利用可能なアクセスの良い東京都中央区八丁堀の賃貸オフィスです。
全フロア情報
更新日:2026年3月13日
| 階 | 面積 | 賃料 | 共益費 | 敷金 | 入居日 | お問合せ | お気に入り | |
|---|---|---|---|---|---|---|---|---|
|
2F
(201区画) |
14.6 坪 48.26 ㎡ |
248,200 円 17,000 円(坪) |
込 |
1,489,200 円 6 ヶ月 |
2026/04 |
|
|
|
|
2F
(202区画) |
4.38 坪 14.48 ㎡ |
※現在空室情報はございません |
※現在空室情報は 確認する |
|||||
|
2F
(203区画) |
22.07 坪 72.96 ㎡ |
※現在空室情報はございません |
※現在空室情報は 確認する |
|||||
| 3F |
48.4 坪 160 ㎡ |
※現在空室情報はございません |
※現在空室情報は 確認する |
|||||
|
3F
(301区画) |
6.63 坪 21.92 ㎡ |
※現在空室情報はございません |
※現在空室情報は 確認する |
|||||
|
3F
(302区画) |
8.11 坪 26.81 ㎡ |
※現在空室情報はございません |
※現在空室情報は 確認する |
|||||
|
3F
(303区画) |
6.66 坪 22.02 ㎡ |
※現在空室情報はございません |
※現在空室情報は 確認する |
|||||
|
3F
(304区画) |
8.27 坪 27.34 ㎡ |
※現在空室情報はございません |
※現在空室情報は 確認する |
|||||
|
3F
(305区画) |
8.86 坪 29.29 ㎡ |
※現在空室情報はございません |
※現在空室情報は 確認する |
|||||
|
4F
(401区画) |
53.1 坪 175.54 ㎡ |
※現在空室情報はございません |
※現在空室情報は 確認する |
|||||
|
5F
(501区画) |
9.2 坪 30.41 ㎡ |
※現在空室情報はございません |
※現在空室情報は 確認する |
|||||
|
5F
(502区画) |
5.75 坪 19.01 ㎡ |
※現在空室情報はございません |
※現在空室情報は 確認する |
|||||
|
5F
(503区画) |
12.64 坪 41.79 ㎡ |
※現在空室情報はございません |
※現在空室情報は 確認する |
|||||
|
5F
(504区画) |
5.92 坪 19.57 ㎡ |
※現在空室情報はございません |
※現在空室情報は 確認する |
|||||
お問い合わせ
似た条件の物件はこちら
-
大湯ビル
東京都中央区日本橋茅場町2-6-8
坪数:10 坪
坪単価:18,000 円(坪)
-
第1井上ビル
東京都中央区日本橋茅場町2-14-1
坪数:12.3 坪
坪単価:15,000 円(坪)
-
日本橋大江戸ビル
東京都中央区日本橋茅場町2-5-6
坪数:6.18 坪
坪単価:29,150 円(坪)
-
新井ビル
東京都中央区日本橋茅場町1-12-1
坪数:10.62 坪
坪単価:15,113 円(坪)
-
新東京ビル
東京都中央区新川1-3-2
坪数:10.98 坪
坪単価:14,572 円(坪)
-
K・Tビル
東京都中央区日本橋茅場町1-6-3
坪数:5.50 坪
坪単価:10,909 円(坪)
-
Glanffice茅場町
東京都中央区新川1-28-33
坪数:12.23 坪
坪単価:13,246 円(坪)
-
亀島ビル
東京都中央区日本橋茅場町3-13-2
坪数:10.29 坪
坪単価:13,469 円(坪)
-
東映堂新川ビル
東京都中央区新川1-29-11
坪数:12.38 坪
坪単価:26,042 円(坪)