恵比寿プラックスビル(物件No:80934077)
恵比寿プラックスビルは、渋谷区恵比寿南にある地上6階建ての賃貸事務所です。最寄駅はJR山手線の恵比寿駅から徒歩6分、東京メトロ日比谷線の恵比寿駅から徒歩8分です。2003年9月竣工の鉄筋コンクリート造です。設備としては、エレベーターが1基あります。空調は個別空調です。床仕様はフリーアクセスです。耐震設計となっている、ビジネス街として人気のある渋谷区恵比寿南の賃貸オフィスです。
-
物件情報
-
設備情報
- トイレ
- -
- 床
- フリーアクセス
- 空調
- 個別空調
- セキュリティ
- -
- 駐車場
- -
- 会議室
- -
- エレベーター
- 1基
- 天井高
- -
-
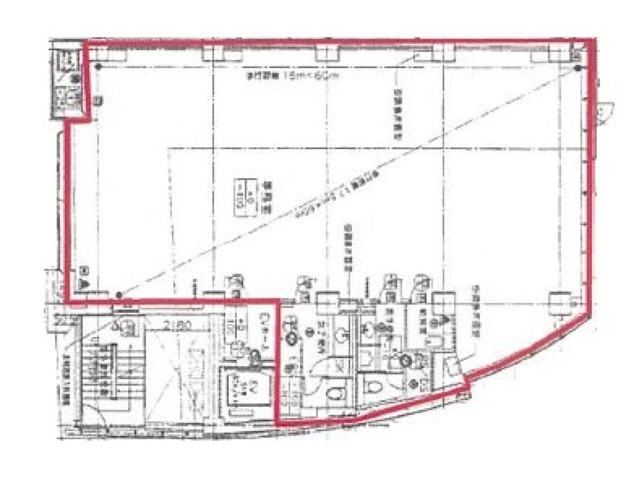
間取り図
-
近隣相場情報
恵比寿南1丁目(50~100坪)の相場
27000 円 (坪)
※ビルサク調べ
周辺地図
恵比寿プラックスビルは、渋谷区恵比寿南にある地上6階建ての賃貸事務所です。最寄駅はJR山手線の恵比寿駅から徒歩6分、東京メトロ日比谷線の恵比寿駅から徒歩8分です。2003年9月竣工の鉄筋コンクリート造です。設備としては、エレベーターが1基あります。空調は個別空調です。床仕様はフリーアクセスです。耐震設計となっている、ビジネス街として人気のある渋谷区恵比寿南の賃貸オフィスです。
全フロア情報
更新日:2025年12月9日
| 階 | 面積 | 賃料 | 共益費 | 敷金 | 入居日 | お問合せ | お気に入り | |
|---|---|---|---|---|---|---|---|---|
| 4F |
56.18 坪 185.72 ㎡ |
※現在空室情報はございません |
※現在空室情報は 確認する |
|||||
| 6F |
56.18 坪 185.72 ㎡ |
※現在空室情報はございません |
※現在空室情報は 確認する |
|||||
お問い合わせ
似た条件の物件はこちら
-
いちご恵比寿西ビル
東京都渋谷区恵比寿西2-7-3
坪数:63.25 坪
坪単価:29,000 円(坪)
-
COM-BOX
東京都渋谷区恵比寿西1-32-16
坪数:55.55 坪
坪単価:15,662 円(坪)
-
フィオーレ代官山
東京都渋谷区代官山町6-6
坪数:69.91 坪
坪単価:19,000 円(坪)
-
CATビル
東京都渋谷区恵比寿西2-3-16
坪数:57.21 坪
坪単価:22,727 円(坪)
-
Planex Wattビル
東京都渋谷区恵比寿南1-16-13
坪数:51.84 坪
坪単価:27,273 円(坪)
-
HAGIWARA BLDG.2
東京都渋谷区広尾1-2-2
坪数:42.14 坪
坪単価:21,357 円(坪)
-
シャトレ代官山アネックス
東京都渋谷区代官山町2-6
坪数:47.96 坪
坪単価:17,723 円(坪)
-
ASKビル
東京都渋谷区恵比寿1-24-4
坪数:53.03 坪
坪単価:20,008 円(坪)
-
三恵51ビル
東京都渋谷区恵比寿1-11-2
坪数:48.68 坪
坪単価:27,000 円(坪)
-
WARNERビル
東京都渋谷区恵比寿3-36-3
坪数:41.25 坪
坪単価:28,418 円(坪)