五反田シティハイツ(物件No:80726005)
五反田シティハイツは、品川区西五反田にある地上9階建ての貸店舗物件/賃貸事務所です。最寄駅はJR山手線の五反田駅から徒歩3分、東急池上線の大崎広小路駅から徒歩6分です。1983年7月竣工の鉄骨鉄筋コンクリート造です。設備としては、エレベーターが1基あります。トイレは室外男女共用です。耐震設計となっている、最寄駅から近くて便利な品川区西五反田の貸店舗物件/賃貸オフィスです。
-
物件情報
-
設備情報
- トイレ
- 室外男女共用
- 床
- -
- 空調
- -
- セキュリティ
- -
- 駐車場
- -
- 会議室
- -
- エレベーター
- 1基
- 天井高
- -
-
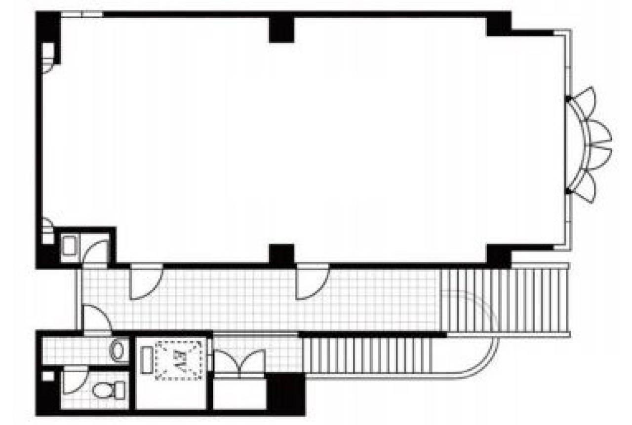
間取り図
-
近隣相場情報
西五反田1丁目(20~30坪)の相場
15934 円 (坪)
※ビルサク調べ
周辺地図
五反田シティハイツは、品川区西五反田にある地上9階建ての貸店舗物件/賃貸事務所です。最寄駅はJR山手線の五反田駅から徒歩3分、東急池上線の大崎広小路駅から徒歩6分です。1983年7月竣工の鉄骨鉄筋コンクリート造です。設備としては、エレベーターが1基あります。トイレは室外男女共用です。耐震設計となっている、最寄駅から近くて便利な品川区西五反田の貸店舗物件/賃貸オフィスです。
全フロア情報
更新日:2026年1月6日
| 階 | 面積 | 賃料 | 共益費 | 敷金 | 入居日 | お問合せ | お気に入り | |
|---|---|---|---|---|---|---|---|---|
|
2F
(A区画) |
26.4 坪 87.27 ㎡ |
※現在空室情報はございません |
※現在空室情報は 確認する |
|||||
|
2F
(B区画) |
21.19 坪 70.05 ㎡ |
※現在空室情報はございません |
※現在空室情報は 確認する |
|||||
| 9F |
33.3 坪 110.08 ㎡ |
500,000 円 15,015 円(坪) |
100,000 円 3,003 円(坪) |
1,500,000 円 3 ヶ月 |
即日 |
|
|
|
お問い合わせ
似た条件の物件はこちら
-
東京モリスビル第10
東京都品川区西五反田7-16-3
坪数:26.33 坪
坪単価:14,500 円(坪)
-
FP五反田ビル
東京都品川区西五反田2-28-10
坪数:33.78 坪
坪単価:12,441 円(坪)
-
JLGビル
東京都品川区東五反田1-19-7
坪数:16.37 坪
坪単価:15,000 円(坪)
-
NOVEL WORK Gotanda
東京都品川区東五反田4-7-27
坪数:21.19 坪
坪単価:29,259 円(坪)
-
Y.BLDG
東京都品川区西五反田6-24-15
坪数:27.6 坪
坪単価:12,000 円(坪)
-
ウエストワールドビル
東京都品川区東五反田3-1-6
坪数:20.42 坪
坪単価:15,671 円(坪)
-
シティインデックス西五反田
東京都品川区西五反田8-2-13
坪数:16.42 坪
坪単価:18,845 円(坪)
-
吾作ビル
東京都品川区西五反田1-29-2
坪数:35 坪
坪単価:13,000 円(坪)
-
中村屋ビル
東京都品川区西五反田8-1-8
坪数:26.6 坪
坪単価:13,158 円(坪)
-
誠實ビル
東京都品川区西五反田2-7-8
坪数:24.95 坪
坪単価:20,000 円(坪)