いろいろ聞いてみる

住吉町の賃貸オフィス

関内トーセイビルⅡ(物件No:73837024)

関内トーセイビルⅡは、神奈川県横浜市中区住吉町にある地下1階、地上12階建ての賃貸事務所です。最寄駅はJR京浜東北線の関内駅から徒歩2分、横浜市ブルーラインの関内駅から徒歩1分、みなとみらい線の馬車道駅から徒歩5分です。1984年2月竣工の鉄骨鉄筋コンクリート造です。設備としては、エレベーターが3基あり、駐車場もあります。トイレは室外男女別です。空調は個別空調です。床仕様はフリーアクセスです。天高は2500mmです。耐震設計となっている、複数路線利用可能なアクセスの良い神奈川県横浜市中区住吉町の賃貸オフィスです。

  • 関内トーセイビルⅡ
  • 関内トーセイビルⅡ
  • 関内トーセイビルⅡ
  • 関内トーセイビルⅡ
面積 賃料 共益費 敷金 入居日 お問合せ お気に入り
7F

(701区画)

29.21 坪

96.56 ㎡

※現在空室情報はございません

※現在空室情報は
ございません

最新情報を
確認する
  • 物件情報

    住所
    神奈川県横浜市中区住吉町4-45-1
    最寄り駅
    JR京浜東北線 関内駅 徒歩2分
    横浜市ブルーライン 関内駅 徒歩1分
    みなとみらい線 馬車道駅 徒歩5分
    竣工
    1984年
    耐震
    新耐震基準
    規模・構造
    B1F - 12F  鉄骨鉄筋コンクリート造
  • 設備情報

    トイレ
    室外男女別
    フリーアクセス
    空調
    個別空調
    セキュリティ
    -
    駐車場
    会議室
    -
    エレベーター
    3基
    天井高
    2500mm
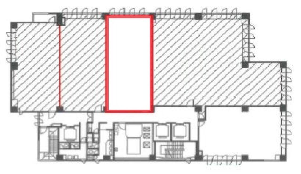
  • 間取り図

    間取り図

  • 近隣相場情報

    住吉町4丁目(20~30坪)の相場

    調査中

周辺地図

関内トーセイビルⅡは、神奈川県横浜市中区住吉町にある地下1階、地上12階建ての賃貸事務所です。最寄駅はJR京浜東北線の関内駅から徒歩2分、横浜市ブルーラインの関内駅から徒歩1分、みなとみらい線の馬車道駅から徒歩5分です。1984年2月竣工の鉄骨鉄筋コンクリート造です。設備としては、エレベーターが3基あり、駐車場もあります。トイレは室外男女別です。空調は個別空調です。床仕様はフリーアクセスです。天高は2500mmです。耐震設計となっている、複数路線利用可能なアクセスの良い神奈川県横浜市中区住吉町の賃貸オフィスです。

全フロア情報

更新日:2024年10月9日

面積 賃料 共益費 敷金 入居日 お問合せ お気に入り
2F

(202区画)

54.2 坪

179.17 ㎡

※現在空室情報はございません

※現在空室情報は
ございません

最新情報を
確認する
3F

174.88 坪

578.11 ㎡

※現在空室情報はございません

※現在空室情報は
ございません

最新情報を
確認する
4F

174.88 坪

578.11 ㎡

※現在空室情報はございません

※現在空室情報は
ございません

最新情報を
確認する
5F

(501区画)

26.83 坪

88.69 ㎡

※現在空室情報はございません

※現在空室情報は
ございません

最新情報を
確認する
5F

(502区画)

27.83 坪

92 ㎡

※現在空室情報はございません

※現在空室情報は
ございません

最新情報を
確認する
5F

(506区画)

27.93 坪

92.33 ㎡

※現在空室情報はございません

※現在空室情報は
ございません

最新情報を
確認する
6F

(601区画)

65.51 坪

216.56 ㎡

※現在空室情報はございません

※現在空室情報は
ございません

最新情報を
確認する
7F

(701区画)

29.21 坪

96.56 ㎡

※現在空室情報はございません

※現在空室情報は
ございません

最新情報を
確認する
7F

(702区画)

27.84 坪

92.03 ㎡

※現在空室情報はございません

※現在空室情報は
ございません

最新情報を
確認する
7F

(703区画)

26.37 坪

87.17 ㎡

※現在空室情報はございません

※現在空室情報は
ございません

最新情報を
確認する
8F

(805B区画)

27.18 坪

89.85 ㎡

※現在空室情報はございません

※現在空室情報は
ございません

最新情報を
確認する
9F

(902区画)

29.21 坪

96.56 ㎡

※現在空室情報はございません

※現在空室情報は
ございません

最新情報を
確認する
9F

(903区画)

27.84 坪

92.03 ㎡

※現在空室情報はございません

※現在空室情報は
ございません

最新情報を
確認する
10F

(1001区画)

54.76 坪

181.02 ㎡

※現在空室情報はございません

※現在空室情報は
ございません

最新情報を
確認する
10F

(1002区画)

26.83 坪

88.69 ㎡

※現在空室情報はございません

※現在空室情報は
ございません

最新情報を
確認する
10F

(1003区画)

27.94 坪

92.36 ㎡

※現在空室情報はございません

※現在空室情報は
ございません

最新情報を
確認する
10F

(1005区画)

38.14 坪

126.08 ㎡

※現在空室情報はございません

※現在空室情報は
ございません

最新情報を
確認する
11F

(1105区画)

25.82 坪

85.36 ㎡

※現在空室情報はございません

※現在空室情報は
ございません

最新情報を
確認する

お問い合わせ

必須
必須
必須
必須
必須

お問い合わせ

物件に関してのお問い合わせ

「失敗しないオフィス移転サポート」物件探しから移転までスムーズで担当者様がとにかく楽になるサービスです。

050-7587-0049平日 9:00~18:00

メールでお問い合わせ

フリーワード検索