跳豊ビル(物件No:73417142)
跳豊ビルは、墨田区千歳にある地上6階建ての賃貸事務所です。最寄駅はJR中央・総武線の両国駅から徒歩7分、都営大江戸線の森下駅から徒歩7分です。1991年8月竣工の鉄筋コンクリート造です。設備としては、エレベーターが1基あります。トイレは室内男女別です。空調は個別空調です。耐震設計となっている、ビジネス街として人気のある墨田区千歳の賃貸オフィスです。
-
物件情報
-
設備情報
- トイレ
- 室内男女別
- 床
- -
- 空調
- 個別空調
- セキュリティ
- -
- 駐車場
- 無
- 会議室
- -
- エレベーター
- 1基
- 天井高
- -
-
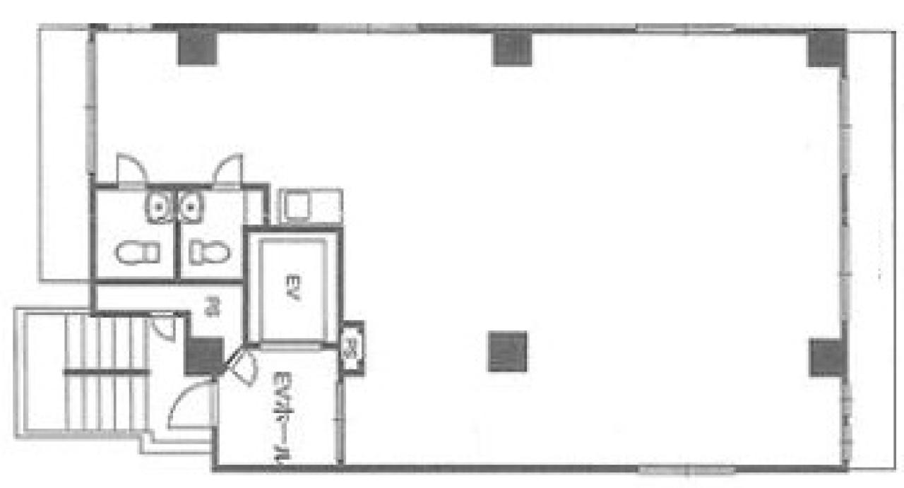
間取り図
-
近隣相場情報
千歳2丁目(20~30坪)の相場
調査中
周辺地図
跳豊ビルは、墨田区千歳にある地上6階建ての賃貸事務所です。最寄駅はJR中央・総武線の両国駅から徒歩7分、都営大江戸線の森下駅から徒歩7分です。1991年8月竣工の鉄筋コンクリート造です。設備としては、エレベーターが1基あります。トイレは室内男女別です。空調は個別空調です。耐震設計となっている、ビジネス街として人気のある墨田区千歳の賃貸オフィスです。
全フロア情報
更新日:2025年10月28日
| 階 | 面積 | 賃料 | 共益費 | 敷金 | 入居日 | お問合せ | お気に入り | |
|---|---|---|---|---|---|---|---|---|
| 2F |
28.52 坪 94.28 ㎡ |
※現在空室情報はございません |
※現在空室情報は 確認する |
|||||
| 3F |
28.52 坪 94.28 ㎡ |
※現在空室情報はございません |
※現在空室情報は 確認する |
|||||
お問い合わせ
似た条件の物件はこちら
-
西明ビル
東京都墨田区両国2-2-53
坪数:32.00 坪
坪単価:10,500 円(坪)
-
スズキビル
東京都墨田区亀沢4-16-7
坪数:34.31 坪
坪単価:7,287 円(坪)
-
WAJ錦糸町ビル
東京都墨田区江東橋4-15-8
坪数:36.21 坪
坪単価:14,637 円(坪)
-
メゾンドール錦糸町
東京都墨田区錦糸1-5-17
坪数:18.69 坪
坪単価:11,022 円(坪)
-
山口ビル
東京都墨田区亀沢3-18-9
坪数:26.89 坪
坪単価:10,785 円(坪)
-
そのだビル
東京都墨田区太平1-11-6
坪数:23.91 坪
坪単価:6,274 円(坪)
-
シティポート両国
東京都墨田区緑1-14-6
坪数:33.96 坪
坪単価:7,951 円(坪)
-
TANAKAビル
東京都墨田区千歳1-6-1
坪数:18.53 坪
坪単価:9,174 円(坪)
-
東京ニットファッション工業組合
東京都墨田区両国4-37-2
坪数:29.46 坪
坪単価:6,500 円(坪)
-
西村工機ビル
東京都墨田区両国4-38-9
坪数:20.48 坪
坪単価:7,227 円(坪)