渋谷高橋ビル(物件No:73334608)
渋谷高橋ビルは、渋谷区東にある地下1階、地上4階建ての賃貸オフィスです。最寄駅はJR線の渋谷駅から徒歩10分です。1991年5月竣工の鉄筋コンクリート造です。設備としては、トイレは室内男女共用です。空調は個別空調です。天高は2400mmです。耐震設計となっている、コンビニや飲食店などの周辺施設が充実した渋谷区東の賃貸事務所です。
| 階 | 面積 | 賃料 | 共益費 | 敷金 | 入居日 | お問合せ | お気に入り |
|---|---|---|---|---|---|---|---|
| 2F |
21.9 坪 72.4 ㎡ |
300,000 円 13,699 円(坪) |
無 |
900,000 円 3 ヶ月 |
相談 |
|
|
| 階 | 面積 | 賃料 | 共益費 | 敷金 | 入居日 | お問合せ | お気に入り |
|---|---|---|---|---|---|---|---|
| 2F |
21.9 坪 72.4 ㎡ |
300,000 円 13,699 円(坪) |
無 |
900,000 円 3 ヶ月 |
相談 |
|
|
-
物件情報
- 住所
- 東京都渋谷区東1-11-3
- 最寄り駅
-
JR線
渋谷駅
徒歩10分
- 竣工
- 1991年
- 耐震
- 新耐震基準
- 規模・構造
- B1F - 4F 鉄筋コンクリート造
-
設備情報
- トイレ
- 室内男女共用
- 床
- -
- 空調
- 個別空調
- セキュリティ
- -
- 駐車場
- 無
- 会議室
- -
- エレベーター
- -
- 天井高
- 2400mm
-
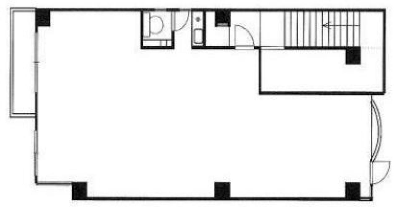
間取り図
-
近隣相場情報
東1丁目(20~30坪)の相場
21525 円 (坪)
※ビルサク調べ
周辺施設情報
| コンビニ |
セブンイレブン/渋谷3丁目明治通り/350m(徒歩4分) ローソン/渋谷東一丁目/200m(徒歩3分) |
|---|---|
| 郵便局/銀行 |
ローソン銀行/広尾高校前共同出張所/[営業時間]24時間 サービス提供時間は、設置先の営業時間に準じます(設置している店舗等の営業時間により、一部時間帯でご利用いただけない場合があります) [取扱]本人確認サービス対応、ATMチャージ/ATM払戻サービス、スマホATM(QR入出金)、海外発行カード/海外送金、視覚障害者対応 [備考]当/700m(徒歩9分) 横浜銀行/渋谷支店/[営業時間] [窓口]平日 9:00~15:00 土曜日 ? 日・祝日 ? [ATM]平日 8:30~19:00 土曜日 ? 日・祝日 ? [駐車場]無/200m(徒歩3分) |
| 飲食店 |
珈琲館 渋谷店/8時00分~20時00分/650m(徒歩9分) 代官山 comecafe Osamu bar/11時30分~14時30分、18時00分~0時00分/800m(徒歩11分) |
| カフェ |
ペルズ コーヒーアンドバー/11時00分~23時30分/850m(徒歩11分) cafe 1886 at Bosch/8時30分~19時00分/450m(徒歩6分) |
| コインパーキング |
コインパーク/渋谷東1丁目第2 [料金] 【月~土】■通常料金【0:00~24:00】20分300円 【月~土】■最大料金【駐車後12時間以内(1回限り)】2500円 19:00~8:00】400円 [最大料金] 【日・祝】■通常料金【0:00~24:00】20分300円 【日・祝】■最大料金【駐車後12時間以内(1回限り)】1400円 19:00~8:00】400円 [台数] [車: 3台] タイムズ/渋谷東1丁目第4 [料金] [月~金]通常料金 0:00~0:00 15分 300円 [土・日・祝]通常料金 0:00~0:00 15分 300円 [最大料金] [月~金]最大料金(繰り返し適用)駐車後5時間 最大料金2400円 [土・日・祝]最大料金(繰り返し適用)駐車後5時間 最大料金1400円 [台数]19台 |
周辺地図
渋谷高橋ビルは、渋谷区東にある地下1階、地上4階建ての賃貸オフィスです。最寄駅はJR線の渋谷駅から徒歩10分です。1991年5月竣工の鉄筋コンクリート造です。設備としては、トイレは室内男女共用です。空調は個別空調です。天高は2400mmです。耐震設計となっている、コンビニや飲食店などの周辺施設が充実した渋谷区東の賃貸事務所です。
全フロア情報
更新日:2026年2月12日
| 階 | 面積 | 賃料 | 共益費 | 敷金 | 入居日 | お問合せ | お気に入り |
|---|---|---|---|---|---|---|---|
| 2F |
21.9 坪 72.4 ㎡ |
300,000 円 13,699 円(坪) |
無 |
900,000 円 3 ヶ月 |
相談 |
|
|
お問い合わせ
似た条件の物件はこちら
-
ビラ・ビアンカ
東京都渋谷区神宮前2-33-12
坪数:20.39 坪
坪単価:16,184 円(坪)
-
渋谷3丁目ビル
東京都渋谷区渋谷3-18-4
坪数:17.43 坪
坪単価:26,000 円(坪)
-
第一暁ビルディング
東京都渋谷区道玄坂1-19-9
坪数:24.14 坪
坪単価:20,713 円(坪)
-
三貴ビル
東京都渋谷区渋谷2-12-12
坪数:18.7 坪
坪単価:22,000 円(坪)
-
倉島渋谷ビル
東京都渋谷区渋谷2-3-8
坪数:24.63 坪
坪単価:18,000 円(坪)
-
若草ビルB館
東京都渋谷区渋谷1-1-16
坪数:20.35 坪
坪単価:18,000 円(坪)
-
アクシーズ7号館ビル
東京都渋谷区渋谷3-17-4
坪数:18 坪
坪単価:20,000 円(坪)
-
越一ビル
東京都渋谷区神宮前6-19-16
坪数:19 坪
坪単価:22,000 円(坪)
-
若葉ビル
東京都渋谷区道玄坂1-22-10
坪数:16.1 坪
坪単価:15,300 円(坪)
-
ナルセビルディング
東京都渋谷区渋谷3-18-7
坪数:18.5 坪
坪単価:27,500 円(坪)