Dタワー西新宿(物件No:73251554)
Dタワー西新宿は、新宿区西新宿にある地下2階、地上29階建ての賃貸事務所です。最寄駅は東京メトロ丸ノ内線の西新宿駅から徒歩4分、都営大江戸線の都庁前駅から徒歩5分、JR線の新宿駅から徒歩12分です。2020年3月竣工の鉄骨鉄筋コンクリート造です。設備としては、エレベーターが6基あり、駐車場もあります。セキュリティは機械警備です。トイレは室外男女別です。空調は個別空調です。床仕様はフリーアクセスです。耐震設計となっている、複数路線利用可能なアクセスの良い新宿区西新宿の賃貸オフィスです。
階 | 面積 | 賃料 | 共益費 | 敷金 | 入居日 | お問合せ | お気に入り |
---|---|---|---|---|---|---|---|
4F
(B区画) |
58.21 坪 192.43 ㎡ |
相談 |
込 |
12ヶ月 |
即日 |
|
|
階 | 面積 | 賃料 | 共益費 | 敷金 | 入居日 | お問合せ | お気に入り |
---|---|---|---|---|---|---|---|
4F
(B区画) |
58.21 坪 192.43 ㎡ |
相談 |
込 |
12ヶ月 |
即日 |
|
|
-
物件情報
-
設備情報
- トイレ
- 室外男女別
- 床
- フリーアクセス
- 空調
- 個別空調
- セキュリティ
- 有
- 駐車場
- 有
- 会議室
- -
- エレベーター
- 6基
- 天井高
- 2850mm
-
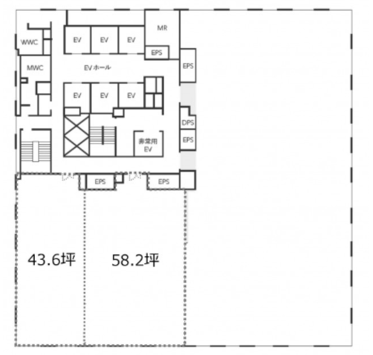
間取り図
-
近隣相場情報
西新宿6丁目(50~100坪)の相場
26550 円 (坪)
※ビルサク調べ
周辺地図
Dタワー西新宿は、新宿区西新宿にある地下2階、地上29階建ての賃貸事務所です。最寄駅は東京メトロ丸ノ内線の西新宿駅から徒歩4分、都営大江戸線の都庁前駅から徒歩5分、JR線の新宿駅から徒歩12分です。2020年3月竣工の鉄骨鉄筋コンクリート造です。設備としては、エレベーターが6基あり、駐車場もあります。セキュリティは機械警備です。トイレは室外男女別です。空調は個別空調です。床仕様はフリーアクセスです。耐震設計となっている、複数路線利用可能なアクセスの良い新宿区西新宿の賃貸オフィスです。
全フロア情報
更新日:2025年10月16日
階 | 面積 | 賃料 | 共益費 | 敷金 | 入居日 | お問合せ | お気に入り | |
---|---|---|---|---|---|---|---|---|
3F |
307.44 坪 1016.33 ㎡ |
※現在空室情報はございません |
※現在空室情報は 確認する |
|||||
3F
(1区画) |
100 坪 330.58 ㎡ |
※現在空室情報はございません |
※現在空室情報は 確認する |
|||||
3F
(2区画) |
200 坪 661.16 ㎡ |
※現在空室情報はございません |
※現在空室情報は 確認する |
|||||
4F |
307.44 坪 1016.33 ㎡ |
※現在空室情報はございません |
※現在空室情報は 確認する |
|||||
4F
(A区画) |
43.69 坪 144.43 ㎡ |
※現在空室情報はございません |
※現在空室情報は 確認する |
|||||
4F
(AB区画) |
101.91 坪 336.89 ㎡ |
※現在空室情報はございません |
※現在空室情報は 確認する |
|||||
4F
(B区画) |
58.21 坪 192.43 ㎡ |
相談 |
込 |
12ヶ月 |
即日 |
|
|
|
5F |
307.44 坪 1016.33 ㎡ |
※現在空室情報はございません |
※現在空室情報は 確認する |
|||||
6F |
307.44 坪 1016.33 ㎡ |
※現在空室情報はございません |
※現在空室情報は 確認する |
|||||
6F
(AB区画) |
101.91 坪 336.89 ㎡ |
相談 |
込 |
12ヶ月 |
2026/05/01 |
|
|
|
7F |
307.44 坪 1016.33 ㎡ |
※現在空室情報はございません |
※現在空室情報は 確認する |
|||||
8F |
307.44 坪 1016.33 ㎡ |
※現在空室情報はございません |
※現在空室情報は 確認する |
|||||
9F |
307.44 坪 1016.33 ㎡ |
※現在空室情報はございません |
※現在空室情報は 確認する |
|||||
10F |
307.44 坪 1016.33 ㎡ |
※現在空室情報はございません |
※現在空室情報は 確認する |
|||||
10F
(1区画) |
43.69 坪 144.43 ㎡ |
※現在空室情報はございません |
※現在空室情報は 確認する |
|||||
10F
(2区画) |
58.21 坪 192.43 ㎡ |
※現在空室情報はございません |
※現在空室情報は 確認する |
|||||
10F
(3区画) |
25.31 坪 83.67 ㎡ |
※現在空室情報はございません |
※現在空室情報は 確認する |
|||||
10F
(4区画) |
58.75 坪 194.21 ㎡ |
※現在空室情報はございません |
※現在空室情報は 確認する |
|||||
10F
(5区画) |
38.77 坪 128.17 ㎡ |
※現在空室情報はございません |
※現在空室情報は 確認する |
|||||
10F
(6区画) |
34.37 坪 113.62 ㎡ |
※現在空室情報はございません |
※現在空室情報は 確認する |
|||||
10F
(7区画) |
48.08 坪 158.94 ㎡ |
※現在空室情報はございません |
※現在空室情報は 確認する |
|||||
11F |
307.44 坪 1016.33 ㎡ |
※現在空室情報はございません |
※現在空室情報は 確認する |
|||||
11F
(1区画) |
102.17 坪 337.75 ㎡ |
相談 |
込 |
12カ月 |
相談 |
|
|
|
11F
(A区画) |
44 坪 145.45 ㎡ |
※現在空室情報はございません |
※現在空室情報は 確認する |
|||||
11F
(B区画) |
123.59 坪 408.56 ㎡ |
※現在空室情報はございません |
※現在空室情報は 確認する |
|||||
11F
(BC区画) |
205.26 坪 678.54 ㎡ |
※現在空室情報はございません |
※現在空室情報は 確認する |
|||||
11F
(C区画) |
81.67 坪 269.98 ㎡ |
※現在空室情報はございません |
※現在空室情報は 確認する |
|||||
11F
(D区画) |
58.79 坪 194.35 ㎡ |
※現在空室情報はございません |
※現在空室情報は 確認する |
|||||
11F
(E区画) |
38.67 坪 127.83 ㎡ |
※現在空室情報はございません |
※現在空室情報は 確認する |
|||||
11F
(F区画) |
34.6 坪 114.38 ㎡ |
※現在空室情報はございません |
※現在空室情報は 確認する |
|||||
11F
(G区画) |
47.81 坪 158.05 ㎡ |
※現在空室情報はございません |
※現在空室情報は 確認する |
|||||
12F |
307.44 坪 1016.33 ㎡ |
※現在空室情報はございません |
※現在空室情報は 確認する |
|||||
12F
(1区画) |
102.17 坪 337.75 ㎡ |
※現在空室情報はございません |
※現在空室情報は 確認する |
|||||
12F
(B区画) |
123.59 坪 408.56 ㎡ |
※現在空室情報はございません |
※現在空室情報は 確認する |
|||||
12F
(C区画) |
81.67 坪 269.98 ㎡ |
※現在空室情報はございません |
※現在空室情報は 確認する |
|||||
13F |
307.44 坪 1016.33 ㎡ |
※現在空室情報はございません |
※現在空室情報は 確認する |
|||||
13F
(1区画) |
102.17 坪 337.75 ㎡ |
※現在空室情報はございません |
※現在空室情報は 確認する |
|||||
14F |
307.44 坪 1016.33 ㎡ |
※現在空室情報はございません |
※現在空室情報は 確認する |
|||||
15F |
307.44 坪 1016.33 ㎡ |
※現在空室情報はございません |
※現在空室情報は 確認する |
|||||
16F |
307.44 坪 1016.33 ㎡ |
※現在空室情報はございません |
※現在空室情報は 確認する |
|||||
17F |
307.44 坪 1016.33 ㎡ |
※現在空室情報はございません |
※現在空室情報は 確認する |
|||||
18F |
307.44 坪 1016.33 ㎡ |
※現在空室情報はございません |
※現在空室情報は 確認する |
お問い合わせ
似た条件の物件はこちら
-
サンサーラ第三御苑
東京都新宿区新宿1-12-1
坪数:43.63 坪
坪単価:13,000 円(坪)
-
西新宿ハイホーム
東京都新宿区西新宿4-16-2
坪数:44.58 坪
坪単価:13,000 円(坪)
-
大盛ビル
東京都新宿区西新宿4-2-3
坪数:45.98 坪
坪単価:10,874 円(坪)
-
斉藤ビル
東京都新宿区西新宿7-5-3
坪数:70.16 坪
坪単価:15,000 円(坪)
-
エルグランジュテ新宿
東京都新宿区歌舞伎町2-45-6
坪数:68.3 坪
坪単価:24,451 円(坪)
-
西新宿ユニオンビル
東京都新宿区西新宿1-18-6
坪数:46.98 坪
坪単価:22,209 円(坪)
-
西新宿MKビル
東京都新宿区西新宿4-16-13
坪数:58.13 坪
坪単価:15,000 円(坪)
-
アソルティ西新宿
東京都新宿区西新宿7-3-4
坪数:60.33 坪
坪単価:30,000 円(坪)
-
新宿セントランドビル
東京都新宿区西新宿3-5-1
坪数:72.12 坪
坪単価:16,499 円(坪)
-
SKビル
東京都新宿区西新宿6-2-18
坪数:53.09 坪
坪単価:17,000 円(坪)