コスモビル(物件No:72522684)
コスモビルは、台東区東上野にある貸事務所物件です。最寄り駅は、JR線の上野駅、御徒町駅、鶯谷駅、東京メトロ日比谷線の上野駅、仲御徒町駅、東京メトロ銀座線の上野広小路駅、稲荷町駅、都営大江戸線の新御徒町駅です。1992年竣工の賃貸オフィスビルです。床はタイルカーペットとなっています。空調は個別空調です。エレベーターは1基あります。複数路線利用可能な、アクセスの良い台東区東上野の貸事務所です。
-
物件情報
-
設備情報
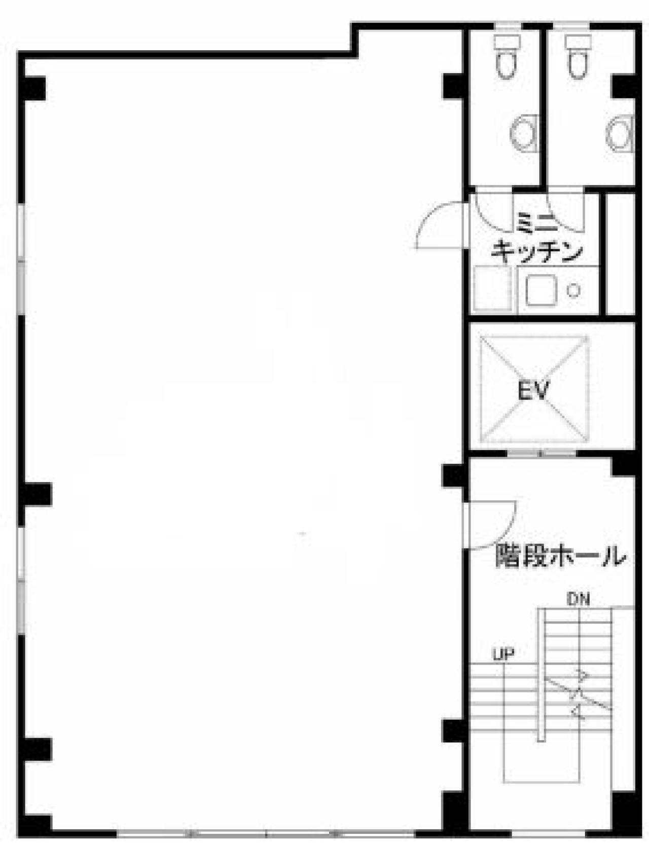
- トイレ
- 室内男女別
- 床
- タイルカーペット
- 空調
- 個別空調
- セキュリティ
- -
- 駐車場
- -
- 会議室
- -
- エレベーター
- 1基
- 天井高
- -
-
間取り図
-
近隣相場情報
東上野4丁目(20坪以下)の相場
12379 円 (坪)
※ビルサク調べ
周辺施設情報
| コンビニ |
NewDays/神田南口/450m(徒歩6分) セブンイレブン/小伝馬町駅前/550m(徒歩8分) |
|---|---|
| 郵便局/銀行 |
トマト銀行/東京支店/[営業時間] [窓口]平日:9:00~15:00/350m(徒歩4分) 八十二銀行/東京営業部/[営業時間] [窓口]平日 9:00~15:00 土 - 日祝 - [ATM]平日 8:00~21:00 土 9:00~19:00 日祝 9:00~19:00 [備考]1.【新型コロナ対策】平日11:30~12:30はお昼休みのため、窓口を休業いたします。2.土・日・祝日および12/31~1/3は窓/450m(徒歩6分) |
| 飲食店 |
もつ焼き大衆酒場 つみき神田駅前店/11時30分~21時00分/400m(徒歩5分) VINOSITY神田本店/11時30分~20時00分/210m(徒歩3分) |
| カフェ |
猿田彦珈琲/誠品生活日本橋店/[営業時間]3月22日時点の営業時間 11:00~19:00/ [通常営業時間]10:00~21:00/450m(徒歩6分) 星乃珈琲店/神田店/[営業時間]平日 7:00~22:00(LO 21:30)土 8:00~22:00(LO 21:30)日祝日 8:00~19:30(LO 19:00)モーニング Open~11:00 ランチ(平日)11:00~14:00 [備考]禁煙(喫煙ブースあり)/450m(徒歩6分) |
| コインパーキング |
タイムズ/岩本町第10 [料金] [月~土]通常料金 / 0:00~0:00 15分 330円 [日・祝]通常料金 / 0:00~0:00 15分 330円 [最大料金] [月~土]8:00~20:00 最大料金3960円 20:00~8:00 最大料金440円 [日・祝]8:00~20:00 最大料金1320円 20:00~8:00 最大料金440円 [台数]3 大栄パーク/神田紺屋町 [料金] 全日08:00~20:00 30分/400円 全日20:00~08:00 60分/100円 [最大料金] 最大入庫後12時間(月~土)3000円 最大入庫後12時間(日・祝)900円 最大夜間300円 [台数]3 台 |
周辺地図
コスモビルは、台東区東上野にある貸事務所物件です。最寄り駅は、JR線の上野駅、御徒町駅、鶯谷駅、東京メトロ日比谷線の上野駅、仲御徒町駅、東京メトロ銀座線の上野広小路駅、稲荷町駅、都営大江戸線の新御徒町駅です。1992年竣工の賃貸オフィスビルです。床はタイルカーペットとなっています。空調は個別空調です。エレベーターは1基あります。複数路線利用可能な、アクセスの良い台東区東上野の貸事務所です。
全フロア情報
更新日:2026年3月6日
| 階 | 面積 | 賃料 | 共益費 | 敷金 | 入居日 | お問合せ | お気に入り | |
|---|---|---|---|---|---|---|---|---|
| 2F |
19.97 坪 66.02 ㎡ |
223,000 円 11,167 円(坪) |
20,000 円 1,002 円(坪) |
446,000 円 2 ヶ月 |
相談 |
|
|
|
| 4F |
19.97 坪 66.02 ㎡ |
※現在空室情報はございません |
※現在空室情報は 確認する |
|||||
| 5F |
16.75 坪 55.37 ㎡ |
※現在空室情報はございません |
※現在空室情報は 確認する |
|||||
お問い合わせ
似た条件の物件はこちら
-
タウンハイツ上野
東京都台東区上野3-4-6
坪数:15.03 坪
坪単価:17,964 円(坪)
-
冨田ビル
東京都台東区東上野1-7-2
坪数:15.05 坪
坪単価:14,618 円(坪)
-
東宝第三ビル
東京都台東区東上野2-19-9
坪数:23.93 坪
坪単価:11,430 円(坪)
-
FUJIYAビル
東京都台東区東上野3-14-9
坪数:17.2 坪
坪単価:11,000 円(坪)
-
グランデュール秋葉原
東京都台東区台東1-24-12
坪数:15.69 坪
坪単価:18,164 円(坪)
-
木村屋ビル
東京都台東区台東2-19-10
坪数:21.86 坪
坪単価:7,333 円(坪)
-
メグミビル
東京都台東区上野3-6-4
坪数:21.98 坪
坪単価:12,000 円(坪)
-
御徒町グリーンプラザ
東京都台東区台東4-6-5
坪数:15.01 坪
坪単価:11,341 円(坪)
-
ヴァッソンシノバズ
東京都台東区池之端2-1-42
坪数:18.88 坪
坪単価:9,874 円(坪)
-
宮島ビル
東京都台東区東上野3-15-3
坪数:20.94 坪
坪単価:15,000 円(坪)