大黒ビル(物件No:72326612)
大黒ビルは、台東区北上野にある貸事務所物件です。最寄り駅は、JR線の上野駅、鶯谷駅、巣鴨駅、東京メトロ日比谷線の入谷駅、東京メトロ銀座線の稲荷町駅です。1980年竣工の賃貸オフィスビルです。トイレは室内にあります。エレベーターは1基あります。複数路線利用可能な、アクセスの良い台東区北上野の貸事務所です。
| 階 | 面積 | 賃料 | 共益費 | 敷金 | 入居日 | お問合せ | お気に入り |
|---|---|---|---|---|---|---|---|
| 3F |
20.58 坪 68.03 ㎡ |
235,000 円 11,419 円(坪) |
10,000 円 486 円(坪) |
470,000 円 2 ヶ月 |
2025/12 |
|
|
| 階 | 面積 | 賃料 | 共益費 | 敷金 | 入居日 | お問合せ | お気に入り |
|---|---|---|---|---|---|---|---|
| 3F |
20.58 坪 68.03 ㎡ |
235,000 円 11,419 円(坪) |
10,000 円 486 円(坪) |
470,000 円 2 ヶ月 |
2025/12 |
|
|
-
物件情報
-
設備情報
- トイレ
- 室内男女共用
- 床
- -
- 空調
- -
- セキュリティ
- -
- 駐車場
- 無
- 会議室
- -
- エレベーター
- 1基
- 天井高
- -
-
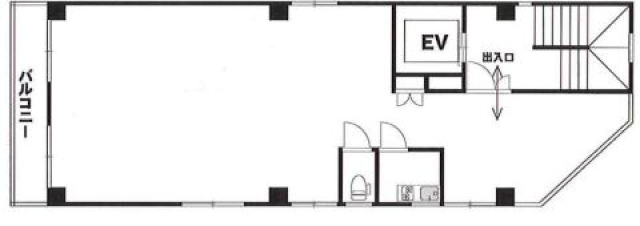
間取り図
-
近隣相場情報
北上野2丁目(20~30坪)の相場
11905 円 (坪)
※ビルサク調べ
周辺地図
大黒ビルは、台東区北上野にある貸事務所物件です。最寄り駅は、JR線の上野駅、鶯谷駅、巣鴨駅、東京メトロ日比谷線の入谷駅、東京メトロ銀座線の稲荷町駅です。1980年竣工の賃貸オフィスビルです。トイレは室内にあります。エレベーターは1基あります。複数路線利用可能な、アクセスの良い台東区北上野の貸事務所です。
全フロア情報
更新日:2025年12月8日
| 階 | 面積 | 賃料 | 共益費 | 敷金 | 入居日 | お問合せ | お気に入り | |
|---|---|---|---|---|---|---|---|---|
| 3F |
20.58 坪 68.03 ㎡ |
235,000 円 11,419 円(坪) |
10,000 円 486 円(坪) |
470,000 円 2 ヶ月 |
2025/12 |
|
|
|
| 4F |
20.58 坪 68.03 ㎡ |
※現在空室情報はございません |
※現在空室情報は 確認する |
|||||
| 5F |
14.99 坪 49.55 ㎡ |
※現在空室情報はございません |
※現在空室情報は 確認する |
|||||
お問い合わせ
似た条件の物件はこちら
-
タウンハイツ上野
東京都台東区上野3-4-6
坪数:15.03 坪
坪単価:17,964 円(坪)
-
松本マンション
東京都台東区台東4-27-5
坪数:15 坪
坪単価:10,000 円(坪)
-
冨田ビル
東京都台東区東上野1-7-2
坪数:15.05 坪
坪単価:14,618 円(坪)
-
FUJIYAビル
東京都台東区東上野3-14-9
坪数:17.2 坪
坪単価:11,000 円(坪)
-
明和センチュリー21
東京都台東区台東4-29-13
坪数:16 坪
坪単価:12,500 円(坪)
-
サイコービル
東京都台東区上野5-17-5
坪数:18.72 坪
坪単価:14,690 円(坪)
-
木村屋ビル
東京都台東区台東2-19-10
坪数:21.86 坪
坪単価:7,333 円(坪)
-
上野TKSビル
東京都台東区上野2-11-12
坪数:16.43 坪
坪単価:16,489 円(坪)
-
メグミビル
東京都台東区上野3-6-4
坪数:21.98 坪
坪単価:12,000 円(坪)
-
御徒町グリーンプラザ
東京都台東区台東4-6-5
坪数:15.01 坪
坪単価:11,341 円(坪)