メゾン旭(物件No:72239208)
メゾン旭は、豊島区池袋にある貸事務所物件です。最寄り駅は、JR線、東武東上線、東京メトロ副都心線、東京メトロ丸ノ内線、東京メトロ有楽町線の池袋駅、東京メトロ副都心線、東京メトロ有楽町線の要町駅です。1969年竣工の賃貸オフィスビルです。床はタイルカーペットとなっております。空調は個別空調です。有人警備で、エレベーターは1基あります。複数路線利用可能な、アクセスの良い豊島区池袋の貸事務所です。
| 階 | 面積 | 賃料 | 共益費 | 敷金 | 入居日 | お問合せ | お気に入り | |
|---|---|---|---|---|---|---|---|---|
|
13F
(1303区画) |
15.62 坪 51.64 ㎡ |
※現在空室情報はございません |
※現在空室情報は 確認する |
|||||
| 階 | 面積 | 賃料 | 共益費 | 敷金 | 入居日 | お問合せ | お気に入り | |
|---|---|---|---|---|---|---|---|---|
|
13F
(1303区画) |
15.62 坪 51.64 ㎡ |
※現在空室情報はございません |
※現在空室情報は 確認する |
|||||
-
物件情報
-
設備情報
- トイレ
- 室内男女共用
- 床
- タイルカーペット
- 空調
- 個別空調
- セキュリティ
- -
- 駐車場
- -
- 会議室
- -
- エレベーター
- 1基
- 天井高
- -
-
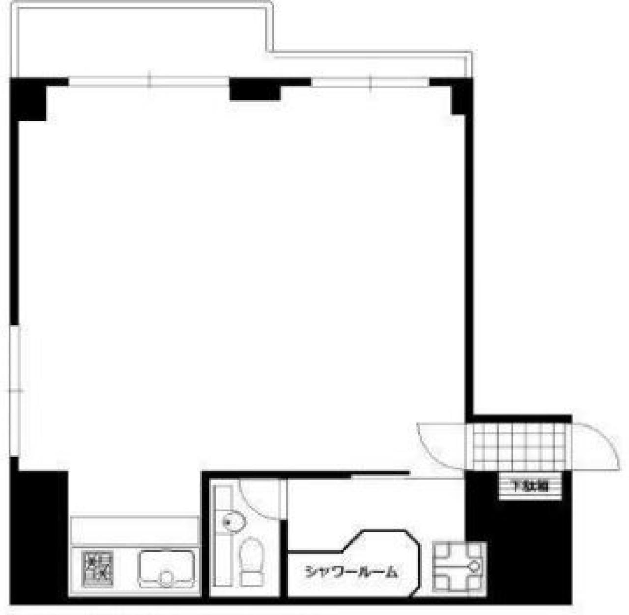
間取り図
-
近隣相場情報
池袋2丁目(20坪以下)の相場
15406 円 (坪)
※ビルサク調べ
周辺施設情報
| コンビニ |
ファミリーマート/立教通り店/400m(徒歩5分) ローソン/ナチュラル エソラ池袋/750m(徒歩10分) |
|---|---|
| 郵便局/銀行 |
三菱UFJ銀行/ATM 立教大学池袋キャンパス/[営業時間] [ATM]平日 8:45~18:00 土曜日 9:00~17:00 日・祝日 -/250m(徒歩3分) 新生銀行/SBIマネープラザ池袋/600m(徒歩8分) |
| 飲食店 |
横濱炸鶏排 池袋店/150m(徒歩2分) もり山/17時00分~23時00分/240m(徒歩3分) |
| カフェ |
アルパカ茶屋 Alpaca Tea House/11時00分~1時00分/150m(徒歩2分) ポルカドッツ/12時00分~19時00分/450m(徒歩6分) |
| コインパーキング |
ユアー・パーキング/池袋第8 [料金] 【全日】08時~22時 30分300円 【全日】22時~08時 60分100円 [最大料金] 昼間最大(08時~22時の間)2,200円 夜間最大(22時~08時の間)400円 [台数]2 三井のリパーク/池袋2丁目第14 [料金] 全日 08:00~00:00 10分/200円 全日 00:00~08:00 60分/100円 [最大料金] 【全日】0:00~8:00以内 最大料金600円 【全日】最大料金入庫後12時間以内2500円 [台数]5 |
周辺地図
メゾン旭は、豊島区池袋にある貸事務所物件です。最寄り駅は、JR線、東武東上線、東京メトロ副都心線、東京メトロ丸ノ内線、東京メトロ有楽町線の池袋駅、東京メトロ副都心線、東京メトロ有楽町線の要町駅です。1969年竣工の賃貸オフィスビルです。床はタイルカーペットとなっております。空調は個別空調です。有人警備で、エレベーターは1基あります。複数路線利用可能な、アクセスの良い豊島区池袋の貸事務所です。
全フロア情報
更新日:2026年2月13日
| 階 | 面積 | 賃料 | 共益費 | 敷金 | 入居日 | お問合せ | お気に入り | |
|---|---|---|---|---|---|---|---|---|
|
4F
(402区画) |
34.16 坪 112.94 ㎡ |
※現在空室情報はございません |
※現在空室情報は 確認する |
|||||
|
7F
(702区画) |
20.08 坪 66.38 ㎡ |
※現在空室情報はございません |
※現在空室情報は 確認する |
|||||
| 11F |
22.88 坪 75.64 ㎡ |
※現在空室情報はございません |
※現在空室情報は 確認する |
|||||
|
12F
(1202区画) |
20.08 坪 66.38 ㎡ |
210,000 円 10,458 円(坪) |
10,000 円 498 円(坪) |
840,000 円 4 ヶ月 |
即日 |
|
|
|
|
13F
(1区画) |
15.62 坪 51.64 ㎡ |
210,000 円 13,444 円(坪) |
10,000 円 640 円(坪) |
420,000 円 2 ヶ月 |
即日 |
|
|
|
|
13F
(1303区画) |
15.62 坪 51.64 ㎡ |
※現在空室情報はございません |
※現在空室情報は 確認する |
|||||
|
14F
(1402区画) |
19.52 坪 64.54 ㎡ |
※現在空室情報はございません |
※現在空室情報は 確認する |
|||||
お問い合わせ
似た条件の物件はこちら
-
TAMA WOODY GATE IKEBUKURO
東京都豊島区東池袋2-62-10
坪数:16.02 坪
坪単価:18,727 円(坪)
-
ニュー池袋ハイツ
東京都豊島区東池袋1-33-4
坪数:12.36 坪
坪単価:20,631 円(坪)
-
メゾンサンシャイン
東京都豊島区東池袋3-1-4
坪数:19.27 坪
坪単価:10,379 円(坪)
-
COSMY-Ⅱ
東京都豊島区池袋2-39-5
坪数:16.99 坪
坪単価:13,537 円(坪)
-
サンライズ南池袋
東京都豊島区南池袋3-16-10
坪数:16.48 坪
坪単価:15,777 円(坪)
-
第二尾形ビル
東京都豊島区東池袋2-49-9
坪数:18 坪
坪単価:9,167 円(坪)
-
相馬屋
東京都豊島区西池袋3-25-8
坪数:13.82 坪
坪単価:58,000 円(坪)
-
ライベストコート池袋Ⅱ
東京都豊島区千早1-36-6
坪数:10.59 坪
坪単価:16,053 円(坪)
-
グランドメゾン池袋一番館
東京都豊島区池袋2-60-6
坪数:15.32 坪
坪単価:11,097 円(坪)
-
カドラービル
東京都豊島区南池袋1-1-11
坪数:14.04 坪
坪単価:10,000 円(坪)