いろいろ聞いてみる

高島の賃貸オフィス

ヨコハマジャスト2号館(物件No:72047604)

ヨコハマジャスト1号館は、神奈川県横浜市西区高島にある地下2階、地上8階建ての賃貸事務所です。最寄駅は京急本線の横浜駅から徒歩3分、JR京浜東北線の横浜駅から徒歩3分です。1986年竣工の基準階面積は260.76の、鉄骨鉄筋コンクリート造です。設備としては、エレベーターが2基あり、駐車場もあります。セキュリティは機械警備です。耐震設計となっている、最寄駅から近くて便利な神奈川県横浜市西区高島の賃貸オフィスです。

  • ヨコハマジャスト2号館
  • ヨコハマジャスト2号館
  • ヨコハマジャスト2号館
  • ヨコハマジャスト2号館
面積 賃料 共益費 敷金 入居日 お問合せ お気に入り
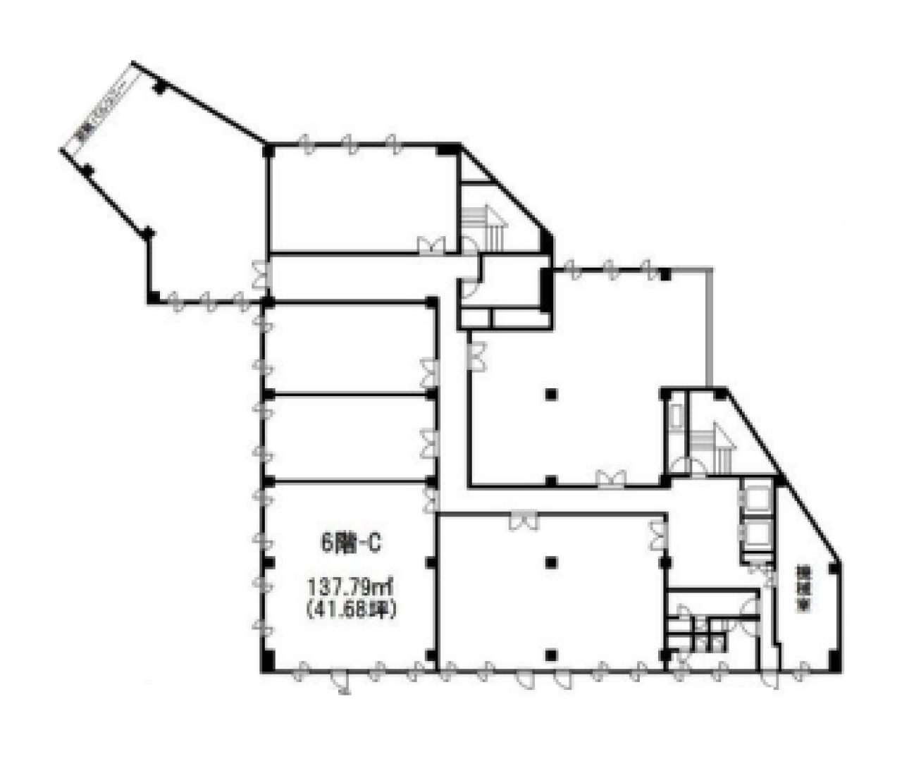
6F

(C区画)

41.68 坪

137.79 ㎡

※現在空室情報はございません

※現在空室情報は
ございません

最新情報を
確認する
  • 物件情報

    住所
    神奈川県横浜市西区高島2-14-12
    最寄り駅
    京急本線 横浜駅 徒歩3分
    JR京浜東北線 横浜駅 徒歩3分
    竣工
    1995年
    耐震
    新耐震基準
    規模・構造
    B1F - 9F  鉄骨造
  • 設備情報

    トイレ
    室外男女別
    -
    空調
    -
    セキュリティ
    駐車場
    会議室
    -
    エレベーター
    1基
    天井高
    -
  • 間取り図

    間取り図

  • 近隣相場情報

    高島2丁目(40~50坪)の相場

    調査中

周辺地図

ヨコハマジャスト1号館は、神奈川県横浜市西区高島にある地下2階、地上8階建ての賃貸事務所です。最寄駅は京急本線の横浜駅から徒歩3分、JR京浜東北線の横浜駅から徒歩3分です。1986年竣工の基準階面積は260.76の、鉄骨鉄筋コンクリート造です。設備としては、エレベーターが2基あり、駐車場もあります。セキュリティは機械警備です。耐震設計となっている、最寄駅から近くて便利な神奈川県横浜市西区高島の賃貸オフィスです。

全フロア情報

更新日:2024年10月9日

面積 賃料 共益費 敷金 入居日 お問合せ お気に入り
3F

(A区画)

37.88 坪

125.22 ㎡

※現在空室情報はございません

※現在空室情報は
ございません

最新情報を
確認する
4F

(A区画)

39.95 坪

132.07 ㎡

※現在空室情報はございません

※現在空室情報は
ございません

最新情報を
確認する
5F

(A区画)

39.95 坪

132.07 ㎡

※現在空室情報はございません

※現在空室情報は
ございません

最新情報を
確認する
5F

(B区画)

41.69 坪

137.82 ㎡

※現在空室情報はございません

※現在空室情報は
ございません

最新情報を
確認する
6F

(C区画)

41.68 坪

137.79 ㎡

※現在空室情報はございません

※現在空室情報は
ございません

最新情報を
確認する
9F

(B区画)

41.69 坪

137.82 ㎡

※現在空室情報はございません

※現在空室情報は
ございません

最新情報を
確認する

お問い合わせ

必須
必須
必須
必須
必須

お問い合わせ

物件に関してのお問い合わせ

「失敗しないオフィス移転サポート」物件探しから移転までスムーズで担当者様がとにかく楽になるサービスです。

050-7587-0049平日 9:00~18:00

メールでお問い合わせ

フリーワード検索