高芳ビル(物件No:71889140)
高芳ビルは千代田区内神田にある地下1階、地上8階建ての賃貸事務所です。最寄駅はJR中央線快速の神田駅から徒歩2分、東京メトロ丸ノ内線の淡路町駅から徒歩7分、都営新宿線の小川町駅から徒歩7分です。1990年9月竣工の鉄骨造です。設備としては、エレベーターが1基あります。駐車場もあります。空調は個別空調です。耐震設計となっている、最寄駅から近くて便利な千代田区内神田の賃貸オフィスです。
-
物件情報
-
設備情報
- トイレ
- -
- 床
- -
- 空調
- 個別空調
- セキュリティ
- -
- 駐車場
- 無
- 会議室
- -
- エレベーター
- 1基
- 天井高
- -
-
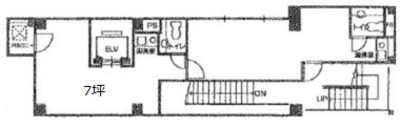
間取り図
-
近隣相場情報
内神田2丁目(20坪以下)の相場
13908 円 (坪)
※ビルサク調べ
周辺施設情報
| コンビニ |
ファミリーマート/神田西口店/150m(徒歩2分) まいばすけっと/神田駅北口店/200m(徒歩3分) |
|---|---|
| 郵便局/銀行 |
ビューアルッテ/JR神田駅東口/[営業時間]全日/4:35~25:00※毎月第二土曜日23:00~翌日8:00はご利用になれません。※駅や店舗の営業時間により、ATM営業時間が変更となる場合があります [取扱]お引出し・残高照会のみ/250m(徒歩3分) みずほ銀行/ATM 銀座線神田駅出張所/[営業時間] [ATM]平日 5:00~24:00 土曜日 5:00~22:00 日曜日 8:00~21:00 祝日・振替休日 曜日に準ずる 備考 *月曜日の5:00~7:00はご利用いただけません/300m(徒歩4分) |
| 飲食店 |
目利きの番長/15時00分~20時00分/ 和食の故郷 神田本店/ |
| カフェ |
珈琲館/神田店/[営業時間]※最新の営業時間についてはHP参照 [通常営業時間]平日 7:30~22:00 / 土日祝 8:00~22:00 [休業日]なし [駐車場]無 [備考]53席/完全禁煙/Free Wi-Fi有/Wi-Fi環境(au)/130m(徒歩2分) 神田珈琲園 神田北口店/7時00分~20時00分/180m(徒歩2分) |
| コインパーキング |
PARKS PARK/PARKS PARK 千代田区内神田3丁目 [料金] 【全日】 8:00~22:00 400円 / 15分 【全日】 22:00~8:00 100円 / 60分 [最大料金] 【24時間最大料金】 日曜日・祝日 1500円 (繰り返し可) 【当日最大料金】 月曜~土曜日(祝日除く) 4時間最大 3400円 (繰り返し可) [営業時間]24時間営業 タイムズ/内神田第10 [料金] [全日]8:00~22:00 15分 440円 [全日]22:00~8:00 60分 110円 [最大料金] [全日]駐車後12時間 最大料金4600円 [台数]11 |
周辺地図
高芳ビルは千代田区内神田にある地下1階、地上8階建ての賃貸事務所です。最寄駅はJR中央線快速の神田駅から徒歩2分、東京メトロ丸ノ内線の淡路町駅から徒歩7分、都営新宿線の小川町駅から徒歩7分です。1990年9月竣工の鉄骨造です。設備としては、エレベーターが1基あります。駐車場もあります。空調は個別空調です。耐震設計となっている、最寄駅から近くて便利な千代田区内神田の賃貸オフィスです。
全フロア情報
更新日:2021年5月25日
| 階 | 面積 | 賃料 | 共益費 | 敷金 | 入居日 | お問合せ | お気に入り | |
|---|---|---|---|---|---|---|---|---|
| 1F |
13.30 坪 43.97 ㎡ |
※現在空室情報はございません |
※現在空室情報は 確認する |
|||||
| 2F |
7.00 坪 23.14 ㎡ |
※現在空室情報はございません |
※現在空室情報は 確認する |
|||||
| 6F |
19.00 坪 62.80 ㎡ |
※現在空室情報はございません |
※現在空室情報は 確認する |
|||||
お問い合わせ
似た条件の物件はこちら
-
大手町ゲートビルディング
東京都千代田区内神田1-31-11
坪数:11.65 坪
坪単価:77,253 円(坪)
-
NS岩本町ビル
東京都千代田区岩本町1-4-5
坪数:9.26 坪
坪単価:12,000 円(坪)
-
大貫ビル
東京都千代田区鍛冶町2-9-7
坪数:9.00 坪
坪単価:10,000 円(坪)
-
第2スヂノビル
東京都千代田区神田佐久間町3-21-48
坪数:12 坪
坪単価:12,000 円(坪)
-
赤塚ビル
東京都千代田区外神田3-1-9
坪数:9.20 坪
坪単価:13,043 円(坪)
-
たちばなやビル
東京都千代田区神田小川町3-5-2
坪数:10 坪
坪単価:22,000 円(坪)
-
斎田ビル
東京都千代田区神田佐久間町4-6
坪数:8.5 坪
坪単価:13,000 円(坪)
-
神トラビル
東京都千代田区内神田1-12-3
坪数:10.64 坪
坪単価:16,000 円(坪)
-
神田クレストビル
東京都千代田区神田淡路町1-1
坪数:11.87 坪
坪単価:13,000 円(坪)
-
トライエム大手町
東京都千代田区内神田1-5-1
坪数:7.1 坪
坪単価:16,901 円(坪)
関連エリアから探す
- 内神田
- 神田淡路町
- 神田小川町
- 神田鍛冶町
- 神田須田町
- 神田駿河台
- 神田多町
- 神田司町
- 神田錦町
- 神田美土代町
- 岩本町
- 鍛冶町
- 神田岩本町
- 神田北乗物町
- 神田紺屋町
- 神田富山町
- 神田西福田町
- 神田東松下町
- 神田東紺屋町
- 神田美倉町
- 東神田
- 神田相生町
- 神田和泉町
- 神田佐久間町
- 神田佐久間河岸
- 神田練塀町
- 神田花岡町
- 神田松永町
- 外神田
- 神田平河町