三田日東ダイビル(物件No:71887165)
三田日東ダイビルは、港区三田にある貸事務所物件です。最寄り駅は都営都営浅草線泉岳寺駅、東京メトロ南北線白金高輪駅、JR田町駅です。1986年竣工で基準階が283.00坪の賃貸オフィスビルです。床はOAフロアで、天井の高さは2500mm。トイレは男女別で、空調はセントラル空調です。エレベーターは3基あります。複数路線利用可能で交通アクセスの良い、港区三田の貸事務所です。
-
物件情報
-
設備情報
- トイレ
- 男女別
- 床
- フリーアクセス
- 空調
- セントラル空調
- セキュリティ
- 有
- 駐車場
- 有
- 会議室
- -
- エレベーター
- 3基
- 天井高
- 2500mm
-
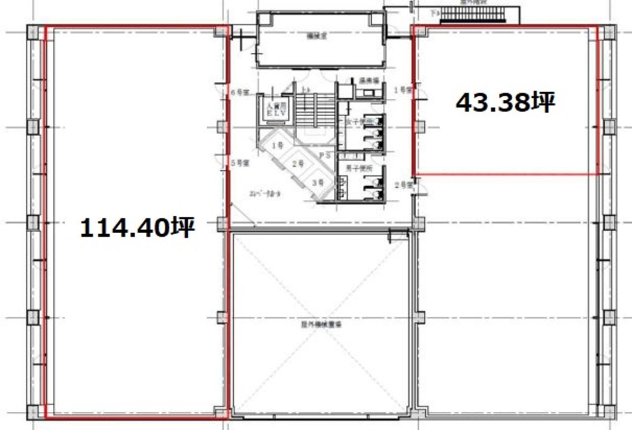
間取り図
-
近隣相場情報
三田3丁目(100坪以上)の相場
30000 円 (坪)
※ビルサク調べ
周辺施設情報
| コンビニ |
ファミリーマート/泉岳寺北店/38m(徒歩1分) ローソン/H三田三丁目/190m(徒歩2分) |
|---|---|
| 郵便局/銀行 |
郵便局/高輪/[駐車場]あり(3台) [取扱]貯金/保険/ゆうゆう/ATM/160m(徒歩2分) セブン銀行/港区三田3丁目店/[営業時間]24時間営業 [ATM台数]1/750m(徒歩9分) |
| 飲食店 |
タリーズコーヒー 泉岳寺駅前店/ 7時30分~20時00分/250m(徒歩3分) セガフレード・ザネッティ・エスプレッソ 泉岳寺店/ 7時00分~21時30分/240m(徒歩3分) |
| カフェ |
セガフレード/三田ベルジュ ロビー店/[営業時間]平 日 10:00 - 16:00 土・日・祝 休業 ※ラストオーダーは閉店時間の30分前となっております [備考]禁煙席 20席/500m(徒歩6分) ドトール/三田3丁目店/[営業時間]平 日:07:20 - 20:00 備 考:ラストオーダー 19:30 土曜日:08:00 - 18:30 備 考:ラストオーダー 18:00 日 祝:08:00 - 18:30 備 考:ラストオーダー 18:00 [休業日]なし /700m(徒歩8分) |
| コインパーキング |
三井のリパーク/アパホテル品川泉岳寺駅前駐車場 [料金] [料金]全日 08:00~20:00 30分/400円 [料金]全日 20:00~08:00 60分/100円 [最大料金] 最大料金 入庫後12時間以内1,600円 [台数]16 パークジャパン/高輪第2 [料金] [料金]月-土 オールタイム 600円/60分 20:00~8:00 最大料金500円 [料金]日祝 オールタイム 600円/60分 20:00~8:00 最大料金500円 [最大料金] [料金]月-土 最大料金500円 最大料金24時間1,700円 最大料金24時間1,500円(No.6,7,12,23車室限定) [料金]日祝 最大料金24時間1,400円 [台数]18台 |
周辺地図
三田日東ダイビルは、港区三田にある貸事務所物件です。最寄り駅は都営都営浅草線泉岳寺駅、東京メトロ南北線白金高輪駅、JR田町駅です。1986年竣工で基準階が283.00坪の賃貸オフィスビルです。床はOAフロアで、天井の高さは2500mm。トイレは男女別で、空調はセントラル空調です。エレベーターは3基あります。複数路線利用可能で交通アクセスの良い、港区三田の貸事務所です。
全フロア情報
更新日:2024年4月24日
| 階 | 面積 | 賃料 | 共益費 | 敷金 | 入居日 | お問合せ | お気に入り | |
|---|---|---|---|---|---|---|---|---|
| 1F |
89.74 坪 296.66 ㎡ |
※現在空室情報はございません |
※現在空室情報は 確認する |
|||||
|
1F
(1区画) |
89.74 坪 296.66 ㎡ |
※現在空室情報はございません |
※現在空室情報は 確認する |
|||||
| 2F |
57.26 坪 189.29 ㎡ |
※現在空室情報はございません |
※現在空室情報は 確認する |
|||||
|
2F
(1区画) |
55.18 坪 182.41 ㎡ |
※現在空室情報はございません |
※現在空室情報は 確認する |
|||||
|
2F
(2区画) |
85.42 坪 282.38 ㎡ |
※現在空室情報はございません |
※現在空室情報は 確認する |
|||||
|
2F
(3区画) |
85.42 坪 282.38 ㎡ |
※現在空室情報はございません |
※現在空室情報は 確認する |
|||||
|
4F
(1区画) |
112.98 坪 373.49 ㎡ |
※現在空室情報はございません |
※現在空室情報は 確認する |
|||||
|
4F
(2区画) |
29.51 坪 97.55 ㎡ |
※現在空室情報はございません |
※現在空室情報は 確認する |
|||||
| 5F |
57.26 坪 189.29 ㎡ |
※現在空室情報はございません |
※現在空室情報は 確認する |
|||||
| 6F |
85.42 坪 282.38 ㎡ |
※現在空室情報はございません |
※現在空室情報は 確認する |
|||||
|
6F
(1区画) |
228.10 坪 754.05 ㎡ |
※現在空室情報はございません |
※現在空室情報は 確認する |
|||||
|
6F
(2区画) |
27.75 坪 91.74 ㎡ |
※現在空室情報はございません |
※現在空室情報は 確認する |
|||||
| 7F |
238.29 坪 787.73 ㎡ |
※現在空室情報はございません |
※現在空室情報は 確認する |
|||||
|
8F
(1区画) |
114.40 坪 378.18 ㎡ |
※現在空室情報はございません |
※現在空室情報は 確認する |
|||||
|
8F
(2区画) |
43.38 坪 143.40 ㎡ |
※現在空室情報はございません |
※現在空室情報は 確認する |
|||||
お問い合わせ
似た条件の物件はこちら
-
芝浦スクエア
東京都港区芝浦4-9-25
坪数:138.31 坪
坪単価:15,000 円(坪)
-
THE PORTAL MITA
東京都港区三田3-2-8
坪数:104.69 坪
坪単価:30,000 円(坪)
-
グランファースト芝大門
東京都港区芝大門1-3-4
坪数:110.55 坪
坪単価:30,000 円(坪)
-
機械振興会館
東京都港区芝公園3-5-8
坪数:112.03 坪
坪単価:15,000 円(坪)
-
北海芝ビル
東京都港区芝2-31-15
坪数:137.68 坪
坪単価:13,000 円(坪)
-
大東芝浦ビル
東京都港区海岸3-7-19
坪数:113 坪
坪単価:9,500 円(坪)
-
+SHIFT MITA
東京都港区芝5-3-2
坪数:99.97 坪
坪単価:29,000 円(坪)
-
三田三好ビル
東京都港区三田3-9-7
坪数:87.31 坪
坪単価:17,000 円(坪)
-
五色橋ビル
東京都港区海岸3-5-13
坪数:98.68 坪
坪単価:12,000 円(坪)