三田日東ダイビル(物件No:71887165)
三田日東ダイビルは、港区三田にある貸事務所物件です。最寄り駅は都営都営浅草線泉岳寺駅、東京メトロ南北線白金高輪駅、JR田町駅です。1986年竣工で基準階が283.00坪の賃貸オフィスビルです。床はOAフロアで、天井の高さは2500mm。トイレは男女別で、空調はセントラル空調です。エレベーターは3基あります。複数路線利用可能で交通アクセスの良い、港区三田の貸事務所です。
-
物件情報
-
設備情報
- トイレ
- -
- 床
- フリーアクセス
- 空調
- セントラル空調
- セキュリティ
- 有
- 駐車場
- 有
- 会議室
- -
- エレベーター
- 3基
- 天井高
- 2500mm
-
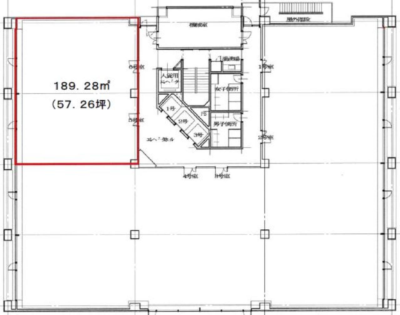
間取り図
-
近隣相場情報
三田3丁目(50~100坪)の相場
17000 円 (坪)
※ビルサク調べ
周辺施設情報
| コンビニ |
ファミリーマート/泉岳寺北店/38m(徒歩1分) ローソン/H三田三丁目/190m(徒歩2分) |
|---|---|
| 郵便局/銀行 |
郵便局/高輪/[駐車場]あり(3台) [取扱]貯金/保険/ゆうゆう/ATM/160m(徒歩2分) セブン銀行/港区三田3丁目店/[営業時間]24時間営業 [ATM台数]1/750m(徒歩9分) |
| 飲食店 |
タリーズコーヒー 泉岳寺駅前店/ 7時30分~20時00分/250m(徒歩3分) セガフレード・ザネッティ・エスプレッソ 泉岳寺店/ 7時00分~21時30分/240m(徒歩3分) |
| カフェ |
セガフレード/三田ベルジュ ロビー店/[営業時間]平 日 10:00 - 16:00 土・日・祝 休業 ※ラストオーダーは閉店時間の30分前となっております [備考]禁煙席 20席/500m(徒歩6分) ドトール/三田3丁目店/[営業時間]平 日:07:20 - 20:00 備 考:ラストオーダー 19:30 土曜日:08:00 - 18:30 備 考:ラストオーダー 18:00 日 祝:08:00 - 18:30 備 考:ラストオーダー 18:00 [休業日]なし /700m(徒歩8分) |
| コインパーキング |
三井のリパーク/アパホテル品川泉岳寺駅前駐車場 [料金] [料金]全日 08:00~20:00 30分/400円 [料金]全日 20:00~08:00 60分/100円 [最大料金] 最大料金 入庫後12時間以内1,600円 [台数]16 パークジャパン/高輪第2 [料金] [料金]月-土 オールタイム 600円/60分 20:00~8:00 最大料金500円 [料金]日祝 オールタイム 600円/60分 20:00~8:00 最大料金500円 [最大料金] [料金]月-土 最大料金500円 最大料金24時間1,700円 最大料金24時間1,500円(No.6,7,12,23車室限定) [料金]日祝 最大料金24時間1,400円 [台数]18台 |
周辺地図
三田日東ダイビルは、港区三田にある貸事務所物件です。最寄り駅は都営都営浅草線泉岳寺駅、東京メトロ南北線白金高輪駅、JR田町駅です。1986年竣工で基準階が283.00坪の賃貸オフィスビルです。床はOAフロアで、天井の高さは2500mm。トイレは男女別で、空調はセントラル空調です。エレベーターは3基あります。複数路線利用可能で交通アクセスの良い、港区三田の貸事務所です。
全フロア情報
更新日:2024年4月24日
| 階 | 面積 | 賃料 | 共益費 | 敷金 | 入居日 | お問合せ | お気に入り | |
|---|---|---|---|---|---|---|---|---|
| 1F |
89.74 坪 296.66 ㎡ |
※現在空室情報はございません |
※現在空室情報は 確認する |
|||||
|
1F
(1区画) |
89.74 坪 296.66 ㎡ |
※現在空室情報はございません |
※現在空室情報は 確認する |
|||||
| 2F |
57.26 坪 189.29 ㎡ |
※現在空室情報はございません |
※現在空室情報は 確認する |
|||||
|
2F
(1区画) |
55.18 坪 182.41 ㎡ |
※現在空室情報はございません |
※現在空室情報は 確認する |
|||||
|
2F
(2区画) |
85.42 坪 282.38 ㎡ |
※現在空室情報はございません |
※現在空室情報は 確認する |
|||||
|
2F
(3区画) |
85.42 坪 282.38 ㎡ |
※現在空室情報はございません |
※現在空室情報は 確認する |
|||||
|
4F
(1区画) |
112.98 坪 373.49 ㎡ |
※現在空室情報はございません |
※現在空室情報は 確認する |
|||||
|
4F
(2区画) |
29.51 坪 97.55 ㎡ |
※現在空室情報はございません |
※現在空室情報は 確認する |
|||||
| 5F |
57.26 坪 189.29 ㎡ |
※現在空室情報はございません |
※現在空室情報は 確認する |
|||||
| 6F |
85.42 坪 282.38 ㎡ |
※現在空室情報はございません |
※現在空室情報は 確認する |
|||||
|
6F
(1区画) |
228.10 坪 754.05 ㎡ |
※現在空室情報はございません |
※現在空室情報は 確認する |
|||||
|
6F
(2区画) |
27.75 坪 91.74 ㎡ |
※現在空室情報はございません |
※現在空室情報は 確認する |
|||||
| 7F |
238.29 坪 787.73 ㎡ |
※現在空室情報はございません |
※現在空室情報は 確認する |
|||||
|
8F
(1区画) |
114.40 坪 378.18 ㎡ |
※現在空室情報はございません |
※現在空室情報は 確認する |
|||||
|
8F
(2区画) |
43.38 坪 143.40 ㎡ |
※現在空室情報はございません |
※現在空室情報は 確認する |
|||||
お問い合わせ
似た条件の物件はこちら
-
トレードピアお台場
東京都港区台場2-3-1
坪数:55.82 坪
坪単価:24,006 円(坪)
-
岡家寿ビル
東京都港区芝浦1-7-14
坪数:62.95 坪
坪単価:13,000 円(坪)
-
専売ビル
東京都港区芝5-26-30
坪数:69.1 坪
坪単価:20,501 円(坪)
-
芝公園プラザビル
東京都港区芝3-6-9
坪数:50.88 坪
坪単価:18,000 円(坪)
-
シントクビル
東京都港区芝3-14-6
坪数:45.28 坪
坪単価:14,000 円(坪)
-
Bizflex浜松町
東京都港区浜松町2-12-11
坪数:44.06 坪
坪単価:36,314 円(坪)
-
オー・アイ・芝浦
東京都港区芝浦3-19-19
坪数:53.42 坪
坪単価:15,000 円(坪)
-
ARZ芝公園
東京都港区芝2-23-1
坪数:45.88 坪
坪単価:27,000 円(坪)
-
サンワード浜松町
東京都港区浜松町2-13-14
坪数:47.84 坪
坪単価:12,000 円(坪)
-
第四田町ビル
東京都港区芝浦2-17-12
坪数:62.66 坪
坪単価:25,000 円(坪)