広尾リープレックスビズ(物件No:71881106)
広尾リープレックスビズは、港区南麻布にある貸事務所物件です。最寄り駅は、東京メトロ日比谷線の広尾駅、六本木駅、都営大江戸線の六本木駅、麻布十番駅、東京メトロ南北線の麻布十番駅です。1987年竣工、2007年にリニューアル工事完了で、基準階が41.21坪の賃貸オフィスビルです。天高は2400mmとなっております。空調は個別空調で、トイレは室内にあり、男女別です。機械警備で、エレベーターは1基あります。複数路線利用可能な、アクセスの良い港区南麻布の貸事務所です。
-
物件情報
-
設備情報
- トイレ
- 室内男女別
- 床
- -
- 空調
- -
- セキュリティ
- 有
- 駐車場
- -
- 会議室
- -
- エレベーター
- 1基
- 天井高
- -
-
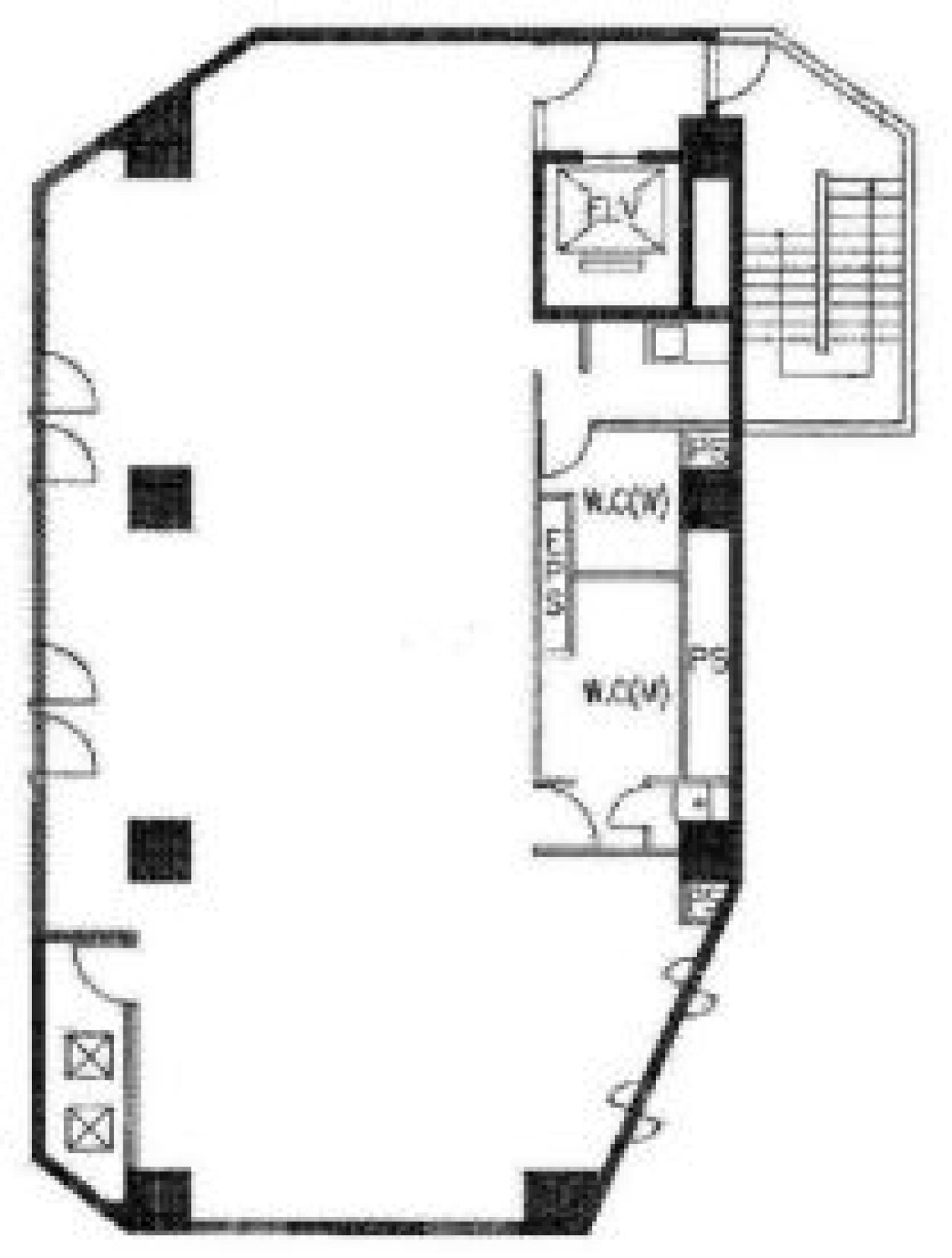
間取り図
-
近隣相場情報
南麻布5丁目(40~50坪)の相場
22000 円 (坪)
※ビルサク調べ
周辺施設情報
| コンビニ |
ファミリーマート/新橋日比谷通り店/350m(徒歩4分) ファミリーマート/新橋四丁目店/700m(徒歩9分) |
|---|---|
| 郵便局/銀行 |
三井住友銀行/ATM 新橋駅前出張所/[営業時間]平日 7:00~24:00 土曜 7:00~24:00 日曜 7:00~21:00/750m(徒歩10分) セブン銀行/日立ハイテクビル店/[営業時間]24時間営業ではありません [備考]1 台/450m(徒歩5分) |
| 飲食店 |
旬菜鮨処 やまきょう丸/11時00分~14時00分、17時00分~22時00分/92m(徒歩1分) 舞浜/11時30分~14時00分、17時00分~1時00分/550m(徒歩8分) |
| カフェ |
スターバックス/TSUTAYA 新橋店/[営業時間]7:00~23:00 [休業日]不定休 [備考]無線LAN:Softbank/550m(徒歩7分) ドトール/虎ノ門2丁目店/[営業時間]平日:7:30~20:30 土曜日:8:00~18:00 日 祝:8:30~18:00 [休業日]なし [備考]総席数:67 禁煙席:42 喫煙席:25/650m(徒歩9分) |
| コインパーキング |
タイムズ駐車場/西新橋3丁目第2 [料金] [月~金]通常料金 / 00:00-00:00 10分 400円 [土・日・祝]通常料金 / 00:00-00:00 10分 400円 [最大料金] [土・日・祝]当日1日最大料金2800円(24時迄) [台数]2 大栄パーク/新橋5丁目 [料金] 平日(月~土)08:00~24:00 20分/400円 日祝08:00~24:00 30分/300円 全日24:00~08:00 60分/100円 [最大料金] 全日夜間最大(繰り返し無)500円 [台数]6 台 |
周辺地図
広尾リープレックスビズは、港区南麻布にある貸事務所物件です。最寄り駅は、東京メトロ日比谷線の広尾駅、六本木駅、都営大江戸線の六本木駅、麻布十番駅、東京メトロ南北線の麻布十番駅です。1987年竣工、2007年にリニューアル工事完了で、基準階が41.21坪の賃貸オフィスビルです。天高は2400mmとなっております。空調は個別空調で、トイレは室内にあり、男女別です。機械警備で、エレベーターは1基あります。複数路線利用可能な、アクセスの良い港区南麻布の貸事務所です。
全フロア情報
更新日:2025年10月27日
| 階 | 面積 | 賃料 | 共益費 | 敷金 | 入居日 | お問合せ | お気に入り | |
|---|---|---|---|---|---|---|---|---|
| 3F |
61.08 坪 201.92 ㎡ |
※現在空室情報はございません |
※現在空室情報は 確認する |
|||||
| 5F |
41.21 坪 136.23 ㎡ |
※現在空室情報はございません |
※現在空室情報は 確認する |
|||||
| 6F |
41.21 坪 136.23 ㎡ |
※現在空室情報はございません |
※現在空室情報は 確認する |
|||||
| 8F |
41.21 坪 136.23 ㎡ |
※現在空室情報はございません |
※現在空室情報は 確認する |
|||||
| 9F |
41.21 坪 136.23 ㎡ |
※現在空室情報はございません |
※現在空室情報は 確認する |
|||||
お問い合わせ
似た条件の物件はこちら
-
サイビルディング
東京都港区西麻布3-1-22
坪数:34.87 坪
坪単価:20,935 円(坪)
-
南麻布TMDビル
東京都港区南麻布2-12-7
坪数:43.79 坪
坪単価:22,000 円(坪)
-
NS麻布十番ビル
東京都港区麻布十番3-6-2
坪数:35.01 坪
坪単価:22,000 円(坪)
-
井門西麻布ビル
東京都港区西麻布1-14-1
坪数:35.2 坪
坪単価:15,000 円(坪)
-
秀和六本木レジデンス
東京都港区六本木7-17-22
坪数:38.61 坪
坪単価:23,310 円(坪)
-
誠志堂ビル
東京都港区六本木7-14-10
坪数:40.7 坪
坪単価:27,200 円(坪)
-
ミクニ六本木ビル
東京都港区六本木7-8-8
坪数:36.23 坪
坪単価:23,000 円(坪)
-
ほうらいやビル
東京都港区六本木5-2-1
坪数:33 坪
坪単価:21,212 円(坪)
-
宮下ビル
東京都港区麻布十番1-7-8
坪数:50.52 坪
坪単価:11,876 円(坪)
-
福吉町ビル
東京都港区六本木2-2-6
坪数:45.76 坪
坪単価:14,113 円(坪)