新橋森ビル(物件No:71783134)
新橋森ビルは、港区新橋にある貸事務所物件です。最寄り駅は都営三田線御成門駅、各線新橋駅です。1989年竣工の賃貸オフィスビルです。床は2WAYで、天井の高さは2400mm。トイレは男女別で、空調は個別空調です。エレベーターは1基あり、セキュリティは機械警備となっています。新橋駅周辺はたくさんの店舗が立ち並んでいます。また複数路線利用可能で交通アクセスが良く利便性の高い、港区新橋の貸事務所です。
-
物件情報
-
設備情報
- トイレ
- 男女別
- 床
- 2WAY
- 空調
- 個別空調
- セキュリティ
- 有
- 駐車場
- 無
- 会議室
- -
- エレベーター
- 1基
- 天井高
- 2400mm
-
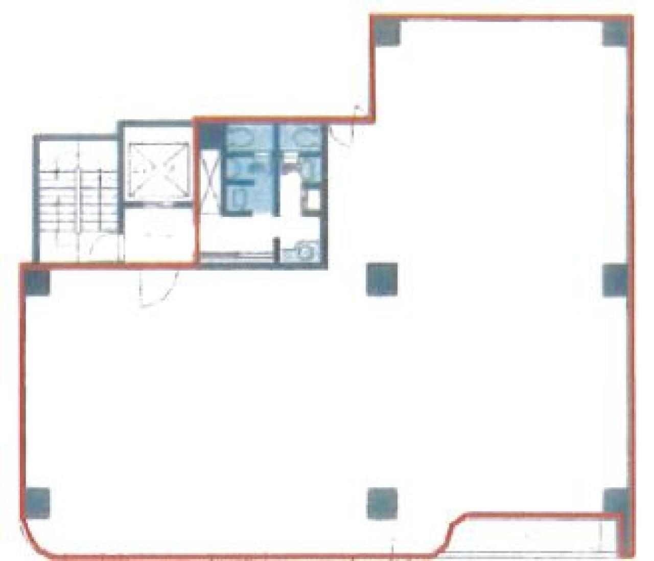
間取り図
-
近隣相場情報
新橋5丁目(50~100坪)の相場
23325 円 (坪)
※ビルサク調べ
周辺施設情報
| コンビニ |
セブンイレブン/新橋5丁目/100m(徒歩1分) ローソン/S慈恵医大/450m(徒歩6分) |
|---|---|
| 郵便局/銀行 |
香川銀行/東京支店/[営業時間](平日)09:00~15:00/600m(徒歩8分) 郵便局/ATM ファミリーマート汐留タワー店内出張所/[ATM]平日0:05~23:55、土曜0:05~23:55、日曜0:05~23:55/850m(徒歩12分) |
| 飲食店 |
串こまち 新橋店/17:30~23:30(L.O.22:30、ドリンクL.O.23:00) /350m(徒歩5分) 近江牛肉店 別館/17時00分~23時30分/350m(徒歩5分) |
| カフェ |
スターバックス/慈恵大学病院店/[営業時間]月~土:7:00~19:00 [休業日]日・祝/350m(徒歩5分) タリーズ/汐留シティセンター店/[営業時間]平日:7:00~22:00 土:10:00~19:00 日祝:10:00~18:00 [備考]Tully's Wi-Fi/800m(徒歩11分) |
| コインパーキング |
ナビパーク/新橋第1 [料金] 全曜日 24:00 ~ 24:00 15分 / 400円 [最大料金] 当日最大(日・祝) 1,000円 当日最大(月~土) 4,300円 夜間最大(全曜日) 19:00 ~ 8:00 500円 [台数]17台 うち月極・専用区画 0台 コインパーク/新橋5丁目第2 [料金] 【 月~土 】 ■通常料金 【00:00~24:00】15分/300円 【日祝】 ■通常料金 【00:00~24:00】15分/300円 [最大料金] 【 月~土 】 ■最大料金 【駐車後3h以内(1回限り)】2000円 【20:00~8:00】 500円 【日祝】 ■最大料金 【駐車後12h以内(1回限り)】2000円 【20:00~8:00】 500円 [台数][車: 2台] |
周辺地図
新橋森ビルは、港区新橋にある貸事務所物件です。最寄り駅は都営三田線御成門駅、各線新橋駅です。1989年竣工の賃貸オフィスビルです。床は2WAYで、天井の高さは2400mm。トイレは男女別で、空調は個別空調です。エレベーターは1基あり、セキュリティは機械警備となっています。新橋駅周辺はたくさんの店舗が立ち並んでいます。また複数路線利用可能で交通アクセスが良く利便性の高い、港区新橋の貸事務所です。
全フロア情報
更新日:2022年12月9日
| 階 | 面積 | 賃料 | 共益費 | 敷金 | 入居日 | お問合せ | お気に入り | |
|---|---|---|---|---|---|---|---|---|
| 1F |
44.77 坪 148.00 ㎡ |
※現在空室情報はございません |
※現在空室情報は 確認する |
|||||
| 2F |
55.44 坪 183.27 ㎡ |
※現在空室情報はございません |
※現在空室情報は 確認する |
|||||
| 3F |
55.44 坪 183.27 ㎡ |
※現在空室情報はございません |
※現在空室情報は 確認する |
|||||
| 4F |
55.44 坪 183.27 ㎡ |
※現在空室情報はございません |
※現在空室情報は 確認する |
|||||
| 5F |
55.44 坪 183.27 ㎡ |
※現在空室情報はございません |
※現在空室情報は 確認する |
|||||
お問い合わせ
似た条件の物件はこちら
-
長友ランディックビル
東京都港区新橋3-1-11
坪数:67.15 坪
坪単価:22,000 円(坪)
-
西新橋JKビル
東京都港区西新橋3-15-12
坪数:53.03 坪
坪単価:18,400 円(坪)
-
ASOOM新橋
東京都港区新橋5-23-7
坪数:45.4 坪
坪単価:32,000 円(坪)
-
東京建硝ビル
東京都港区西新橋3-19-14
坪数:66 坪
坪単価:13,500 円(坪)
-
明宏ビル別館
東京都港区新橋1-18-2
坪数:50.32 坪
坪単価:17,000 円(坪)
-
新橋フロンティアビルディング
東京都港区新橋3-4-5
坪数:52.92 坪
坪単価:22,000 円(坪)
-
片山ビル
東京都港区新橋5-23-10
坪数:42.17 坪
坪単価:16,000 円(坪)
-
虎ノ門ラポート
東京都港区虎ノ門1-16-6
坪数:46.16 坪
坪単価:18,000 円(坪)
-
河野ビル
東京都港区西新橋1-23-9
坪数:53.54 坪
坪単価:12,000 円(坪)
-
TRANS-神谷町ビル
東京都港区虎ノ門5-12-13
坪数:47.92 坪
坪単価:28,000 円(坪)