タクトT・Oビル(物件No:71783129)
タクトT・Oビルは豊島区東池袋にある地下1階、地上14階建ての賃貸事務所です。最寄駅はJR線の池袋駅から徒歩6分、東京メトロ丸ノ内線の池袋駅から徒歩6分です。1985年3月竣工の鉄骨鉄筋コンクリート造です。設備としては、エレベーターが1基あります。空調は個別空調です。耐震設計となっている、ビジネス街として人気のある豊島区東池袋の賃貸オフィスです。
| 階 | 面積 | 賃料 | 共益費 | 敷金 | 入居日 | お問合せ | お気に入り | |
|---|---|---|---|---|---|---|---|---|
|
3F
(303区画) |
25.55 坪 84.46 ㎡ |
※現在空室情報はございません |
※現在空室情報は 確認する |
|||||
-
物件情報
-
設備情報
- トイレ
- 室内男女共用
- 床
- -
- 空調
- 個別空調
- セキュリティ
- -
- 駐車場
- 無
- 会議室
- -
- エレベーター
- 2基
- 天井高
- -
-
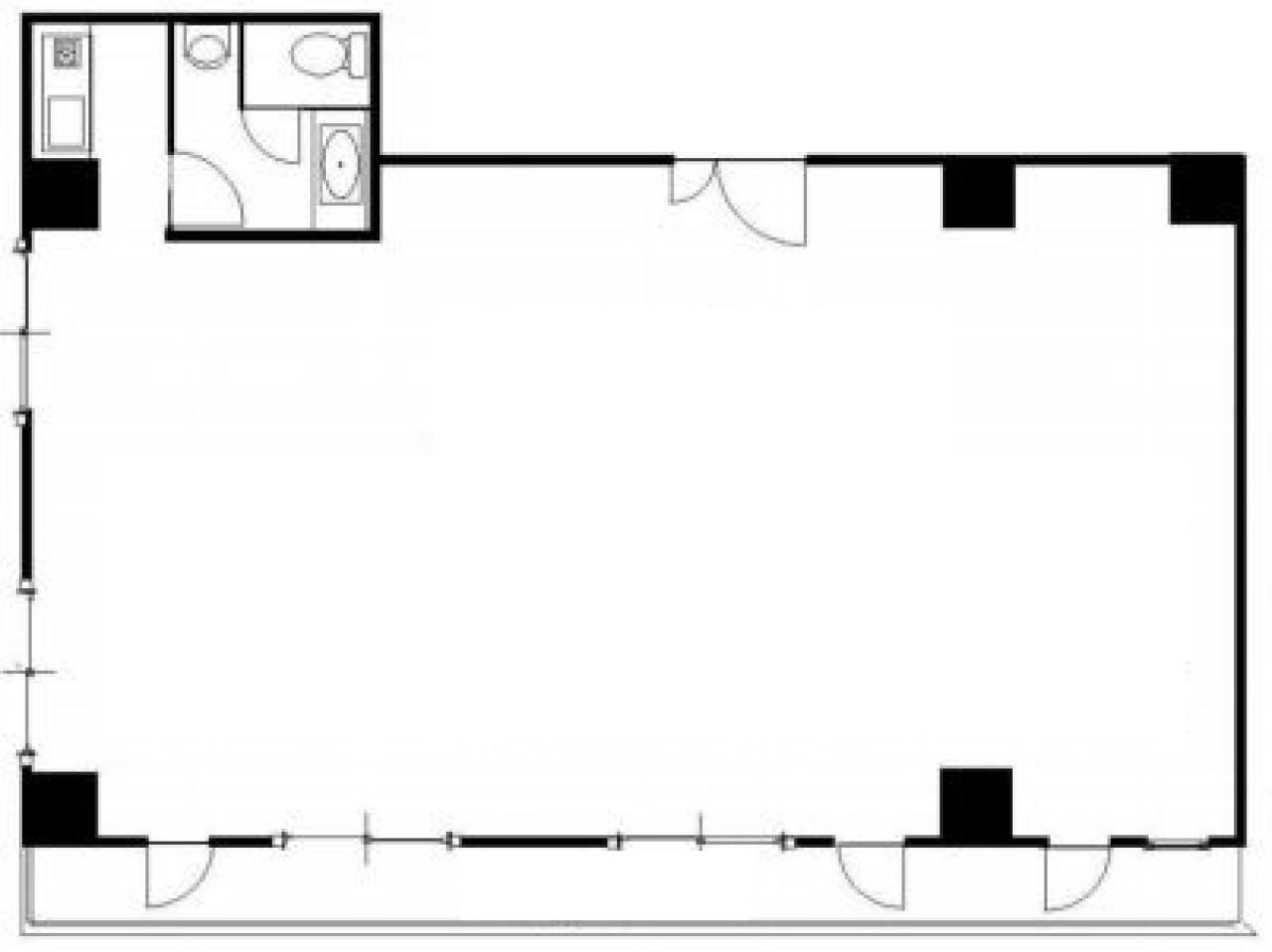
間取り図
-
近隣相場情報
東池袋1丁目(20~30坪)の相場
15320 円 (坪)
※ビルサク調べ
周辺施設情報
| コンビニ |
ファミリーマート/東池袋一丁目店/50m(徒歩1分) セブンイレブン/DR池袋東口ロイネット/500m(徒歩7分) |
|---|---|
| 郵便局/銀行 |
三井住友銀行/池袋東口支店/[営業時間] [窓口]平日 9:00~15:00 土曜 ※10:00~17:00 日曜 - [ATM]平日 0:00~24:00 土曜 0:00~24:00 日曜 0:00~21:00 [ローン契約機]平日 9:00~18:00 土曜 9:00~18:00 日曜 9:00~18:00/300m(徒歩4分) みずほ銀行/ATM サンシャインシティアルパB1出張所/[営業時間]平日 8:00~21:00 土曜日 8:00~21:00 日曜日 8:00~21:00 祝日・振替休日 曜日に準ずる 備考 *設置施設の休業日・休業時間帯は、一般のお客さまはご利用いただけません。 *通帳はご利用いただけません。/150m(徒歩2分) |
| 飲食店 |
鍋料理・サムギョプサル専門店 なっさむ/17時00分~23時30分/55m(徒歩1分) なか卯 池袋サンシャイン前店/24 時間営業/ |
| カフェ |
カフェノイズ/11時00分~22時00分/350m(徒歩4分) ラシーヌ ファーム トゥー パーク/8時00分~22時00分/300m(徒歩4分) |
| コインパーキング |
タイムズ/東池袋第3 [料金] [全日]8:00~0:00 15分 220円 [全日]0:00~8:00 30分 110円 [最大料金] [全日]最大料金(繰り返し適用)- [台数]5台 SANパーク/東池袋 3 [料金] オールタイム 15分400円 [最大料金] 【月~土】12時間最大2600円【日祝】当日最大2200円 【全日】夜間(22時~8時)最大500円 [台数]車:23台 |
周辺地図
タクトT・Oビルは豊島区東池袋にある地下1階、地上14階建ての賃貸事務所です。最寄駅はJR線の池袋駅から徒歩6分、東京メトロ丸ノ内線の池袋駅から徒歩6分です。1985年3月竣工の鉄骨鉄筋コンクリート造です。設備としては、エレベーターが1基あります。空調は個別空調です。耐震設計となっている、ビジネス街として人気のある豊島区東池袋の賃貸オフィスです。
全フロア情報
更新日:2025年11月4日
| 階 | 面積 | 賃料 | 共益費 | 敷金 | 入居日 | お問合せ | お気に入り | |
|---|---|---|---|---|---|---|---|---|
|
3F
(303区画) |
25.55 坪 84.46 ㎡ |
※現在空室情報はございません |
※現在空室情報は 確認する |
|||||
| 5F |
21.13 坪 69.85 ㎡ |
※現在空室情報はございません |
※現在空室情報は 確認する |
|||||
|
6F
(602区画) |
7.26 坪 24 ㎡ |
※現在空室情報はございません |
※現在空室情報は 確認する |
|||||
|
6F
(606区画) |
58.89 坪 194.68 ㎡ |
※現在空室情報はございません |
※現在空室情報は 確認する |
|||||
お問い合わせ
似た条件の物件はこちら
-
いちご東池袋ビル
東京都豊島区東池袋1-34-5
坪数:27.97 坪
坪単価:19,000 円(坪)
-
三仲ビル
東京都豊島区西池袋1-15-8
坪数:30 坪
坪単価:25,000 円(坪)
-
コスモス26上池袋
東京都豊島区上池袋1-25-2
坪数:27.47 坪
坪単価:18,493 円(坪)
-
明昌KSビル
東京都豊島区東池袋3-9-9
坪数:21.8 坪
坪単価:13,000 円(坪)
-
フェイマスショップビル
東京都豊島区長崎4-9-5
坪数:23.69 坪
坪単価:6,332 円(坪)
-
TAMA WOODY GATE IKEBUKURO
東京都豊島区東池袋2-62-10
坪数:16.02 坪
坪単価:18,727 円(坪)
-
SF千川
東京都豊島区千川1-1-13
坪数:17 坪
坪単価:9,412 円(坪)
-
メゾンサンシャイン
東京都豊島区東池袋3-1-4
坪数:19.27 坪
坪単価:10,379 円(坪)
-
エヌエスティービル
東京都豊島区千早4-41-9
坪数:28.48 坪
坪単価:10,358 円(坪)
-
新東京木材会館
東京都豊島区千早1-20-13
坪数:15.19 坪
坪単価:11,850 円(坪)