日鳶連会館ビル(物件No:71782114)
日鳶連会館ビルは、港区芝公園にある貸事務所物件です。最寄り駅は都営三田線御成門駅、大江戸線、浅草線大門駅、東京メトロ日比谷線神谷町駅です。1983年竣工の賃貸オフィスビルです。トイレは室外で、空調は個別空調です。エレベーターは1基あります。駐車場が利用可能です。複数路線利用可能で交通アクセスの良い、港区芝公園の貸事務所です。
-
物件情報
-
設備情報
- トイレ
- 室外
- 床
- -
- 空調
- 個別空調
- セキュリティ
- 無
- 駐車場
- 有
- 会議室
- -
- エレベーター
- 1基
- 天井高
- -
-
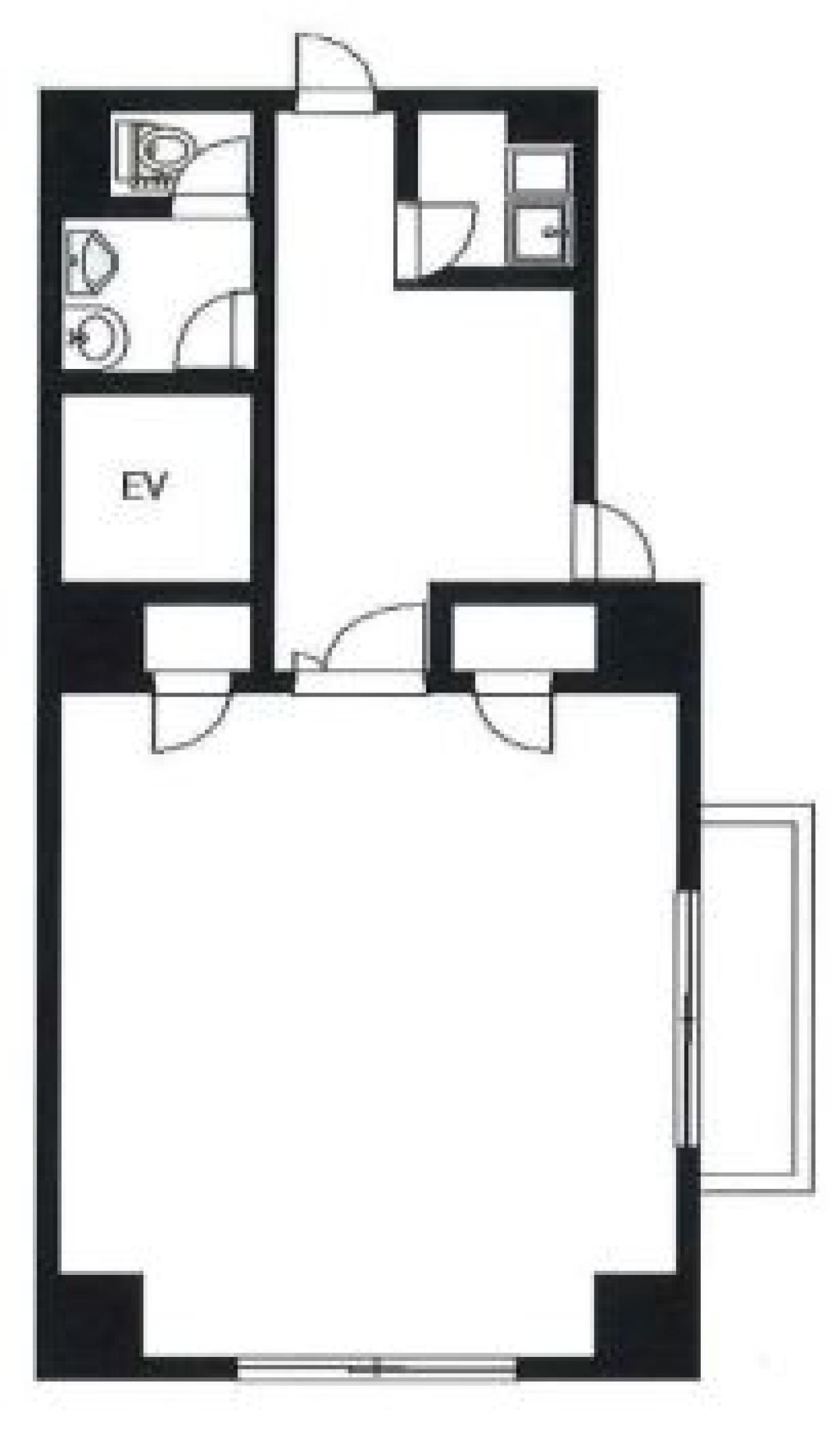
間取り図
-
近隣相場情報
芝公園3丁目(20~30坪)の相場
17454 円 (坪)
※ビルサク調べ
周辺施設情報
| コンビニ |
ローソン/芝公園四丁目/150m(徒歩2分) セブンイレブン/港区飯倉/290m(徒歩4分) |
|---|---|
| 郵便局/銀行 |
郵便局/機械振興会館内/平日 9:00~17:00 土曜日 お取り扱いしません 日曜日・休日 お取り扱いしません [ATM]平日 9:00-17:30 土曜 - 日曜・祝日 -/210m(徒歩3分) イオン銀行/ATM マルエツプチ東麻布店出張所/[営業時間]9:00~23:00/500m(徒歩6分) |
| 飲食店 |
TANGO/11時30分~23時30分/280m(徒歩3分) マリオンクレープ東京タワー店/9時00分~22時30分/400m(徒歩5分) |
| カフェ |
cafe&bakery MIYABI/7時00分~21時00分/500m(徒歩6分) マザー牧場cafe 東京タワー店/9時30分~22時15分/350m(徒歩5分) |
| コインパーキング |
三井のリパーク/麻布台1丁目第5 [料金] 全日 08:00~00:00 15分/400円 全日 00:00~08:00 60分/100円 [最大料金] 【全日】0:00~8:00以内 最大料金500円 【全日】8:00~0:00以内 最大料金3600円 [台数]6 タイムズ駐車場/東京タワーサイド第2 [料金] [全日]07:00-19:00 30分 500円 [全日]19:00-07:00 30分 100円 [最大料金] [全日]07:00-19:00 最大料金3000円 [全日]19:00-07:00 最大料金700円 [台数]7 |
周辺地図
日鳶連会館ビルは、港区芝公園にある貸事務所物件です。最寄り駅は都営三田線御成門駅、大江戸線、浅草線大門駅、東京メトロ日比谷線神谷町駅です。1983年竣工の賃貸オフィスビルです。トイレは室外で、空調は個別空調です。エレベーターは1基あります。駐車場が利用可能です。複数路線利用可能で交通アクセスの良い、港区芝公園の貸事務所です。
全フロア情報
更新日:2023年3月2日
| 階 | 面積 | 賃料 | 共益費 | 敷金 | 入居日 | お問合せ | お気に入り | |
|---|---|---|---|---|---|---|---|---|
| 5F |
24.03 坪 79.44 ㎡ |
※現在空室情報はございません |
※現在空室情報は 確認する |
|||||
お問い合わせ
似た条件の物件はこちら
-
三田レオマビル
東京都港区三田2-10-6
坪数:27.03 坪
坪単価:16,500 円(坪)
-
佐藤ビル
東京都港区浜松町1-19-4
坪数:27.79 坪
坪単価:11,000 円(坪)
-
芝松下ビル
東京都港区芝3-3-12
坪数:26.42 坪
坪単価:11,000 円(坪)
-
日建ビル
東京都港区海岸2-6-31
坪数:27.02 坪
坪単価:12,000 円(坪)
-
芝パークビル
東京都港区浜松町2-1-15
坪数:26 坪
坪単価:17,000 円(坪)
-
武藤ビル
東京都港区芝浦3-11-9
坪数:21.35 坪
坪単価:12,000 円(坪)
-
山口ビル
東京都港区芝公園1-7-7
坪数:22 坪
坪単価:11,364 円(坪)
-
EARTH SHIBA BLD
東京都港区芝2-10-6
坪数:22.47 坪
坪単価:29,000 円(坪)
-
奥山ビル
東京都港区芝5-20-10
坪数:23.74 坪
坪単価:12,637 円(坪)
-
TTD PLAZA
東京都港区三田1-2-18
坪数:19.97 坪
坪単価:16,024 円(坪)