芦澤ビル(物件No:71780152)
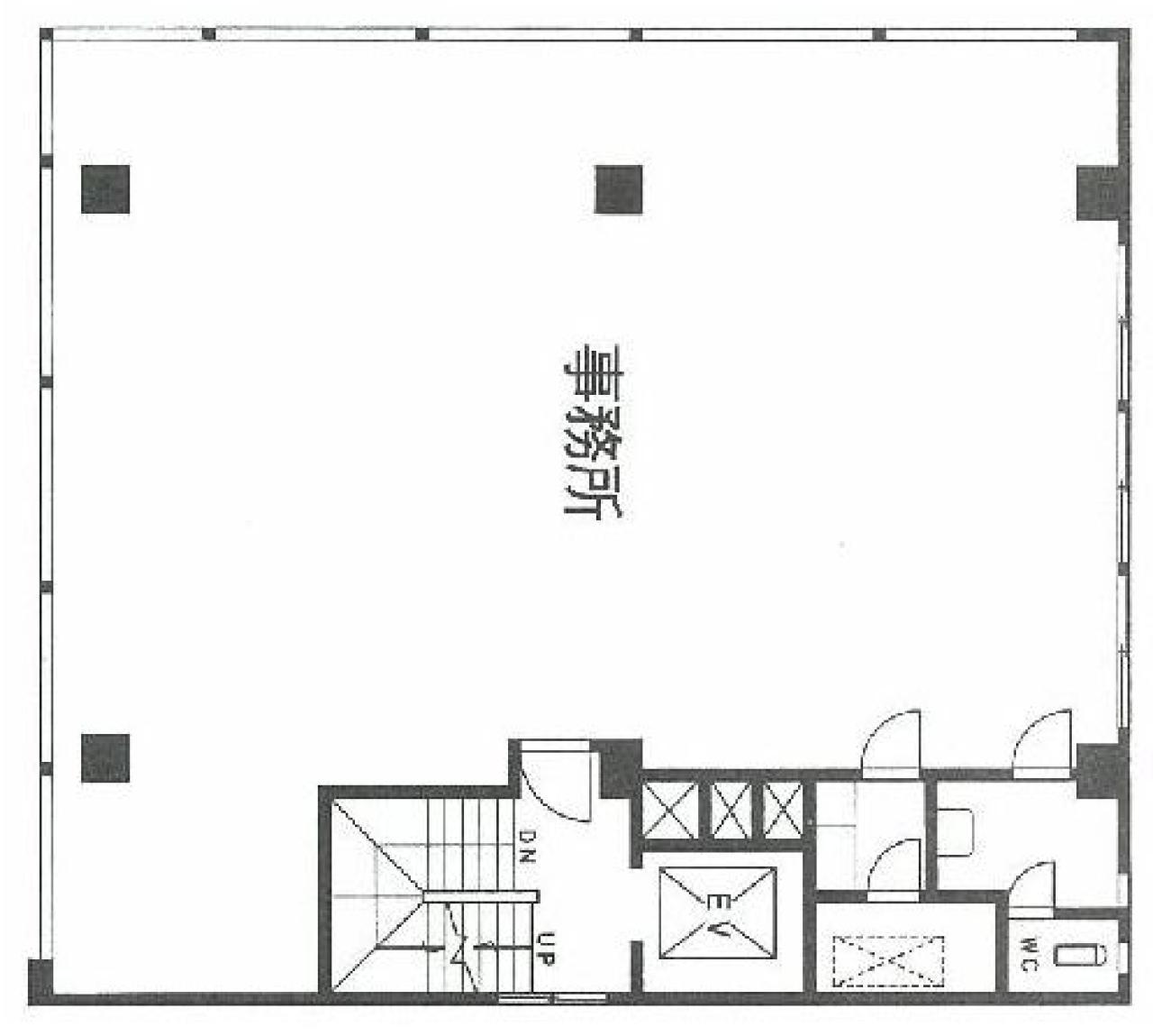
芦澤ビルは、中央区銀座にある貸事務所物件で、最寄り駅は地下鉄各線の東銀座駅です。1976年竣工の物件で、基準階34坪ほどの賃貸オフィスビルです。EVは1基設置しています。専用トイレ、個別空調が有り、天井高は2,400mmです。他に築地駅、新富町駅も利用可能な中央区銀座の貸事務所です。
- 
                    物件情報
- 
                        設備情報- トイレ
- 室内
- 床
- タイルカーペット
- 空調
- 個別空調
- セキュリティ
- 無
- 駐車場
- -
- 会議室
- -
- エレベーター
- 1基
- 天井高
- 2400mm
 
- 
                        間取り図
- 
                    近隣相場情報銀座3丁目(30~40坪)の相場 22750 円 (坪) 
 ※ビルサク調べ
周辺施設情報
| コンビニ | ローソン/銀座四丁目昭和通/170m(徒歩2分) ヤマザキSPS/銀座歌舞伎座はなみち/190m(徒歩3分) | 
|---|---|
| 郵便局/銀行 | 郵便局/銀座三/平日 10:00-18:00 土曜 - 日曜・祝日 - [ATM]平日 9:00-18:00 土曜 9:00-12:30 日曜・祝日 -/90m(徒歩1分) 七十七銀行/東京支店/平日:9:00~15:00 [ATM]平日:8:45~18:00 土曜日:- 日曜日/祝日:-/230m(徒歩3分) | 
| 飲食店 | パリのワイン食堂/11時30分~15時00分、17時30分~0時00分/20m(徒歩1分) 徳うち山/11時30分~14時00分、18時00分~22時00分/30m(徒歩1分) | 
| カフェ | ドトール/銀座4丁目店/[営業時間]平 日:06:45 - 21:20 土曜日:07:00 - 20:00 日 祝:07:30 - 19:00 [休業日]なし [備考]総席数:39 禁煙席:28 喫煙席:11/40m(徒歩1分) タリーズ/歌舞伎座店/[営業時間]平日:7:30~22:00(L.O. 21:30) 土:8:00~22:00(L.O. 21:30) 日祝:8:00~22:00(L.O. 21:30) [備考]Tully's Wi-Fi、喫煙ルーム/240m(徒歩3分) | 
| コインパーキング | NPC24H/GINZA KABUKIZA [料金] 30分/300円(8時~22時) 60分/100円(22時~8時) [最大料金] 【普通車】 24時間毎1500円 【ハイル-フ車】 24時間毎2200円 [台数]272台 ナビパーク/銀座第4 [料金] 全日 8:00 ~ 22:00 15分 / 200円 全日 22:00 ~ 8:00 30分 / 100円 [最大料金] 4時間最大(全日) 2,600円 夜間最大(全日) 22:00 ~ 8:00 300円 [台数]2台 | 
周辺地図
芦澤ビルは、中央区銀座にある貸事務所物件で、最寄り駅は地下鉄各線の東銀座駅です。1976年竣工の物件で、基準階34坪ほどの賃貸オフィスビルです。EVは1基設置しています。専用トイレ、個別空調が有り、天井高は2,400mmです。他に築地駅、新富町駅も利用可能な中央区銀座の貸事務所です。
全フロア情報
更新日:2021年1月6日
| 階 | 面積 | 賃料 | 共益費 | 敷金 | 入居日 | お問合せ | お気に入り | |
|---|---|---|---|---|---|---|---|---|
| 2F | 33.98 坪 112.33 ㎡ | ※現在空室情報はございません | ※現在空室情報は 確認する | |||||
| 3F | 33.98 坪 112.33 ㎡ | ※現在空室情報はございません | ※現在空室情報は 確認する | |||||
お問い合わせ
似た条件の物件はこちら
- 
                    
                        ムサシ7ビル東京都中央区銀座7-2-4 坪数:33.6 坪 坪単価:25,000 円(坪) 
- 
                    
                        エイコー銀座ビル東京都中央区銀座2-3-2 坪数:41.88 坪 坪単価:35,000 円(坪) 
- 
                    
                        ニュー銀座ビル東京都中央区銀座3-11-1 坪数:24.38 坪 坪単価:13,500 円(坪) 
- 
                    
                        第五安田ビル東京都中央区銀座7-15-2 坪数:41.7 坪 坪単価:11,000 円(坪) 
- 
                    
                        ACN銀座ビル東京都中央区銀座8-15-2 坪数:30.22 坪 坪単価:23,200 円(坪) 
- 
                    
                        正金ビル東京都中央区銀座8-11-5 坪数:33.89 坪 坪単価:15,000 円(坪) 
- 
                    
                        銀座朝日ビル東京都中央区銀座3-8-10 坪数:36.33 坪 坪単価:26,000 円(坪) 
- 
                    
                        銀座ワカホビル東京都中央区銀座5-14-8 坪数:24 坪 坪単価:17,000 円(坪) 
- 
                    
                        銀座7丁目銀ビル東京都中央区銀座7-15-18 坪数:34.6 坪 坪単価:10,983 円(坪) 
- 
                    
                        銀座大新ビル東京都中央区銀座1-8-14 坪数:35.83 坪 坪単価:29,000 円(坪) 
 
         
    