ニットクビル(物件No:71689144)
ニットクビルは、港区芝にある貸事務所物件です。最寄り駅は都営三田線芝公園駅、都営大江戸線赤羽橋駅、JR田町駅です。1972年竣工で基準階が47.64坪の賃貸オフィスビルです。床はタイルカーペットで、天井の高さは2380mm。トイレは室外男女別で、空調は個別空調です。エレベーターは1基あります。複数路線利用可能で交通アクセスの良い、港区芝の貸事務所です。
| 階 | 面積 | 賃料 | 共益費 | 敷金 | 入居日 | お問合せ | お気に入り |
|---|---|---|---|---|---|---|---|
|
3F
(南区画) |
21.33 坪 70.51 ㎡ |
298,620 円 14,000 円(坪) |
込 |
2,090,340 円 7 ヶ月 |
2026/08 |
|
|
| 階 | 面積 | 賃料 | 共益費 | 敷金 | 入居日 | お問合せ | お気に入り |
|---|---|---|---|---|---|---|---|
|
3F
(南区画) |
21.33 坪 70.51 ㎡ |
298,620 円 14,000 円(坪) |
込 |
2,090,340 円 7 ヶ月 |
2026/08 |
|
|
-
物件情報
-
設備情報
- トイレ
- 室外男女別
- 床
- タイルカーペット
- 空調
- 個別空調
- セキュリティ
- 無
- 駐車場
- 無
- 会議室
- -
- エレベーター
- 1基
- 天井高
- -
-
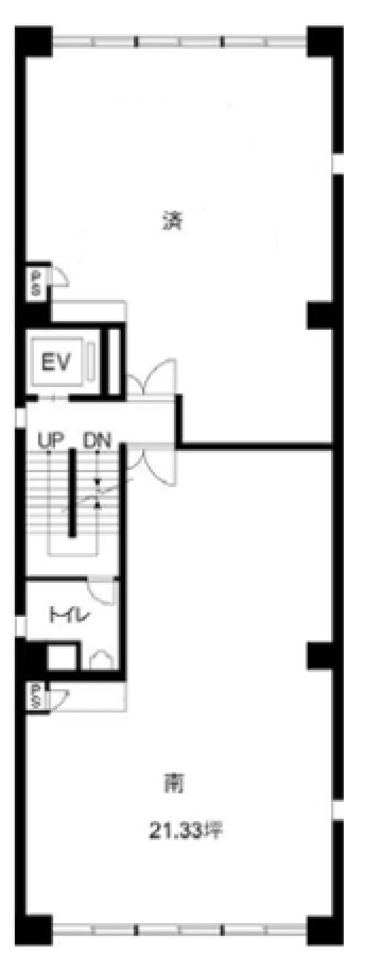
間取り図
-
近隣相場情報
芝3丁目(20~30坪)の相場
12750 円 (坪)
※ビルサク調べ
周辺施設情報
| コンビニ |
セブンイレブン/港区芝3丁目/260m(徒歩4分) ローソン/Sザ・プリンスパークタワー東京/600m(徒歩8分) |
|---|---|
| 郵便局/銀行 |
三井住友銀行/ATM 三田国際ビル出張所/[営業時間]平日 7:00~24:00 土曜 7:00~24:00 日曜 7:00~21:00/350m(徒歩5分) 信用組合/七島信用組合 東京支店/150m(徒歩2分) |
| 飲食店 |
HOLI インドレストラン 芝/11時00分~15時00分、17時00分~23時00分/ ステーキハウス 桂/昼 11:30 ~ 15:00(LO 14:30)夜 17:00 ~ 22:00(LO 21:30)/550m(徒歩7分) |
| カフェ |
シアトルズベスト/ヴァション芝公園店/[営業時間]月~金 7:30~22:30 土日・祝 11:00~22:00/800m(徒歩10分) タリーズ/済生会中央病院店/[営業時間]平日:7:30~18:00 土: 8:00~17:00(※第2・第4 土曜日は休業) 日祝:休業日/400m(徒歩6分) |
| コインパーキング |
PEN/港区芝3丁目28番街区パーキング [料金] 月~土 8:00~24:00 20分 400円 24:00~8:00 60分 100円 日・祝 8:00~24:00 20分 400円 24:00~8:00 60分 100円 [最大料金] 月~土【最大】【3・4・13・14番車室限定】 12時間最大3200円 (繰り返し) 日・祝【最大】最大12時間1900円 (繰り返し [台数]14台 タイムズ駐車場/芝第19 [料金] [全日]08:00-20:00 15分 200円 [全日]20:00-08:00 60分 100円 [最大料金] [全日]駐車後5時間 最大料金1800円 [台数]4 |
周辺地図
ニットクビルは、港区芝にある貸事務所物件です。最寄り駅は都営三田線芝公園駅、都営大江戸線赤羽橋駅、JR田町駅です。1972年竣工で基準階が47.64坪の賃貸オフィスビルです。床はタイルカーペットで、天井の高さは2380mm。トイレは室外男女別で、空調は個別空調です。エレベーターは1基あります。複数路線利用可能で交通アクセスの良い、港区芝の貸事務所です。
全フロア情報
更新日:2026年4月9日
| 階 | 面積 | 賃料 | 共益費 | 敷金 | 入居日 | お問合せ | お気に入り | |
|---|---|---|---|---|---|---|---|---|
| B1F |
47.64 坪 157.49 ㎡ |
※現在空室情報はございません |
※現在空室情報は 確認する |
|||||
| 1F |
36 坪 119.01 ㎡ |
※現在空室情報はございません |
※現在空室情報は 確認する |
|||||
| 2F |
8.04 坪 26.58 ㎡ |
※現在空室情報はございません |
※現在空室情報は 確認する |
|||||
|
2F
(南区画) |
23.19 坪 76.66 ㎡ |
※現在空室情報はございません |
※現在空室情報は 確認する |
|||||
| 3F |
40.76 坪 134.74 ㎡ |
※現在空室情報はございません |
※現在空室情報は 確認する |
|||||
|
3F
(北区画) |
19.43 坪 64.23 ㎡ |
※現在空室情報はございません |
※現在空室情報は 確認する |
|||||
|
3F
(南区画) |
21.33 坪 70.51 ㎡ |
298,620 円 14,000 円(坪) |
込 |
2,090,340 円 7 ヶ月 |
2026/08 |
|
|
|
| 4F |
40.76 坪 134.74 ㎡ |
529,880 円 13,000 円(坪) |
40,760 円 1,000 円(坪) |
3,709,160 円 7 ヶ月 |
即日 |
|
|
|
|
5F
(南区画) |
21.33 坪 70.51 ㎡ |
※現在空室情報はございません |
※現在空室情報は 確認する |
|||||
| 6F |
40.76 坪 134.74 ㎡ |
※現在空室情報はございません |
※現在空室情報は 確認する |
|||||
| 7F |
11.8 坪 39.01 ㎡ |
※現在空室情報はございません |
※現在空室情報は 確認する |
|||||
お問い合わせ
似た条件の物件はこちら
-
御田八幡ビル
東京都港区三田3-7-16
坪数:17.5 坪
坪単価:11,429 円(坪)
-
柴村ビル
東京都港区芝3-42-1
坪数:24.5 坪
坪単価:10,000 円(坪)
-
芝パークビル
東京都港区浜松町2-1-15
坪数:26 坪
坪単価:17,000 円(坪)
-
グランディックビル
東京都港区芝5-14-14
坪数:16.5 坪
坪単価:16,970 円(坪)
-
山口ビル
東京都港区芝公園1-7-7
坪数:22 坪
坪単価:11,364 円(坪)
-
EARTH SHIBA BLD
東京都港区芝2-10-6
坪数:22.47 坪
坪単価:29,000 円(坪)
-
奥山ビル
東京都港区芝5-20-10
坪数:23.74 坪
坪単価:12,637 円(坪)
-
中野第5ビル
東京都港区芝3-17-14
坪数:23.5 坪
坪単価:11,000 円(坪)
-
オーロラ三田
東京都港区三田2-17-29
坪数:19.5 坪
坪単価:28,000 円(坪)
-
TTDビル
東京都港区三田1-2-18
坪数:22.09 坪
坪単価:13,128 円(坪)