清水橋矢部ビル(物件No:71688096)
清水橋矢部ビルは渋谷区本町の13階建ての賃貸事務所物件です。最寄駅は都営大江戸線の西新宿五丁目駅より徒歩2分、都営大江戸線の都庁前駅より徒歩11分、東京メトロ丸ノ内線の中野新橋駅より徒歩11分です。1990年竣工の鉄骨鉄筋コンクリート造で、基準階面積は38.73坪です。設備としてはエレベーターが2基あります。駐車場もあります。機械警備もあります。床はフリーアクセスです。新耐震基準をクリアした、複数路線利用可能且つ最寄駅へのアクセスが非常に便利な渋谷区本町の賃貸オフィス物件です。
-
物件情報
-
設備情報
- トイレ
- 室内男女共用
- 床
- フリーアクセス
- 空調
- 個別空調
- セキュリティ
- 有
- 駐車場
- 有
- 会議室
- -
- エレベーター
- 2基
- 天井高
- -
-
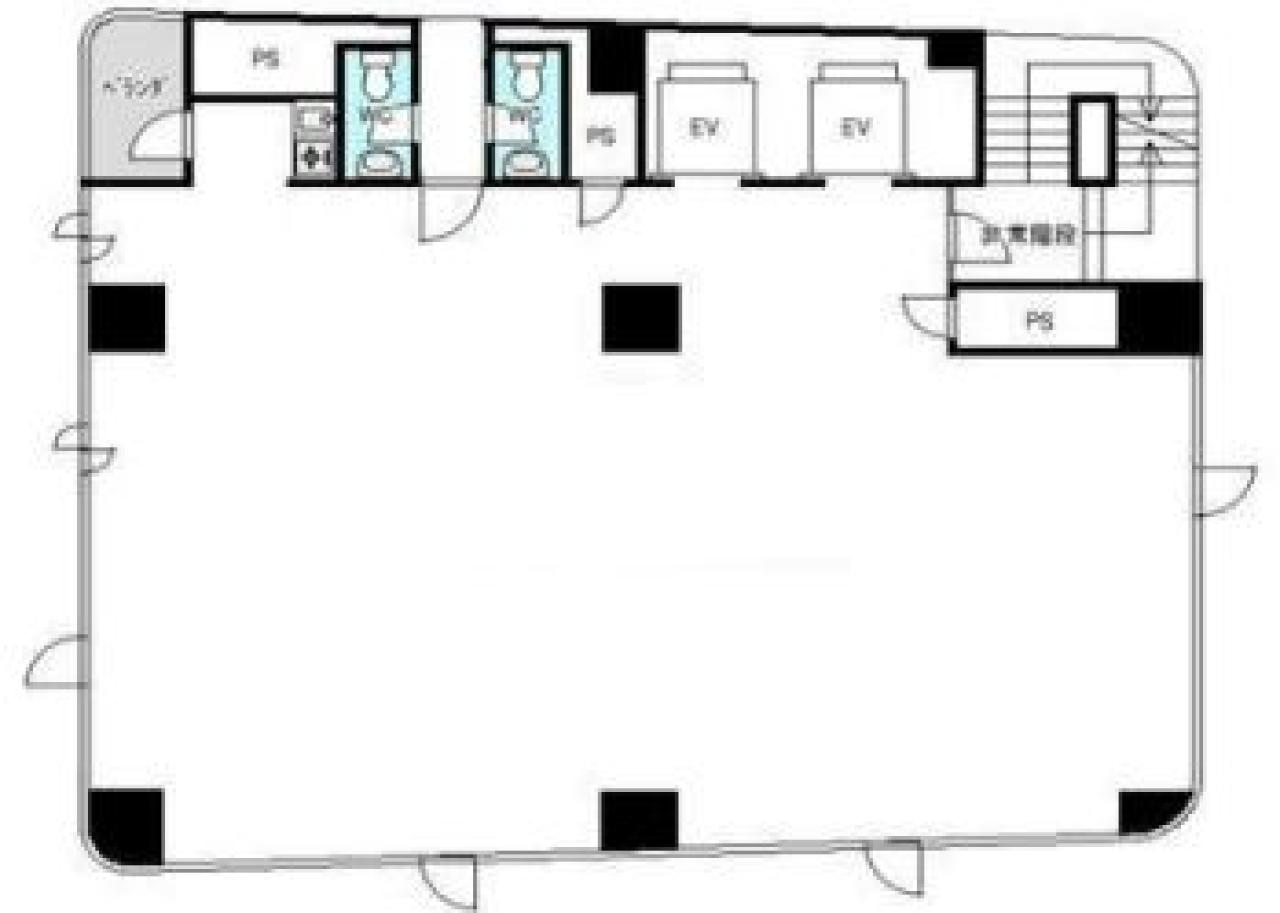
間取り図
-
近隣相場情報
本町3丁目(30~40坪)の相場
調査中
周辺施設情報
| コンビニ |
ローソン/渋谷鶯谷町/500m(徒歩6分) セブンイレブン/渋谷鶯谷町/400m(徒歩5分) |
|---|---|
| 郵便局/銀行 |
ローソン銀行/渋谷桜丘町南共同出張所/[営業時間]24時間 サービス提供時間は、設置先の営業時間に準じます(設置している店舗等の営業時間により、一部時間帯でご利用いただけない場合があります) [取扱]本人確認サービス対応、ATMチャージ/ATM払戻サービス、スマホATM(QR入出金)、海外発行カード/海外送金、視覚障害者対応 [備考]当/600m(徒歩7分) ゆうちょ/ATM 本店 ファミリーマート渋谷道玄坂プラザ通り店内出張所/[営業時間] [ATM]平日 0:05~23:55 土曜日 0:05~23:55 日曜日・休日 0:05~23:55 [駐車場]なし [取扱]ATM/カードATM [備考]海外発行カードによる現金引き出しサービスにおいて、16言語でご利用いただけます/600m(徒歩7分) |
| 飲食店 |
ウナギノボリ/16時00分~23時00分/400m(徒歩5分) AKI太/51m(徒歩1分) |
| カフェ |
Coffee House スカーレット/11時00分~18時00分/350m(徒歩4分) カフェドクリエ/グラン 渋谷桜丘スクエア店/[営業時間]【平日】7:00~20:00【土日祝】(土)7:00~19:00(日/祝)8:00~19:00 [備考]喫煙可能室あり/Wi-Fiスポットあり/250m(徒歩3分) |
| コインパーキング |
三井のリパーク/渋谷鉢山町 [料金] 全日 08:00~00:00 12分/300円 全日 00:00~08:00 60分/200円 [最大料金] 【全日】最大料金入庫後4時間以内2200円 [台数]4 ナビパーク/南平台町第1 [料金] 全曜日 8:00~22:00 30分/500円 全曜日 22:00~8:00 60分/100円 [台数]6台 |
周辺地図
清水橋矢部ビルは渋谷区本町の13階建ての賃貸事務所物件です。最寄駅は都営大江戸線の西新宿五丁目駅より徒歩2分、都営大江戸線の都庁前駅より徒歩11分、東京メトロ丸ノ内線の中野新橋駅より徒歩11分です。1990年竣工の鉄骨鉄筋コンクリート造で、基準階面積は38.73坪です。設備としてはエレベーターが2基あります。駐車場もあります。機械警備もあります。床はフリーアクセスです。新耐震基準をクリアした、複数路線利用可能且つ最寄駅へのアクセスが非常に便利な渋谷区本町の賃貸オフィス物件です。
全フロア情報
更新日:2025年12月2日
| 階 | 面積 | 賃料 | 共益費 | 敷金 | 入居日 | お問合せ | お気に入り | |
|---|---|---|---|---|---|---|---|---|
| 4F |
38.73 坪 128.03 ㎡ |
※現在空室情報はございません |
※現在空室情報は 確認する |
|||||
| 5F |
38.73 坪 128.03 ㎡ |
※現在空室情報はございません |
※現在空室情報は 確認する |
|||||
|
7F
(701区画) |
17.73 坪 58.61 ㎡ |
210,000 円 11,844 円(坪) |
35,000 円 1,974 円(坪) |
1,050,000 円 5 ヶ月 |
即日 |
|
|
|
|
7F
(702区画) |
15.67 坪 51.8 ㎡ |
※現在空室情報はございません |
※現在空室情報は 確認する |
|||||
| 8F |
38.73 坪 128.03 ㎡ |
※現在空室情報はございません |
※現在空室情報は 確認する |
|||||
|
9F
(901区画) |
38.73 坪 128.03 ㎡ |
※現在空室情報はございません |
※現在空室情報は 確認する |
|||||
| 12F |
21.97 坪 72.63 ㎡ |
※現在空室情報はございません |
※現在空室情報は 確認する |
|||||
|
13F
(1301区画) |
24.78 坪 81.91 ㎡ |
※現在空室情報はございません |
※現在空室情報は 確認する |
|||||
お問い合わせ
似た条件の物件はこちら
-
MH代々木上原
東京都渋谷区西原3-6-5
坪数:29.14 坪
坪単価:20,007 円(坪)
-
富ヶ谷テラス
東京都渋谷区富ヶ谷2-21-8
坪数:47.18 坪
坪単価:28,499 円(坪)
-
初台共同ビル
東京都渋谷区本町1-13-3
坪数:42.8 坪
坪単価:16,799 円(坪)
-
エイトビル
東京都渋谷区上原1-25-3
坪数:29.11 坪
坪単価:29,887 円(坪)
-
ブランエール代々幡
東京都渋谷区西原2-35-1
坪数:29.57 坪
坪単価:17,628 円(坪)
-
幡ヶ谷ニューセンタービル
東京都渋谷区幡ヶ谷2-7-2
坪数:31.35 坪
坪単価:11,000 円(坪)
-
代々木いずみマンション
東京都渋谷区富ヶ谷1-44-4
坪数:29.31 坪
坪単価:15,353 円(坪)
-
第30田中ビル
東京都渋谷区初台1-49-1
坪数:34.97 坪
坪単価:12,868 円(坪)
-
グランデュオ神山町ビル
東京都渋谷区神山町7-12
坪数:33.45 坪
坪単価:33,000 円(坪)
-
CREALterrace渋谷神山町
東京都渋谷区神山町40-2
坪数:29.82 坪
坪単価:28,001 円(坪)