大晴ビル(物件No:71586159)
大晴ビルは豊島区西池袋にある地上5階建ての賃貸事務所です。最寄駅はJR線の池袋駅から徒歩2分、東京メトロ丸ノ内線の池袋駅から徒歩2分、東武東上線の池袋駅から徒歩2分、東京メトロ有楽町線の池袋駅から徒歩2分、西武池袋線の池袋駅から徒歩2分、東京メトロ副都心線の池袋駅から徒歩2分です。1976年竣工の鉄筋コンクリート造です。設備としては、エレベーターが1基あります。空調は個別空調です。複数路線利用可能なアクセスの良い豊島区西池袋の賃貸オフィスです。
-
物件情報
-
設備情報
- トイレ
- 室外男女別
- 床
- フリーアクセス
- 空調
- 個別空調
- セキュリティ
- 有
- 駐車場
- -
- 会議室
- -
- エレベーター
- 1基
- 天井高
- -
-
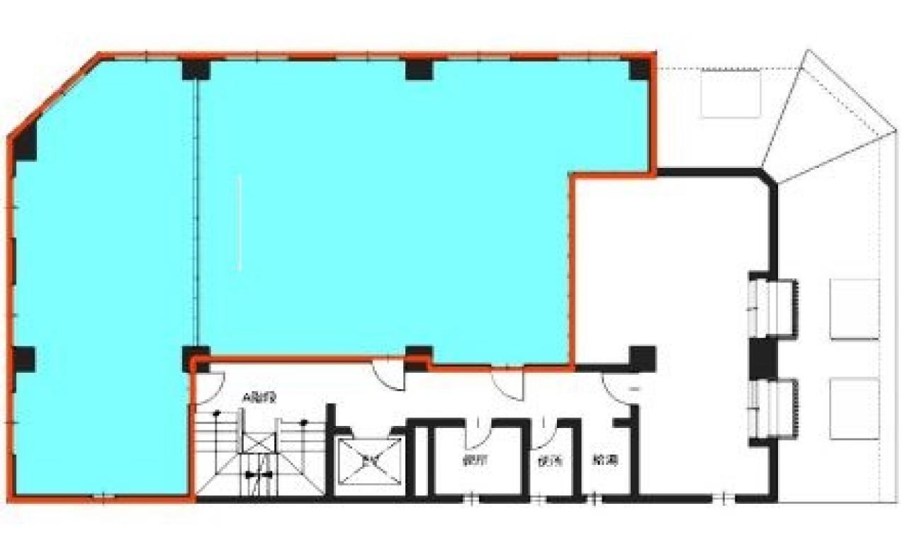
間取り図
-
近隣相場情報
西池袋3丁目(30~40坪)の相場
20585 円 (坪)
※ビルサク調べ
周辺施設情報
| コンビニ |
NewDays/池袋中央南/650m(徒歩9分) ローソン/ナチュラル エソラ池袋/350m(徒歩4分) |
|---|---|
| 郵便局/銀行 |
ゆうちょ/東京芸術劇場郵便局/[営業時間] [窓口]平日 10:00~17:00 土曜日 - 日曜日・休日 - [ATM]平日 8:00~22:00 土曜日 9:00~21:00 日曜日・休日 9:00~19:00 [駐車場]なし [取扱]郵便/貯金/保険/ATM [備考]※新型コロナウイルスに感染した社員が発生した場合、窓口業/200m(徒歩3分) 新生銀行/池袋/[営業時間]平日 9:00~17:00 ※平日は17:00~21:00まで資産運用のご相談を承っております(予約制・最終受付は19:00)。土曜は資産運用相談のみ(日程限定・予約制)/200m(徒歩3分) |
| 飲食店 |
やきとん木々家 池袋芸術劇場前店/17時00分~23時30分/ 龍小春富/77m(徒歩1分) |
| カフェ |
カフェコムサ/池袋東武店/[営業時間]10:00~20:00/400m(徒歩5分) 猫カフェ MOCHA/池袋西口店/[営業時間]10:00~20:00(最終入店 19:30) [休業日]年中無休/300m(徒歩4分) |
| コインパーキング |
三井のリパーク/西池袋3丁目 [料金] 全日 08:00~00:00 15分/300円 全日 00:00~08:00 60分/100円 [最大料金] 【全日】最大料金入庫後3時間以内1800円 [台数]8 タイムズ/プラザ [料金] [月~金]通常料金 7:00~0:00 30分 330円 [土・日・祝]通常料金 7:00~0:00 30分 330円 [最大料金] [月~金]最大料金(繰り返し適用)7:00~0:00 最大料金1760円 0:00~7:00 最大料金550円 [土・日・祝]最大料金(繰り返し適用)0:00~7:00 最大料金550円 [台数]300台 |
周辺地図
大晴ビルは豊島区西池袋にある地上5階建ての賃貸事務所です。最寄駅はJR線の池袋駅から徒歩2分、東京メトロ丸ノ内線の池袋駅から徒歩2分、東武東上線の池袋駅から徒歩2分、東京メトロ有楽町線の池袋駅から徒歩2分、西武池袋線の池袋駅から徒歩2分、東京メトロ副都心線の池袋駅から徒歩2分です。1976年竣工の鉄筋コンクリート造です。設備としては、エレベーターが1基あります。空調は個別空調です。複数路線利用可能なアクセスの良い豊島区西池袋の賃貸オフィスです。
全フロア情報
更新日:2026年2月13日
| 階 | 面積 | 賃料 | 共益費 | 敷金 | 入居日 | お問合せ | お気に入り | |
|---|---|---|---|---|---|---|---|---|
| 1F |
55.54 坪 183.6 ㎡ |
※現在空室情報はございません |
※現在空室情報は 確認する |
|||||
| 2F |
67.39 坪 222.78 ㎡ |
※現在空室情報はございません |
※現在空室情報は 確認する |
|||||
|
2F
(A区画) |
38.14 坪 126.07 ㎡ |
800,730 円 20,994 円(坪) |
込 |
4,804,380 円 6 ヶ月 |
2026/07/01 |
|
|
|
|
2F
(B区画) |
26.29 坪 86.92 ㎡ |
433,785 円 16,500 円(坪) |
込 |
2,602,710 円 6 ヶ月 |
2026/07/01 |
|
|
|
|
3F
(A区画) |
14.33 坪 47.37 ㎡ |
※現在空室情報はございません |
※現在空室情報は 確認する |
|||||
|
3F
(B区画) |
27.88 坪 92.17 ㎡ |
※現在空室情報はございません |
※現在空室情報は 確認する |
|||||
|
3F
(C区画) |
12.53 坪 41.42 ㎡ |
※現在空室情報はございません |
※現在空室情報は 確認する |
|||||
| 3C+4BF |
35.6 坪 117.69 ㎡ |
※現在空室情報はございません |
※現在空室情報は 確認する |
|||||
|
4F
(A区画) |
14.66 坪 48.46 ㎡ |
※現在空室情報はございません |
※現在空室情報は 確認する |
|||||
|
4F
(AB区画) |
37.73 坪 124.73 ㎡ |
※現在空室情報はございません |
※現在空室情報は 確認する |
|||||
|
4F
(B区画) |
23.07 坪 76.26 ㎡ |
※現在空室情報はございません |
※現在空室情報は 確認する |
|||||
お問い合わせ
似た条件の物件はこちら
-
サンポウ池袋ビル
東京都豊島区池袋4-32-8
坪数:41.87 坪
坪単価:13,000 円(坪)
-
金井ビル
東京都豊島区南池袋2-29-10
坪数:28.01 坪
坪単価:13,995 円(坪)
-
三仲ビル
東京都豊島区西池袋1-15-8
坪数:30 坪
坪単価:25,000 円(坪)
-
日興池袋ビル(旧 トウセン池袋ビル)
東京都豊島区池袋4-29-11
坪数:37.5 坪
坪単価:10,600 円(坪)
-
第1野萩ビル
東京都豊島区南池袋3-10-8
坪数:39.36 坪
坪単価:18,000 円(坪)
-
東都自動車ビルディング
東京都豊島区西池袋5-13-13
坪数:37.51 坪
坪単価:12,022 円(坪)
-
新東第一ビル
東京都豊島区西池袋1-16-1
坪数:36.48 坪
坪単価:24,323 円(坪)
-
エヌエスティービル
東京都豊島区千早4-41-9
坪数:28.48 坪
坪単価:10,358 円(坪)
-
榮ビル
東京都豊島区南池袋2-10-3
坪数:30 坪
坪単価:13,000 円(坪)
-
池袋KTビル
東京都豊島区西池袋2-29-19
坪数:35.68 坪
坪単価:18,000 円(坪)