カテリーナ柳通りビル(物件No:71585166)
カテリーナ柳通りビルは、新宿区新宿にある地上9階建ての賃貸オフィスです。最寄駅は東京メトロ丸ノ内線の新宿御苑前駅から徒歩3分、都営新宿線の新宿三丁目駅から徒歩6分です。1989年1月竣工の基準階面積が35.32坪の鉄骨鉄筋コンクリート造です。設備としては、エレベーターが1基あります。セキュリティは機械警備です。空調は個別空調です。床仕様はフリーアクセスです。耐震設計となっている、ビジネス街として人気のある新宿区新宿の賃貸事務所です。
| 階 | 面積 | 賃料 | 共益費 | 敷金 | 入居日 | お問合せ | お気に入り |
|---|---|---|---|---|---|---|---|
| 4F |
35.31 坪 116.73 ㎡ |
相談 |
98,868 円 2,800 円(坪) |
12ヶ月 |
2026/05/11 |
|
|
| 階 | 面積 | 賃料 | 共益費 | 敷金 | 入居日 | お問合せ | お気に入り |
|---|---|---|---|---|---|---|---|
| 4F |
35.31 坪 116.73 ㎡ |
相談 |
98,868 円 2,800 円(坪) |
12ヶ月 |
2026/05/11 |
|
|
-
物件情報
-
設備情報
- トイレ
- 室内男女別
- 床
- フリーアクセス
- 空調
- 個別空調
- セキュリティ
- 有
- 駐車場
- -
- 会議室
- -
- エレベーター
- 1基
- 天井高
- -
-
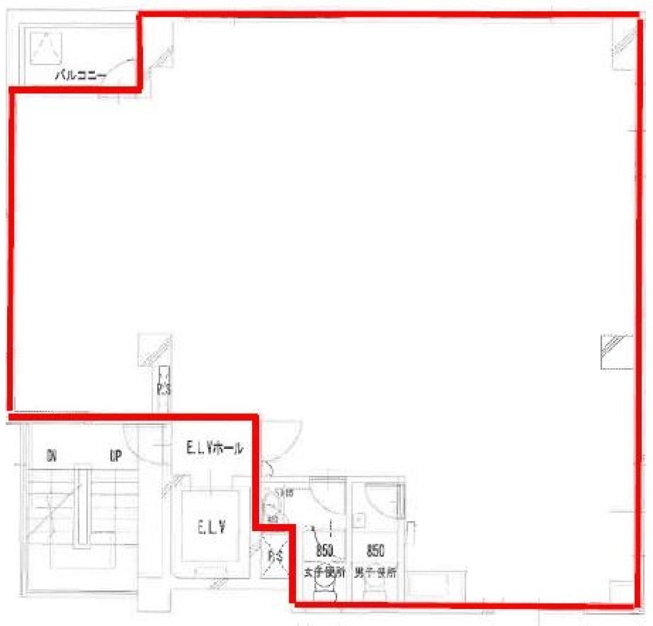
間取り図
-
近隣相場情報
新宿1丁目(30~40坪)の相場
17605 円 (坪)
※ビルサク調べ
周辺施設情報
| コンビニ |
ミニストップ/新宿花園通り店/170m(徒歩2分) ファミリーマート/新宿御苑駅前店/180m(徒歩2分) |
|---|---|
| 郵便局/銀行 |
みずほ銀行/ATM ミニストップ新宿花園通り店出張所/[ATM]平日 0:00~24:00 土曜日 0:00~22:00 日曜日 8:00~24:00 /170m(徒歩2分) イーネット/ファミリーマート新宿御苑駅前2号機/[営業時間]0:00~24:00/180m(徒歩2分) |
| 飲食店 |
アリエス/11時00分~15時00分/130m(徒歩2分) ベトナム料理ベトニャット Viet Nhat/11時00分~15時00分 17時00分~22時00分/64m(徒歩1分) |
| カフェ |
プロント/新宿御苑前店/[営業時間]平日:カフェ 7:00~17:30 バー 17:30~22:00 土曜:カフェ 7:00~17:30 バー 17:30~22:00/180m(徒歩2分) ドトール/新宿1丁目南店/■通常営業時間 平日 7:00~20:30 土曜 7:20~20:30 日祝 7:20~19:30/160m(徒歩2分) |
| コインパーキング |
NPC24H/新宿第2 [料金] 通常料金 15分/300円 最大料金 全日夜間 1600円(18時~8時) [最大料金] 【No.1~13、18~43】24時間毎 3300円 【No.14~17】24時間毎 3100円 [台数]43台 クレアスパーク/パレステュディオ新宿御苑駅前 [料金] [料金] 全日 昼 8時~24時 15分300円, 全日 夜 24時~8時 60分200円 [最大料金] [料金]全日 12時間 最大2600円, 全日 夜 24時~8時 最大1200円 [台数]5 |
周辺地図
カテリーナ柳通りビルは、新宿区新宿にある地上9階建ての賃貸オフィスです。最寄駅は東京メトロ丸ノ内線の新宿御苑前駅から徒歩3分、都営新宿線の新宿三丁目駅から徒歩6分です。1989年1月竣工の基準階面積が35.32坪の鉄骨鉄筋コンクリート造です。設備としては、エレベーターが1基あります。セキュリティは機械警備です。空調は個別空調です。床仕様はフリーアクセスです。耐震設計となっている、ビジネス街として人気のある新宿区新宿の賃貸事務所です。
全フロア情報
更新日:2026年1月15日
| 階 | 面積 | 賃料 | 共益費 | 敷金 | 入居日 | お問合せ | お気に入り | |
|---|---|---|---|---|---|---|---|---|
| 4F |
35.31 坪 116.73 ㎡ |
相談 |
98,868 円 2,800 円(坪) |
12ヶ月 |
2026/05/11 |
|
|
|
| 6F |
35.32 坪 116.76 ㎡ |
※現在空室情報はございません |
※現在空室情報は 確認する |
|||||
| 7F |
29.17 坪 96.43 ㎡ |
※現在空室情報はございません |
※現在空室情報は 確認する |
|||||
お問い合わせ
似た条件の物件はこちら
-
12-SHINJUKU
東京都新宿区西新宿1-1-6
坪数:25.76 坪
坪単価:28,649 円(坪)
-
第一山口ビル
東京都新宿区西新宿6-20-12
坪数:26.47 坪
坪単価:13,500 円(坪)
-
花菱ビル
東京都新宿区新宿3-11-9
坪数:37.32 坪
坪単価:19,999 円(坪)
-
西新宿KFビル
東京都新宿区西新宿8-14-24
坪数:29.62 坪
坪単価:16,000 円(坪)
-
第二山口ビル
東京都新宿区西新宿6-20-12
坪数:25.84 坪
坪単価:13,495 円(坪)
-
NAビル
東京都新宿区西新宿7-22-41
坪数:28.9 坪
坪単価:20,000 円(坪)
-
西新宿小林ビル
東京都新宿区西新宿7-10-6
坪数:42.8 坪
坪単価:19,500 円(坪)
-
宝ビル
東京都新宿区西新宿1-4-11
坪数:39.24 坪
坪単価:20,000 円(坪)
-
西新宿ハイホーム
東京都新宿区西新宿4-16-2
坪数:44.58 坪
坪単価:13,000 円(坪)
-
GOWA西新宿ビル
東京都新宿区西新宿7-5-8
坪数:41.37 坪
坪単価:16,000 円(坪)